Добавить в корзинуПозвонить
Найти в Дзене
ТехЛаб

Замок Полис-13 адекватный ответ дешевым китайцам

Российский замок ПОЛИС-13 способен поспорить с китайскими электрозамками по цене. При этом без потери преимущества в качестве и надежности. Узнаваемый большой взводной кулачок и мягкое закрытие выделяют ПОЛИС-13 в ряду дешевых китайцев типа 2369 и их российских конкурентов. Универсальный врезной электрозамок, который можно установить на деревянный, металлические двери. Имеет два мощных стальных ригеля с диаметром 18 мм и ходом 17 мм. Открывается снаружи обычным ключом (цилиндр в комплекте) или электрическим способом: с видеодомофона, кодовой панели контроллера СКУД и так далее. Где пригодится замок Полис-13 Если нужно, чтобы замок открывался без ключа изнутри помещения или с территории участка, лучше выбрать модель 13-02 с воротком для открытия на корпусе. Схема установки и монтаж замка ПОЛИС-13 Устанавливается электрозамок врезным способом. Максимальная ширина зазора между корпусом и ответной планкой составляет 8 мм. При перестановке с левых дверей на правые взводной кулачок нужно пер
Оглавление

Российский замок ПОЛИС-13 способен поспорить с китайскими электрозамками по цене. При этом без потери преимущества в качестве и надежности. Узнаваемый большой взводной кулачок и мягкое закрытие выделяют ПОЛИС-13 в ряду дешевых китайцев типа 2369 и их российских конкурентов.

Универсальный врезной электрозамок, который можно установить на деревянный, металлические двери. Имеет два мощных стальных ригеля с диаметром 18 мм и ходом 17 мм. Открывается снаружи обычным ключом (цилиндр в комплекте) или электрическим способом: с видеодомофона, кодовой панели контроллера СКУД и так далее.

Где пригодится замок Полис-13

  • Входная дверь офиса или квартиры. В отличие от некоторых итальянских замков Полис-13 подходит для левых и правых дверей. Перенастраивается он переворотом кулачка. Как это сделать подробно написано в инструкции.
  • Для межкомнатной двери, если нужно, чтобы она открывалась по карточке или коду. Закрывается мягко, без лязга. Хорошо работает в паре с доводчиками двери..
  • На калитку или ворота. В Полис-13 есть возможность настроить силу натяжения взводной пружины специальным регулировочным винтом. Поэтому он мягко закрывается на легких калитках. Есть система механической блокировки выхода ригелей до полного закрытия двери.
Если нужно, чтобы замок открывался без ключа изнутри помещения или с территории участка, лучше выбрать модель 13-02 с воротком для открытия на корпусе.

Схема установки и монтаж замка ПОЛИС-13

Устанавливается электрозамок врезным способом. Максимальная ширина зазора между корпусом и ответной планкой составляет 8 мм. При перестановке с левых дверей на правые взводной кулачок нужно перевернуть.

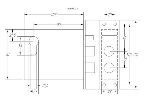
Установочные размеры Полис-13 приведены на рисунке.

-2
Как и у всех недорогих электромеханических замков, здесь нет защиты от перегрева катушки. Поэтому при подключение лучше делать через БУЗ — устройство защиты электрозамка.
-3

После окончания монтажа настраивается натяжение пружины взвода. Это делается закручиванием/откручиванием регулировочного винта.

-4

Инструкцию для электрозамка ПОЛИС-13 можно скачать по этой ссылке.

Технические характеристики

  • Исполнение: для деревянных и металлических дверей, калиток
  • Способ установки: врезной
  • Напряжение питания, В: 12
  • Потребляемый ток, А: 0.8
  • Температура эксплуатации, °С: -40 - +60
  • Габариты, мм: 110×92×30
  • Вес, кг: 1

Сравнительно недавно Юрий на нашем канале делал обзор Полис-13.

В Москве купить электрозамок Полис-13 производства ВИТЕК можно в интернет-магазине Техническая лаборатория.