Найти в Дзене
По жизни на стройке

Вариант стильного и яркого дома для большой семьи

Доброго времени суток, уважаемые читатели, в этой статье хочу поделиться с Вами интересным вариантом одноэтажного большого дома. Яркий фасад не оставит никого равнодушным. Сам дом имеет общую площадь 113 квадратных метров, в планировке предусмотрены 2 большие изолированные спальни, просторная кухня, совмещенная с гостиной, техническое помещение, и ванная комната хороших размеров. Кухня с гостиной имеют отдельный выход в сад, что делает летние посиделки в саду более удобными, так как, чтобы попасть на кухню не надо обходить весь дом. Также при планировании дома, можно поменять зону кухни и зала местами, это, скорее всего будет более удобно. Две спальные комнаты имеют достаточно места, для размещения больших шкафов для вещей и прочей утвари, и они разделены немаленькой ванной, имеющей все необходимое для комфортной жизни. Рядом с ванной комнатой создан закуток для размещения стиральной машины, что позволило рационально использовать это пространство. Техническое помещение позволяет разме

Доброго времени суток, уважаемые читатели, в этой статье хочу поделиться с Вами интересным вариантом одноэтажного большого дома. Яркий фасад не оставит никого равнодушным.

Фасадная часть (взято с американского строительного сервиса Thehousedesigners)
Фасадная часть (взято с американского строительного сервиса Thehousedesigners)

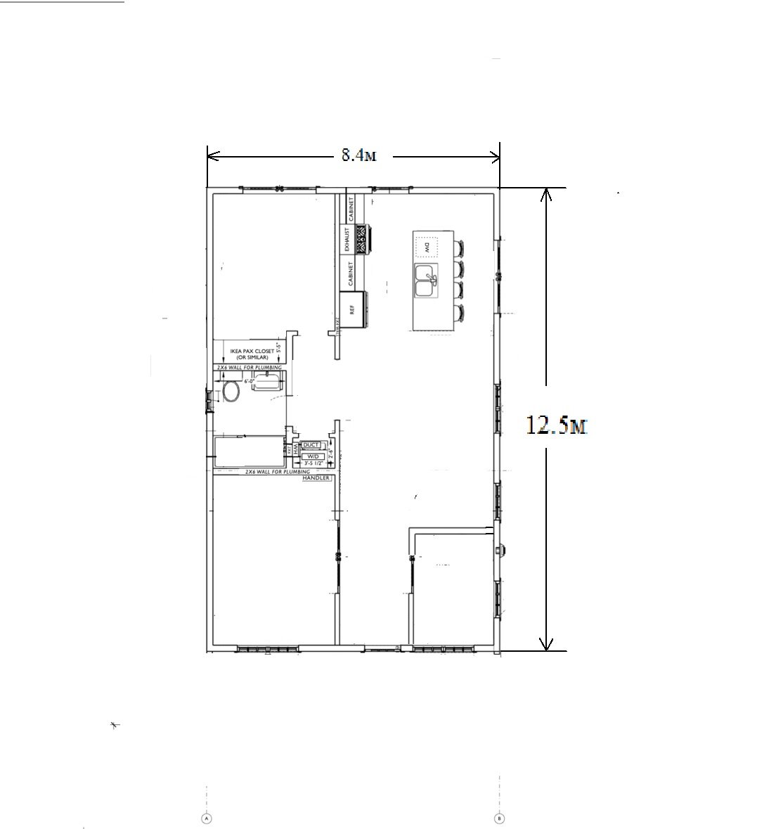
Сам дом имеет общую площадь 113 квадратных метров, в планировке предусмотрены 2 большие изолированные спальни, просторная кухня, совмещенная с гостиной, техническое помещение, и ванная комната хороших размеров.

Кухня с гостиной имеют отдельный выход в сад, что делает летние посиделки в саду более удобными, так как, чтобы попасть на кухню не надо обходить весь дом. Также при планировании дома, можно поменять зону кухни и зала местами, это, скорее всего будет более удобно.

Планировка дома (оригинал взят с сервиса thehousedesigners)
Планировка дома (оригинал взят с сервиса thehousedesigners)

Две спальные комнаты имеют достаточно места, для размещения больших шкафов для вещей и прочей утвари, и они разделены немаленькой ванной, имеющей все необходимое для комфортной жизни. Рядом с ванной комнатой создан закуток для размещения стиральной машины, что позволило рационально использовать это пространство. Техническое помещение позволяет разместить в нем все необходимые элементы для теплоснабжения, водообеспечения дома.

Если у Вас есть предложения по усовершенствованию планировки этого дома или другие вопросы, оставляйте свои комментарии и подписывайтесь на канал, чтоб увидеть и другие интересные варианты домов.
-3