Найти в Дзене

Неудачная планировка одноэтажного дома (разбор №2)

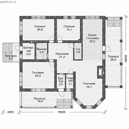
Проекты одно этажных домов сейчас в тренде. Наше проектное бюро только за этот месяц выполнило 3 таких проекта. Строительные компании подтягиваются и предлагают своим клиентам готовые проектные решения. Честно, я искал эту планировку всего 2 секунды, по запросу "проекты одноэтажных домов" в гугле картинка будет одной из первых. Мы попадаем в дом через узкий Тамбур, куда, очевидно, не помещается даже обувница, не то чтобы шкаф. Но шкаф не помещается и в узкий Гардероб, который для этого предназначен. Окошко съедает всю стену, а вдоль другой ничего не поставить из-за отсутствия достаточной ширины в 650мм. После входа в дом нас ожидает узкий Санузел, в который еле-еле влезает унитаз. При этом задумка зонирования Прихожей и Кухни через Санузел неплоха. У узкого Санузла есть еще одна проблема. Из-за того, что в нем отсутствует унитаз не понятно, где будет канализационный стояк. Желательно унитаз ставить к той стене, где он проходит, очевидно, что это группа вентканалов на углу Спальни 15,1
Рекордно бесполезный дом с узкой кухней, гостиной и санузлом. Мне кажется, авторы проекта нарочно не стали показывать мебель, чтобы не раскрывать все карты сразу, а приготовить будущему заказчику сюрприз — решение ребуса по покупке мебели и сантехники в уже построенный дом. Но давайте по порядку.
Рекордно бесполезный дом с узкой кухней, гостиной и санузлом. Мне кажется, авторы проекта нарочно не стали показывать мебель, чтобы не раскрывать все карты сразу, а приготовить будущему заказчику сюрприз — решение ребуса по покупке мебели и сантехники в уже построенный дом. Но давайте по порядку.

Проекты одно этажных домов сейчас в тренде. Наше проектное бюро только за этот месяц выполнило 3 таких проекта. Строительные компании подтягиваются и предлагают своим клиентам готовые проектные решения. Честно, я искал эту планировку всего 2 секунды, по запросу "проекты одноэтажных домов" в гугле картинка будет одной из первых.

Мы попадаем в дом через узкий Тамбур, куда, очевидно, не помещается даже обувница, не то чтобы шкаф. Но шкаф не помещается и в узкий Гардероб, который для этого предназначен. Окошко съедает всю стену, а вдоль другой ничего не поставить из-за отсутствия достаточной ширины в 650мм. После входа в дом нас ожидает узкий Санузел, в который еле-еле влезает унитаз. При этом задумка зонирования Прихожей и Кухни через Санузел неплоха.

У узкого Санузла есть еще одна проблема. Из-за того, что в нем отсутствует унитаз не понятно, где будет канализационный стояк. Желательно унитаз ставить к той стене, где он проходит, очевидно, что это группа вентканалов на углу Спальни 15,1. Но там мы унитаз ставить не можем из-за расположения двери в Санузел.

Далее мы проходим в узкую Кухню/Столовую. Узкая Кухня/Столовая имеет право на жизнь, но не в таком большом доме! Ведь если дорисовать обеденный стол, то он сразу перегородит проход к кухне, даже располагаясь вдоль помещения. Когда хозяин приедет домой с кучей сумок ему придется перелазить через стол, чтобы получить доступ к холодильнику.

Размещу еще раз для удобства просмотра.
Размещу еще раз для удобства просмотра.

Ниже нас ожидает узкая Гостиная с огромным бесполезным камином. Почему бесполезным? Да потому что он проходной. Возле него не сядешь полюбоваться огнем, слева обедают, сзади кто-то ходит и протискивается у тебя за спиной в Гостиную. Эркер, которым заканчивается сие помещение откусывает почти его треть. Надо понимать, что эркеры хороши на фасадах, внутри дома они часто не функциональны. Тем более, в такой УЗКОЙ гостиной.

На этом череда "узких мест" планировки заканчивается и мы переходим к жилой зоне, а именно к огромной Гостевой. Гостевая — это помещение эпизодичного использования, чтобы гости могли переночевать. Автор проекта чересчур гостеприимен, ведь иначе зачем делать это помещение площадью 25,9 кв.м.?! Кроме того, у этого "драгоценного" помещения есть своя терраса в виде огромного крыльца, на которую автор забыл дорисовать отдельный выход.

Хозяева дома живут скромнее в Спальнях 20,8 и 15,1. На все жилые помещения мы имеем малюсенькую Ванную 5,5 кв.м. Для того, чтобы было удобнее стоять в очереди в единственную Ванную (в узкий Санузел ничего не влазит и он, скорее, всего станет Кладовой, которой тут не хватает) автор проекта сделал огромную Прихожую в 21,2 кв.м. Причем приоритет явно у гостей дома, потому что дверь в Ванную расположена прямо у выхода из Гостевой.

Бойлерная имеет отдельный парадный вход с крыльцом (зачем?). Чтобы в нее попасть нужно обойти дом снаружи, да обойти так, чтобы пройтись не по кратчайшему расстоянию (вдоль стен Гостевой), а дать такой круг, что в ливень или мороз мало не покажется.

Жирную точку в моем повествовании ставит длинная узкая Терраса справа, на которой даже не поставить обеденный стол. Также обратите внимание на количество ступеней. У нас 4 подъема, т.е. 4 х 150мм = 600мм — это высота цоколя. Я буду успокаивать себя тем, что на участке строительства есть перепад рельефа и в самой низкой точке действительно надо делать 4 подъема. Но кого я обманываю, это типовой проект.

Если у дома такой высокий цоколь, скорее всего мы имеем дело с ленточным фундаментом и подпольем, которое образуется под плитой пола. Стоимость такого фундамента такая же, как и для двухэтажного дома. Жирным плюсом к стоимости станет большое количество внутренних несущих стен. Добавьте сюда бесполезную планировку и задайте справедливый вопрос — зачем строить такой дом?