Добавить в корзинуПозвонить
Найти в Дзене
Интерьерометр

Законный способ! Как на месте трёшки со смежными комнатами обустроить три спальни и просторную кухню-гостиную.

В России квартиры стоят дорого (по отношению к зарплатам). При выборе квартиры покупателю важно заплатить меньше за большее количество метров. В погоне за метрами можно упустить функциональность: дополнительно выгаданные метры часто оказываются в районе прихожей или коридора. Они непригодны для жилья. В таких случаях на помощь приходит перепланировка. На примере небольшой трёшки (63 кв.м.) в доме серии II-18 рассмотрим, как перепланировка поможет лучше использовать жилую площадь. Дом серии II-18 выбран не случайно. В таких домах перегородки в квартирах не являются несущими, и их можно убирать. Вот так выглядит изначальная планировка. 1. Для начала, объединим санузел. 2. Теперь стену проходной комнаты сдвинем в сторону коридора на 60 см. Так как площадь коридора не является жилой, на неё в дальнейшем можно будет перенести кухню. Оставшуюся часть коридора добавим к площади объединённого санузла. Все эти действия я проделываю только в плане, чтобы показать, как была получена итоговая план

В России квартиры стоят дорого (по отношению к зарплатам). При выборе квартиры покупателю важно заплатить меньше за большее количество метров.

В погоне за метрами можно упустить функциональность: дополнительно выгаданные метры часто оказываются в районе прихожей или коридора. Они непригодны для жилья. В таких случаях на помощь приходит перепланировка.

На примере небольшой трёшки (63 кв.м.) в доме серии II-18 рассмотрим, как перепланировка поможет лучше использовать жилую площадь.

Дом серии II-18 выбран не случайно. В таких домах перегородки в квартирах не являются несущими, и их можно убирать.

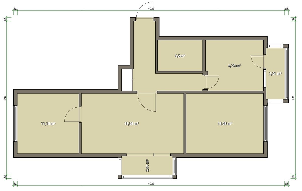
Вот так выглядит изначальная планировка.

1. Для начала, объединим санузел.

-2

2. Теперь стену проходной комнаты сдвинем в сторону коридора на 60 см. Так как площадь коридора не является жилой, на неё в дальнейшем можно будет перенести кухню.

Оставшуюся часть коридора добавим к площади объединённого санузла.

-3

Все эти действия я проделываю только в плане, чтобы показать, как была получена итоговая планировка.

3. Расширим проходную комнату, чтобы она заканчивалась там же, где начинается кухня.

-4

4. Между кухней и соседней изолированной комнатой обустроим тамбур на две двери.

-5

Так у нас получилась одна большая комната - будущая кухня-гостиная, и три небольших изолированных помещения.

5. На половине проходной комнаты обустроим кухню. Кухонный гарнитур с мокрой точкой расположился на месте бывшего коридора.

-6

6. Вторую половину кухни гостиной займут диван, кресло, ковер, комод с телевизором.

-7

7. На предыдущих планах видно, что большой объединенный санузел разбили снова на два (для удобства).

В одном туалет и мини-раковина. Во втором ванная, частично спрятанная в нишу, шкаф, закрывающий короб с канализационными трубами, и две небольшие раковины.

-8

Над раковинами подвешены шкафчики для хранения.

Стиральная машинка разместилась во встроенном шкафу в прихожей.

8. Получилось так.

-9
-10

9. В оставшихся трёх комнатах можно разместить хозяйскую спальню, кабинет и комнату для гостей.

-11

-12
-13
-14
-15

10. Или сделать хозяйскую спальню и две детские.

-16
-17

Хозяйская спальня размещается на месте бывшей кухни. На плане БТИ её не получится обозначить как спальню. Только как кабинет.