Найти в Дзене
Проектная мастерская №16

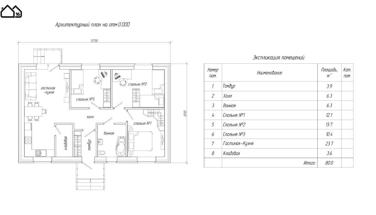
Проект одноэтажного дома площадью 80кв.м. с тремя спальнями.

Данный дом имеет габариты 12.7м на 8.3м и предназначен для заселения семьей из 4-5 человек. Основные помещения дома группируются в соответствии с их назначением, образуя функциональные зоны дневного пребывания и отдыха.
Расположение жилых комнат дает возможность свободной ориентации дома относительно сторон света, кроме того дом имеет двоякую возможность постановки относительно улицы. Планировка дома решена следующим образом - при входе в дом мы попадаем в тамбур слева от которого находятся кухонная кладовая, кухня и гостиная, справа - ванная и спальня, прямо - холл и две спальни. Из гостиной организован выход на приусадебный участок Основные архитектурно-строительные решения:
1. Наружные стены запроектированы трехслойными, выполненными из несущего внутреннего слоя, теплоизоляционного и наружного облицовочного слоя.
- Внутренний несущий слой выполняется из керамического пустотелого кирпича 2.1НФ толщиной 250мм
- Слой теплоизоляции толщиной 100мм
- Лицевой слой стен выполняется из

Данный дом имеет габариты 12.7м на 8.3м и предназначен для заселения семьей из 4-5 человек. Основные помещения дома группируются в соответствии с их назначением, образуя функциональные зоны дневного пребывания и отдыха.
Расположение жилых комнат дает возможность свободной ориентации дома относительно сторон света, кроме того дом имеет двоякую возможность постановки относительно улицы.

-2

Планировка дома решена следующим образом - при входе в дом мы попадаем в тамбур слева от которого находятся кухонная кладовая, кухня и гостиная, справа - ванная и спальня, прямо - холл и две спальни. Из гостиной организован выход на приусадебный участок

-3

Основные архитектурно-строительные решения:
1. Наружные стены запроектированы трехслойными, выполненными из несущего внутреннего слоя, теплоизоляционного и наружного облицовочного слоя.
- Внутренний несущий слой выполняется из керамического пустотелого кирпича 2.1НФ толщиной 250мм
- Слой теплоизоляции толщиной 100мм
- Лицевой слой стен выполняется из лицевого пустотелого керамического кирпича толщиной 120мм
2. Перегородки выполняются из керамического пустотелого кирпича 2.1НФ.
3. Перекрытие техподполья - железобетонные многопустотные плиты.
4. Чердачное перекрытие - по деревянным балкам
5. Крыша - чердачная, четырехскатная.
6. Кровля - гибкая черепица по деревянной стропильной системе.
7. Оконные блоки из ПВХ профилей с ламинированием.
8. Двери наружная - металлическая, внутренние - деревянные.

-4

Смотрите так же:

Проект дома площадью 81 кв.м. с тремя спальнями

Проект дома площадью 80кв.м. с двумя спальнями

Проект дома площадью 71кв.м. с двумя спальнями

и еще больше разных проектов на сайте Проектной мастерской №16