Найти в Дзене
Проектная мастерская №16

Проект дома площадью 80кв.м. с двумя спальнями для пожилой пары или семьи с одним или двумя детьми

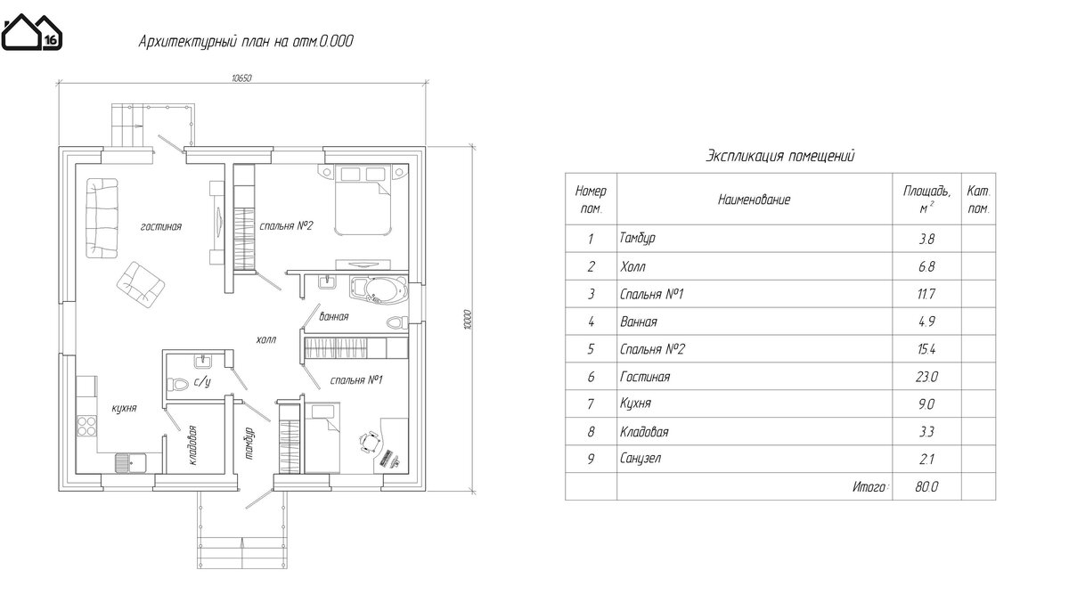
Вашему вниманию эскизный проект одноэтажного жилого дома общей площадью 80кв.м. (экспликацию помещений смотрите на планировке)
Данный дом предназначен для заселения семьей из 3-4 человек. Основные помещения дома группируются в соответствии с их назначением, образуя функциональные зоны дневного пребывания и отдыха.
Планировка дома решена следующим образом - при входе в дом мы попадаем в тамбур слева от которого находятся санузел, кухонная кладовая, кухня и гостиная, справа - ванная и спальня №1, прямо - холл и спальня №2. Из гостиной организован выход на приусадебный участок Расположение жилых комнат дает возможность свободной ориентации дома относительно сторон света, кроме того дом имеет двоякую возможность постановки относительно улицы.
В зависимости от местных условий строительства при применении проекта должны быть внесены соответствующие коррективы.
Если при привязке дом будет ориентирован фасадом с гостиной и кухней на улицу, следует принять решение по изменению расположения ок

Вашему вниманию эскизный проект одноэтажного жилого дома общей площадью 80кв.м. (экспликацию помещений смотрите на планировке)
Данный дом предназначен для заселения семьей из 3-4 человек.

планировка
планировка

Основные помещения дома группируются в соответствии с их назначением, образуя функциональные зоны дневного пребывания и отдыха.
Планировка дома решена следующим образом - при входе в дом мы попадаем в тамбур слева от которого находятся санузел, кухонная кладовая, кухня и гостиная, справа - ванная и спальня №1, прямо - холл и спальня №2. Из гостиной организован выход на приусадебный участок

-3

Расположение жилых комнат дает возможность свободной ориентации дома относительно сторон света, кроме того дом имеет двоякую возможность постановки относительно улицы.
В зависимости от местных условий строительства при применении проекта должны быть внесены соответствующие коррективы.
Если при привязке дом будет ориентирован фасадом с гостиной и кухней на улицу, следует принять решение по изменению расположения окон. Размеры проема и его заполнение сохраняются.

-4

Основные архитектурно-строительные решения:
1. Наружные стены запроектированы трехслойными, выполненными из несущего внутреннего слоя, теплоизоляционного и наружного облицовочного слоя.
- Внутренний несущий слой выполняется из керамического пустотелого кирпича 2.1НФ толщиной 250мм
- Слой теплоизоляции толщиной 100мм
- Лицевой слой стен выполняется из лицевого пустотелого керамического кирпича толщиной 120мм
2. Перегородки выполняются из керамического пустотелого кирпича 2.1НФ.
3. Перекрытие техподполья - железобетонные многопустотные плиты.
4. Чердачное перекрытие - по деревянным балкам
5. Крыша - чердачная, четырехскатная.
6. Кровля - металлочерепица по деревянной стропильной системе.
7. Оконные блоки из ПВХ профилей с ламинированием.
8. Двери наружная - металлическая, внутренние - деревянные

-5

Проектируем индивидуальные дома по всей России. Сделаем и для вас.

Заказать проект прямо сейчас >>