Найти в Дзене
Порубежье

Квадратный скандинавский дом. 3 спальни. 125 м2 - 143 м2. Ценность общения.

Скандинавский дом - это дом созданный для жизни и общения. Приоритет отдан помещениям совместного времяпровождения, спальни являются местами уединения и для сна. Предлагаем Вашему вниманию эскизный проект дома "VILLA VIKEN", проект представлен компанией "TRIVSELHUS" (Швеция). Справка о компании: "Trivselhus является шведским производителем домов от загородных (односемейных), многоквартирных до кондоминиумов. Trivselhus имеет офисы продаж от Мальме(Malmö) на юге до Лулео(Luleå) на севере, строит дома в Швеции и в других странах (например в Великобритании)." Источник: https://sv.wikipedia.org/wiki/Trivselhus Компактный и легко размещаемый дом на участке, где кухонный остров является заданным фокусом Общая площадь 143 кв. м. Площадь застройки 165 кв. м. Количество спален 3 Архитектор Бернт Густавзон/Фрида Обер ( Bernt Gustavzon/Frida Åberg) Стиль Современный (Modern) Кухонный остров расположен прямо в центре дома, откуда вы можете свободно перемещаться в обеденную зону, диванный-уголок
Оглавление

Скандинавский дом - это дом созданный для жизни и общения. Приоритет отдан помещениям совместного времяпровождения, спальни являются местами уединения и для сна.

Предлагаем Вашему вниманию эскизный проект дома "VILLA VIKEN",

проект представлен компанией "TRIVSELHUS" (Швеция).

Справка о компании: "Trivselhus является шведским производителем домов от загородных (односемейных), многоквартирных до кондоминиумов. Trivselhus имеет офисы продаж от Мальме(Malmö) на юге до Лулео(Luleå) на севере, строит дома в Швеции и в других странах (например в Великобритании)." Источник: https://sv.wikipedia.org/wiki/Trivselhus

Источник: https://www.trivselhus.se/husmodeller/villa-viken/
Источник: https://www.trivselhus.se/husmodeller/villa-viken/

Компактный и легко размещаемый дом на участке, где кухонный остров является заданным фокусом

Источник: https://www.trivselhus.se/husmodeller/villa-viken/
Источник: https://www.trivselhus.se/husmodeller/villa-viken/

Общая площадь 143 кв. м.

Площадь застройки 165 кв. м.

Количество спален 3

Архитектор Бернт Густавзон/Фрида Обер ( Bernt Gustavzon/Frida Åberg)

Стиль Современный (Modern)

Кухонный остров расположен прямо в центре дома, откуда вы можете свободно перемещаться в обеденную зону, диванный-уголок, в детскую общую комнату. Внешний вид строгий с асимметричным потолком и узкой вертикальной деревянной панелью производит впечатление.

Эскизы дома:

Источник: https://www.trivselhus.se/husmodeller/villa-viken/
Источник: https://www.trivselhus.se/husmodeller/villa-viken/

Источник: https://www.trivselhus.se/husmodeller/villa-viken/
Источник: https://www.trivselhus.se/husmodeller/villa-viken/
-5
Источник: https://www.trivselhus.se/husmodeller/villa-viken/
Источник: https://www.trivselhus.se/husmodeller/villa-viken/

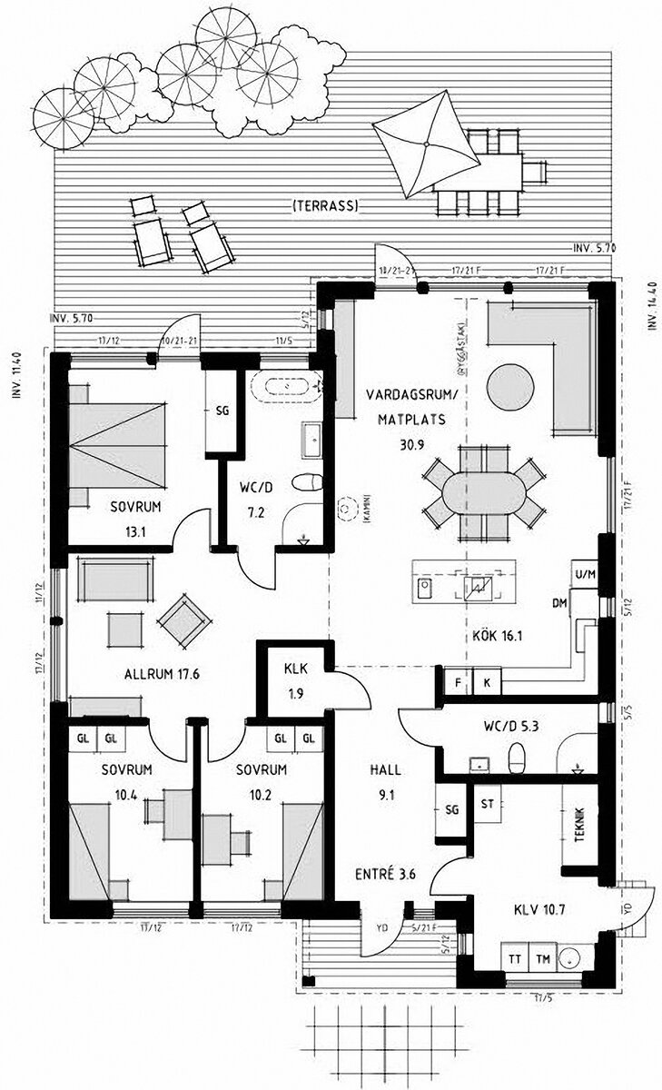
Из представленного плана видно следующее:

  • план практически квадратный,
  • кухня-гостиная имеет площадь 47 м2, её можно уменьшить, например, до 40 м2, без существенного ухудшения качества жизни,
  • компоновка дома практически симметричная, данный дом можно сделать с любым видом крыши (двускатная и четырёхскатная). Внешний вид, который предан ему архитекторами изначально. не должен отпугнуть людей, которые собираются построить себе дом в традиционном стиле.

Упростим дом до квадратной формы:

План дома с корректировками
План дома с корректировками

Что мы получили в результате:

все технические помещения (санузлы, кухня, топочная) находятся рядом,

дом имеет квадратную форму и симметричную компоновку.

Посмотрим на размеры помещений, при размере дома 12,5 м в ширину, чтобы перекрытия были изготовлены из балок длиной 6 м, с опиранием на стены по 15 см.

План дома с размерами
План дома с размерами

Размеры стен 12,48 м х 12,52 м

Общая площадь 127,65 кв. м.

Площадь застройки 156 кв. м.

Что мы видим:

  • кухня-гостиная имеет размер 41,72 м2, и при этом имеет нормальную форму,
  • спальни имеют приемлемые размеры, по моему мнению, от 10,53 м2,
  • топочная имеет размер 7,1 м2, этот размер достаточен для газового или электрического котла,
  • прихожая имеет размер 11,6 м2, в ней есть место для вещей,
  • санузлы имеют нормальные размеры и расположены удобно.

Крыша с наклонными стропилами по внутренней стене:

Чтобы дом привести к полной симметрии, нужно ширину кухни сделать 5,71 м, т.е. уменьшить её на 10 см, также придётся уменьшить ширину топочной или прихожей.

Если будет желание сделать ширину дома в 12,0 м, то размеры станут следующей:

0.4 наружная стена + 5,47 пролёт + 0,25 внутр. стена + 5,47 пролёт + 0,4 наружная стена = 11,99 м, т.о. ширина спальни составит 2,66 м, а площадь спальни составит 10,29 м2. Оценочно при размере дома 12 м х 12,04 м общая площадь составит 124,75 м2.

Минусы:

  • этот дом имеет достаточно большой размер, но ввиду того, что в нём предусмотрен грамотный расход материалов, то цена его постройки может быть близка цене дома с меньшими размерами, при постройке которого будет выброшен материал в виде обрезков.
  • этот дом можно уменьшить, только путём превращения его в дом с 2-мя спальнями.

Про комнату "ALLRUM"(Общая, игровая) мы ранее уже писали в 2-х статьях:

Вывод:

мы рады, что смогли найти и представить Вам этот проект, т.к. он действительно хорош.

Источник: https://www.avito.ru/sankt-peterburg/predlozheniya_uslug/proekt_teplogo_odnoetazhnogo_doma_1348849124
Источник: https://www.avito.ru/sankt-peterburg/predlozheniya_uslug/proekt_teplogo_odnoetazhnogo_doma_1348849124

P.S.:

Прошу в комментариях давать свою точку зрения. Критические замечания прошу аргументировать. Мы также будем рады, если будут высказывания чем этот проект понравился!