Найти в Дзене

Не ищи идеальный дом! Не ищи идеальный проект! Сразу строй дом "АМБАР" 👍

⚠️ Обсудим модный и актуальный сегодня стиль домов - Barnhouse (Амбар - в переводе с английского языка). Откуда и почему он стал столь популярным? Называют его по-разному: и амбар, и сарай, и ангар, и еще, наверное, несколько вариантов! 🤔 Раньше это и были старые амбары, мельницы, склады, конюшни и прочие здания, изначально не предназначенные для проживания. Их выкупали за небольшие деньги и переделывали в жилые дома. Просто, недорого, оригинально - что еще нужно для дома? Кто-то скажет - еще бы и удобно было! Да - и в нем удобно, внутри он практически ничем не отличается от обычного дома. В нем можно расположить все те же помещения. Первые образцы проектов подобных домов увидел еще в 2000-х. Это были чертежи европейских домов, каркасные, и точно - очень необычные и оригинальные, как минимум - внешне. И вот пришло время, захотелось построить небольшой дом, и выбор пал на подобную концепцию. Был разработан эскиз, потом проект. И началось строительство. В следующих статьях расскажу о
Пример дома BarnHouse
Пример дома BarnHouse

⚠️ Обсудим модный и актуальный сегодня стиль домов - Barnhouse (Амбар - в переводе с английского языка). Откуда и почему он стал столь популярным?

Называют его по-разному: и амбар, и сарай, и ангар, и еще, наверное, несколько вариантов!

🤔 Раньше это и были старые амбары, мельницы, склады, конюшни и прочие здания, изначально не предназначенные для проживания. Их выкупали за небольшие деньги и переделывали в жилые дома. Просто, недорого, оригинально - что еще нужно для дома? Кто-то скажет - еще бы и удобно было! Да - и в нем удобно, внутри он практически ничем не отличается от обычного дома. В нем можно расположить все те же помещения.

Первые образцы проектов подобных домов увидел еще в 2000-х. Это были чертежи европейских домов, каркасные, и точно - очень необычные и оригинальные, как минимум - внешне.

И вот пришло время, захотелось построить небольшой дом, и выбор пал на подобную концепцию. Был разработан эскиз, потом проект. И началось строительство.

В следующих статьях расскажу о проекте и этапах строительства. Это действительно - оказалось нетактичнейшим сложно, как могло показаться сначала. Конструкции все простые, без лишних деталей. Хотя, конечно, есть и свои особенности и сложности. Но об этом - в следующей статье.

А пока пишите в комментариях - что вам будет интересно узнать о этой технологии и виде домов - обо всем этом расскажу более подробно! 👋

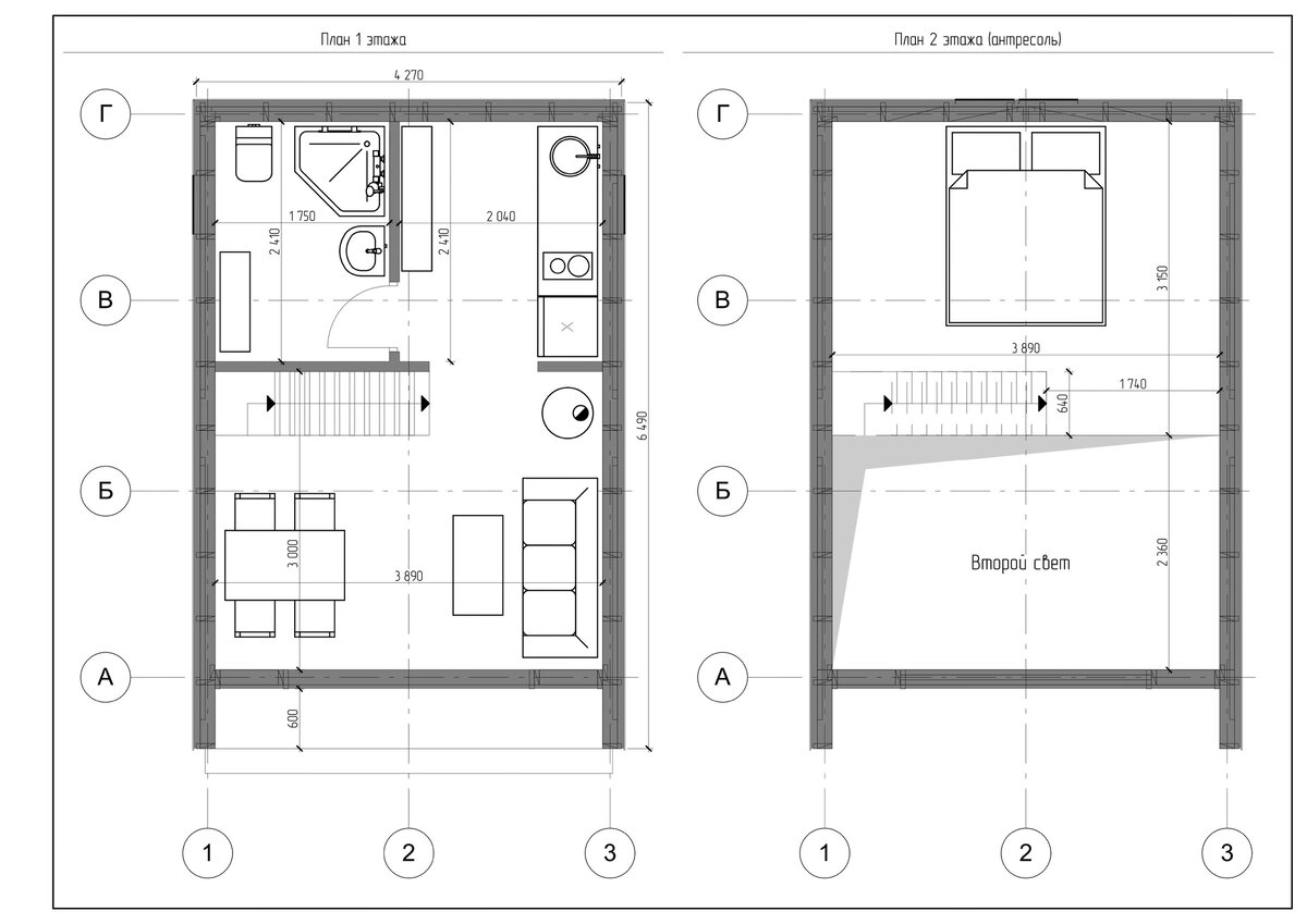
А пока прикладываю эскиз того, что уже в процессе строительства.

Планировка дома
Планировка дома
Внешний вид
Внешний вид
-4

-5

❗️Подписывайтесь на канал, чтобы ничего не пропустить 😎