Добавить в корзинуПозвонить
Найти в Дзене

Банька из оцилиндрованного бревна 5,4х4 метров

Добрый день! Сегодня хочу рассказать и показать как мы строили баню из оцилиндрованного бревна в Ленинградской области в СНТ Дубровец
Готовая баня под усадку в СНТ Дубровец
Готовая баня под усадку в СНТ Дубровец

Добрый день! Сегодня хочу рассказать и показать как мы строили баню из оцилиндрованного бревна в Ленинградской области в СНТ Дубровец

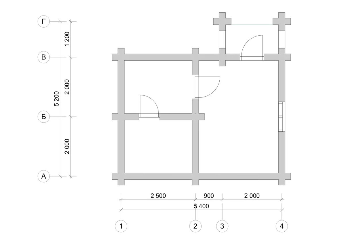
Заказчик пришел к нам со своим проектом, при это баня довольно стандартная 5,4х4 метров с небольшим крыльцом, предбанником, моечной и парилкой. Даже странно, что у нас в каталоге ее не было. Теперь мы взяли ее себе на вооружение.

Планировка бани
Планировка бани

В качестве основы использовали винтовые сваи, которые закрутили сразу после подписания договора. Использовали 108 сваи длиной 2,5 метра. Обвязку выполняли с помощью антисептированного бруса 150х200 мм. Строили осенью, поэтому обработку антисептиком выполняли прямо на участке. Обрабатывали антисептиком и все половые лаги.

Сам домокомплект изготовили на производстве из бревна 200 мм. Чаще всего для бань мы используем это диаметр, для бань больший диаметр использовать, обычно, не имеет смысла. Все чаши и пазы были нарезаны уже на производстве, поэтому сборка заняла всего неделю. Погодные условия были не самые лучшие для сборки: осень это постоянные дожди и сырость. Даже при том, что на производстве была произведено антисептирование, бревна начали немного чернеть. И тут важно не запустить этот момент и обработать бревна отбеливателем. Если оставить черноту, то потом это можно будет исправить только шлифовкой, а то немаленькие затраты

-3

Для кровли использовалась металлочерепица и обязательно укладывается ветро-влагозащита, чтобы потом можно было после усадки утеплить кровлю. Весной будем приступать к отделке сруба и полному оснащению бани. Все проекты можно посмотреть у нас на сайте

Спасибо за внимание!