Добавить в корзинуПозвонить
Найти в Дзене
4living

Из однушки — двушка в доме серии П 44

перепланировке квартиры от дизайнера Екатерины Чистовой
Оглавление
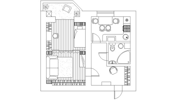
План квартиры до перепланировки
План квартиры до перепланировки

План перепланировки квартиры предложенный дизайнером Екатериной Чистовой
План перепланировки квартиры предложенный дизайнером Екатериной Чистовой

Так как в домах П-44 почти все стены несущие, а согласование — дело затратное, дизайнер предложила пойти по пути наименьшего сопротивления: убрала простенок, отделяющий комнату от балкона и увеличила площадь ванной комнаты за счет коридора (там стены некапитальные и подобная перепланировка может быть согласована). 

Дизайнер предложила разделить комнату стеклянными перегородками, которые днем можно открывать. А вечером — создавать приватность при помощи жалюзи, штор или специальных технологий, которые позволяют затемнять стекло нажатием кнопки пульта ДУ. Потому родители спокойно смогут вести взрослую жизнь, и не мешать ребенку спать. 

Детская часть комнаты

-3

Чтобы помещение получилось просторнее, присоединяем лоджию и утепляем ее. Если вы оставите «на месте» подоконный блок, вам не составит труда согласовать подобную перепланировку. Детскую зону располагаем в более светлой части комнаты.

Здесь есть шкафы для одежды и стеллаж для игрушек и книжек. Дети вырастают быстро, потому дизайнер рекомендует предусмотреть рабочее место «на вырост». Чтобы еще больше утеплить бывшую лоджию, дизайнер советует сделать теплый пол либо положить ковер с теплым ворсом. На лоджии достаточно места для шкафа с игрушками. Кроме того, там можно поставить мягкое кресло-мешок (дети их обожают).

Родительская часть комнаты

-4

За счет ликвидации балконного окна в комнате станет значительно светлее. Также в родительской части комнаты дизайнер рекомендует поставить шкаф-купе с зеркальными дверьми как раз напротив окна, чтобы днем в них отражался свет. Эта часть комнаты одновременно выполняет роль гостиной и спальни. Слева от входа большой шкаф для одежды, по бокам от дивана-кровати полочки для книг. А тумба для телевизора также служит вместительной системой хранения.