Найти в Дзене
Строю САМ. Строю ДОМ.

🍀 Проект дома. 5 комнат, небольшая кухня, столовая и гостиная. | Строю САМ

Здравствуйте! Предлагаю посмотреть мой проект, небольшого дома. Размер дома 12х8, один этаж, плюс мансарда. Как я уже говорил, не люблю длинные коридоры. Кухня будет как холл, но раздеваться придётся в тамбуре, хотя бы снять обувь. На первом этаже будет три комнаты или три спальни.
Площадь каждой комнаты - 12.2 м2.
В центре будет кухня плюс столовая.
Площадь кухни и столовой - 16.1 м2 На втором этаже будет две комнаты или две спальни.
Площадь каждой комнаты - 18.6 м2.
В центре будет небольшая гостиная с большим телевизором.
Площадь гостиной - 13.5 м2. В будущем, мебель в комнатах не будет совпадать с описанием. Варианты мебели, двуспальная кровать, простая кровать, диван, детская кровать. Осталось за малым, стоить, строить и ещё раз строить. Стройка продолжается, строю дом сам, строю один, работать одному тяжело, всё сам. Спасибо за лайк и ваш комментарий! 🍀
Проект дома, на мой взгляд лучший. Первый этаж.
Проект дома, на мой взгляд лучший. Первый этаж.
Проект дома, на мой взгляд лучший. Второй этаж.
Проект дома, на мой взгляд лучший. Второй этаж.

Здравствуйте! Предлагаю посмотреть мой проект, небольшого дома. Размер дома 12х8, один этаж, плюс мансарда. Как я уже говорил, не люблю длинные коридоры. Кухня будет как холл, но раздеваться придётся в тамбуре, хотя бы снять обувь.

На первом этаже будет три комнаты или три спальни.
Площадь каждой комнаты - 12.2 м2.
В центре будет кухня плюс столовая.
Площадь кухни и столовой - 16.1 м2

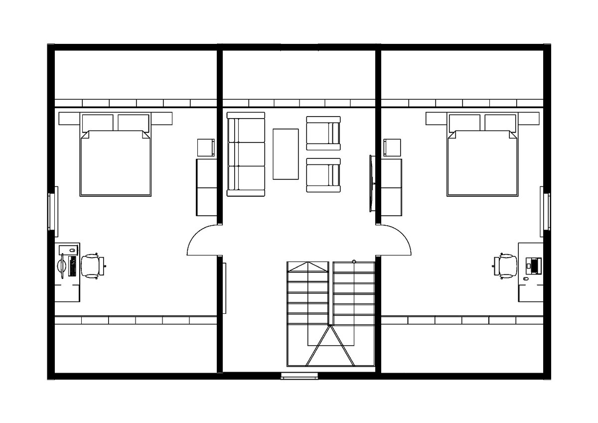
На втором этаже будет две комнаты или две спальни.
Площадь каждой комнаты - 18.6 м2.
В центре будет небольшая гостиная с большим телевизором.
Площадь гостиной - 13.5 м2.

В будущем, мебель в комнатах не будет совпадать с описанием. Варианты мебели, двуспальная кровать, простая кровать, диван, детская кровать.

Осталось за малым, стоить, строить и ещё раз строить.

Стройка продолжается, строю дом сам, строю один, работать одному тяжело, всё сам.

Спасибо за лайк и ваш комментарий! 🍀