Добавить в корзинуПозвонить
Найти в Дзене

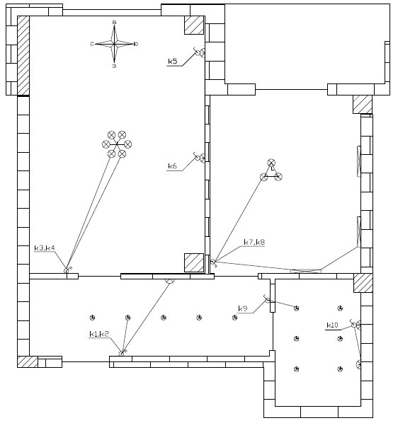
Новоселье, освещение

Квартира имеет расположение окон на восток, что значительно облегчает задачу освещения в квартире, однако искусственное освещение все равно будем рассчитывать с запасом.

Разводка освещения квартиры
Разводка освещения квартиры

Квартира имеет расположение окон на восток, что значительно облегчает задачу освещения в квартире, однако искусственное освещение все равно будем рассчитывать с запасом. За основу расчетов возьмем нормативы СНиП по освещению жилых помещений.

Нормативы СНиП и справочные данные для расчета освещения
Нормативы СНиП и справочные данные для расчета освещения

Так как высота потолка в помещении 2,8 м, то коэффициент высоты потолка имеет значение Кп=1,2.

Кухня.

Разводка освещения на кухне
Разводка освещения на кухне

Не смотря на норматив освещенности кухни в 150 Лк,  расчет будем проводить для значения 200 Лк, так как кухня помимо своего основного назначения, иногда будет использоваться и для посиделок с ноутбуком. В качестве основного источника света будет использоваться трехрожковая люстра с плафонами направленными вниз, что позволяет ее поднять как можно выше к натяжному потолку и соответственно расширить зону освещенности. При этом обойтись, без подсветки рабочей зоны на кухне не обойтись - в качестве источника света будем использовать 3 лампы дневного света мощностью 18 Вт с мат0вым рассеивателем. Кроме того предполагается декоративное освещение кухни по верху. Включение декоративной и рабочей подсветки заведено на один выключатель.

Расчет освещения кухни.
Расчет освещения кухни.

При расчете освещения исключим площадь занимаемую кухней, соответственно все расчеты будут производиться для уменьшенной площади. В принципе основного освещения от люстры вполне достаточно для всей кухни, фактически освещение рабочей зоны кухни избыточно, но оно необходимо для комфортной работы непосредственно на рабочей поверхности кухонного гарнитура.

Спальня/зал

Разводка освещения зала/спальни
Разводка освещения зала/спальни

Освещение зала довольно простая задача, люстра по геометрическому центру зала - этого вполне достаточно для основного освещения. Люстра на 6 рожков управляется двухклавишным выключателем.

Разводка прикроватного освещения
Разводка прикроватного освещения

Отказаться от прикроватных настенных светильников будет сложно, ибо светильники ночники прочно вписываются по обе стороны изголовья. Высота установки светильников должна быть как можно ниже - на высоте 1,2м.

Расчет освещения в зале
Расчет освещения в зале

Сан. узел.

Разводка освещения в сан. узле
Разводка освещения в сан. узле

Рассчитать освещение в сан.узле довольно просто - достаточно шести точечных светильников для основного освещения. В качестве дополнительного освещения будут использоваться два светильника по бокам зеркала над умывальником.

Расчет освещения в сан.узле
Расчет освещения в сан.узле

Коридор.

Разводка освещения в коридоре
Разводка освещения в коридоре

Освещение коридора будем рассчитывать как и и кухню - за вычетом платяного шкафа.  В качестве основного освящения используется точечное освещение на 5 светильников.  В качестве дополнительного освещения используется светильник - на стене у зеркала.

Расчет освещения в коридоре
Расчет освещения в коридоре

Суммарная мощность потребления всего освещения составляет 800 Вт, что при напряжении  220 В составляет  потребление тока в 3,64 А.

Для освещения выбираем автоматический выключатель с характеристикой B на 6А  (например https://www.etm.ru/cat/nn/7192664 по цене 291 руб. 00 коп. )  и соответственно проводку делаем плоским медным кабелем  1.5 кв.мм. ВВГ-Пнг(А)

Освещение прикроватной зоны оба светильника будет заведено с прикроватных розеток. Освещение  умывальника будет заведено с розеток умывальника, соотвественно через дифференциальный выключатель - поэтому в расчетах на освещение эти светильники не будут участвовать.

Расчет кабеля.

Примерные расчеты по длине кабеля 1.5 кв.мм. ВВГ-Пнг(А)

Освещение коридора (выключатель к1, к2)  - 22,52 м.
Освещение зала (выключатель к3, к4) - 7,18 м.
Освещение кухни (выключатель к7, к8) - 16,61 м.
Освещение с/у (выключатель к9)  - 12,02 м.

Итого расчетные данные  по кабелю 1.5 кв.мм. ВВГ-Пнг(А)  -  58,33 м.

Кабель с 10% запасом потребуется около 65 м. кабеля 1.5 кв.мм. ВВГ-Пнг(А), что при цене 63,8 руб.  за 1 м. составит 4147 руб.00 коп.

Расчет выключателей.

В качестве выключателей будут использоваться серия VALENA слоновая кость от производителя Legrand

Рамки

Valena Рамка 1 пост горизонтальная слоновая кость (https://www.etm.ru/cat/nn/9770544) по цене 55,9 руб.  :
к1, к2 - 1 шт.
к3, к4 - 1 шт.
к7, к8 - 1 шт.
к9 - 1 шт.
к10 -1 шт.
Итого 5 шт по цене 55,9 руб. = 279,5 руб.

Выключатель Valena, слоновая кость от производителя Legrand

Valena выключатель одноклавишный, в рамку, слоновая кость (https://www.etm.ru/cat/nn/9770526) по цене 226 руб.
к5 - 1 шт.
к6 -1 шт.
к9 - 1 шт.
к10 -1 шт.
Итого 4 шт по цене 226 руб. = 904 руб.

Valena выключатель двухклавишный в рамку слоновая кость (https://www.etm.ru/cat/nn/9715897) по цене 394 руб.
к1, к2 - 1 шт.
к3, к4 -1 шт.
к7, к8 - 1 шт.
Итого 3 шт по цене 394 руб. = 1182 руб.

Итого по установочным изделиям: 279,5 руб. + 904 руб. + 1182 руб. =   2365,5 руб.

Общие расходы на освещение.

Кабель 1.5 кв.мм. ВВГ-Пнг(А) - 4147 руб.00 коп.

Выключатель автоматический однополюсный 6A B Easy9 4.5кА - 299 руб. 00 коп.

Установочные изделия - 2365,5 руб.

Итого: 6811, 5 руб.