Добавить в корзинуПозвонить
Найти в Дзене
INMYROOM

Раскрываем секреты преображения: из тесной однушки сделали комфортную двушку. Рассказываем и показываем фото ДО, и После

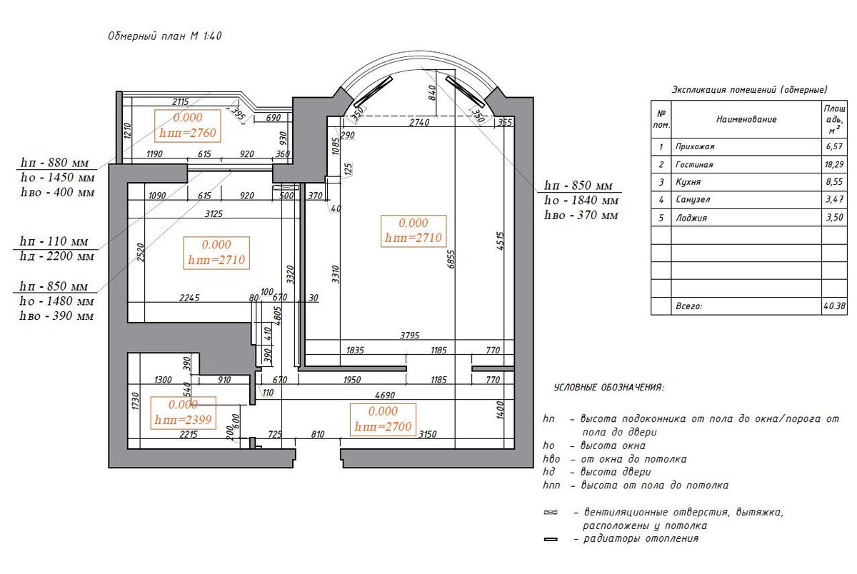
Владельцам однокомнатных квартир прекрасно знакомо то чувство, когда катастрофически не хватает места. Но даже стесненное пространство можно расширить. Дизайнер Мария Безрукова доказала это на своем примере, переоборудовав однушку заказчика в уютную зону для отдыха и работы. И все это в пределах всего 43 м²! Рассказываем, как ей это удалось. Предыстория Хозяин жилплощади, молодой студент, приобрел вторичку – прежние жильцы не делали капитальный ремонт и оставили все как есть. Это открыло большое поле для деятельности, поскольку атмосфера домашнего уюта должна была органично сочетаться с рабочей обстановкой. Мария Безрукова предложила организовать еще одну комнату – для этого пришлось пожертвовать коридором и урезать прихожую. Вход в кухню организовали за счет гостиной, а спальное место сделали возле окна. Нюансы перепланировки Хозяину однушки нужно было заселиться уже в сентябре, а к реализации проекта приступили лишь в мае. Времени было в обрез, поэтому стройматериалы покупали из нали
Оглавление

Владельцам однокомнатных квартир прекрасно знакомо то чувство, когда катастрофически не хватает места. Но даже стесненное пространство можно расширить. Дизайнер Мария Безрукова доказала это на своем примере, переоборудовав однушку заказчика в уютную зону для отдыха и работы. И все это в пределах всего 43 м²! Рассказываем, как ей это удалось.

Предыстория

Хозяин жилплощади, молодой студент, приобрел вторичку – прежние жильцы не делали капитальный ремонт и оставили все как есть. Это открыло большое поле для деятельности, поскольку атмосфера домашнего уюта должна была органично сочетаться с рабочей обстановкой.

-2

Мария Безрукова предложила организовать еще одну комнату – для этого пришлось пожертвовать коридором и урезать прихожую. Вход в кухню организовали за счет гостиной, а спальное место сделали возле окна.

Нюансы перепланировки

Хозяину однушки нужно было заселиться уже в сентябре, а к реализации проекта приступили лишь в мае. Времени было в обрез, поэтому стройматериалы покупали из наличия в гипермаркетах. Пол застелили ламинатом, стены отделали краской и оклеили красивыми обоями. Ванную обложили обычной плиткой бежевого цвета.

Кухню, гостиную и спальню «соорудили» путем демонтажа старых и возведения новых перегородок. А чтобы в квартиру проникал дневной свет, переоборудовали балкон и обустроили фрамуги со стеклом. Двери также оснастили стеклянными вставками – визуально это сделало пространство светлее.

-3
-4
-5

Система хранения

С системой хранения проблем не возникло даже несмотря на ограниченный метраж. В нише прихожей поставили вместительный шкаф до потолка, а в спальне – шкафы пониже. Около стола для работы тоже установили ряд стеллажей и полок, чтобы было где расположить компьютер и образовательную литературу.

-6
-7
-8

Цветовая палитра

Изначальная цветовая гамма квартиры оставляла желать лучшего – она была выполнена в розовых тонах, что не совсем подходило студенту-мужчине. В нежно-розовом оттенке сделали только стены в гостиной. В спальне обои имеют довольно контрастный принт – веточки с розоватыми почками на темно-синем фоне. Другие стены решили выполнить в оттенке трюфеля, чтобы визуально не загромождать интерьер и не делать его слишком броским.

-9
-10
-11

Мебель

Поскольку хозяин хотел лично оценить мебель перед покупкой, ее первоначально тестировали в бутиках, после чего уже включили в дизайн-проект.

-12

Среди приобретенных брендов много российских – кровать, кухонный стол The Idea. Некоторую мебель взяли в ИКЕА, чтобы она гармонично вписалась в маленькое пространство. Кое-что пришлось изготовить под заказ: кухню, шкаф и стеллаж для прихожей.

-13
-14

Последним штрихом стало украшение интерьера яркими деталями с целью подчеркнуть творческую натуру собственника. Именно поэтому квартиру декорировали стильными постерами и ярким текстилем. Вот так удалось организовать нейтральное пространство с изюминкой, идеальное для молодого человека, который сможет вносить в него корректировки.

-15
-16
-17
-18
-19

Посмотрите наши люстры, бра и подвесные светильники. Подарок 🎁 1000 ₽ на первый заказ от 20 000 руб. Введите промокод ZEN при заказе на INMYROOM (действуют ограничения).

-20

Ставьте лайк и подписывайтесь на канал INMYROOM.RU, чтобы видеть наши публикации в своей ленте!

Еще больше вариантов дизайна типовых российских квартир смотрите на нашем youtube-канале INMYROOM TV. А в нашем маркетплейсе вы можете купить тысячи красивых предметов мебели и декора.

Смотрите нас в Youtube, Instagram, Facebook, Вконтакте