Найти в Дзене
4living

Комната с нишей-альковом: детская зона в алькове

Оглавление
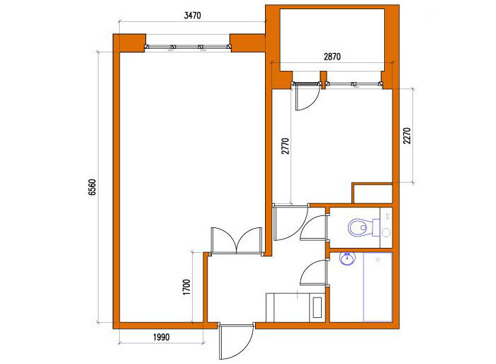
Обмерный план помещения
Обмерный план помещения

Семья из 3 человек: мама, папа и ребенок — годовалая девочка обратились к дизайнеру с вопросом, как можно совместить в комнате

  • детскую (пока это только кроватка),
  • гостиную (диван, тумба под ТВ),
  • спальню (шкаф-купе, кровать шириной 1,40 м, сейчас стоит в нише)
  • место для компьютера и ноутбука?

При этом среди пожеланий заказчика - сохранить нишу — стену между прихожей и комнатой.

Ответ дизайнера Светланы Кудрявцевой

Совет: Комната с нишей нуждается в притоке свежего воздуха. В алькове, скорее всего, будет «застревать» запах из кухни. Возможно, стоит подумать о приточной принудительной вентиляции комнаты. Особенно если вы воспользуетесь советом и поставите в альков детскую кроватку. 

Первый вариант расстановки мебели: детская зона в алькове

-2
  • Удалось устроить даже детский уголок со своим шкафом. Но и свободного места осталось немного.
  • Родительскую кровать выносим к балкону, вплотную к ней располагаем рабочий стол и кресла на колесиках (для большей мобильности).
  • В центре комнаты образуется игровая зона с мягким ковром. Вдали от сквозняков размещается «детская». 
Положение взрослой кровати может варьироваться: она либо располагается по стене с диваном, либо (как на плане) у стены кухни.
Положение взрослой кровати может варьироваться: она либо располагается по стене с диваном, либо (как на плане) у стены кухни.

О втором варианте планировки комнаты мы расскажем в следующей статье. Следите за обновления.