Найти в Дзене

Большой одноэтажный 163 кв.м., 3 спальни и 1 кабинет.

Всем привет! Вы на канале Частный дом и жизнь в нем, подпишитесь
Я не проектировщик и не строитель. Я увлеченный любитель. На канале я собираю понравившиеся мне планировки частных домов под любые условия и нужды людей, которые только собираются строиться. Может быть кому-то помогут мои публикации.

Всем привет! Вы на канале Частный дом и жизнь в нем, подпишитесь

Я не проектировщик и не строитель. Я увлеченный любитель. На канале я собираю понравившиеся мне планировки частных домов под любые условия и нужды людей, которые только собираются строиться. Может быть кому-то помогут мои публикации.
Очень прошу не выплескивать негатив в комментариях, критику воспринимаем легко, но хамство порицаем.

Сегодня я покажу вам большой функциональный одноэтажный дом с 3-мя спальными комнатами и кабинетом.

Дом площадью почти 163кв.м. для большого широкого участка земли, если у вас есть таковой, вы молодая семья с 2-4 детьми, у вас запланирован хороший бюджет, смело стройте большой уютный дом.

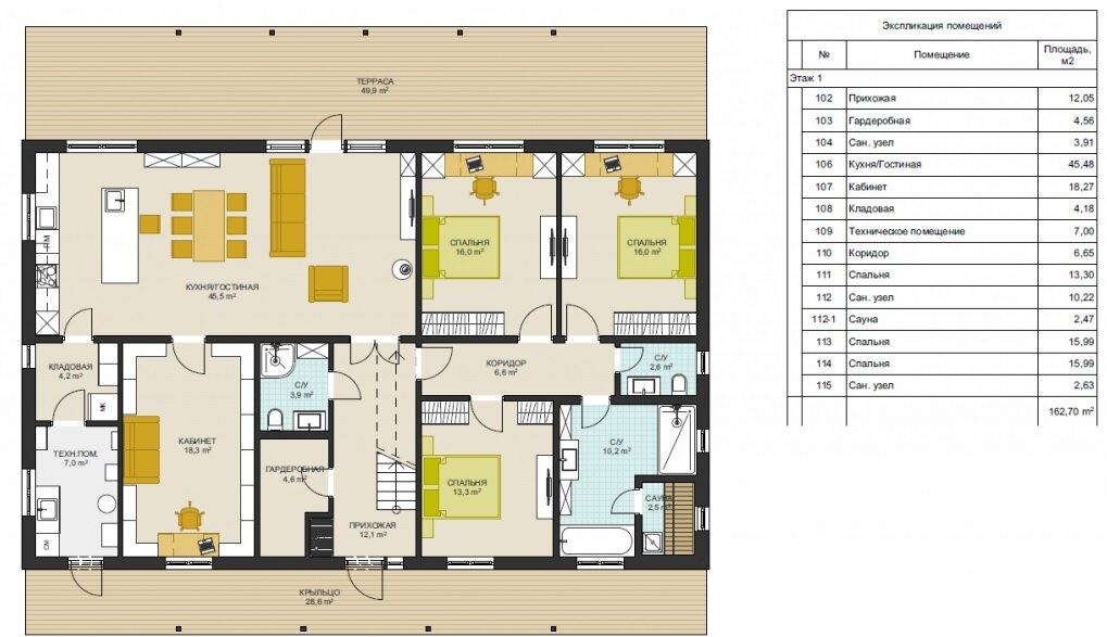
Планировка:

планировка
планировка

Заходим в дом и сразу попадаем в прихожую 12,1кв.м. с гардеробной 4,6кв.м. - очень удачное расположение. У моих друзей в доме примерно такого же размера холл на входе и гардеробная, много места, удобно раздеваться большому количеству гостей.

В прихожей также расположен гостевой с/у 3,9кв.м. Думаю, все таки этот с/у будет использоваться как основной, обычно люди при входе в дом, всегда идут в ближайший туалет, он близко к гостиной, где проводится много времени, соответственно и пользоваться будут туалетом ближайшем к той самой гостиной. Расположение с/у на мой взгляд очень удобное.

Дом разделен на 2 половины: зона гостиной и приватная зона. Для того, кто захотел отдохнуть или заболел никаких неудобств, связанных с просмотром телевизора или шумом из гостиной не будет.

Справой стороны расположены 3 спальные комнаты. Две детские по 16,0кв.м., одна спальная комната родителей, пара с/у, в одной из которых есть не большая домашняя сауна.

Левая сторона дома включает в себя большую кухню-гостиную 45,5кв.м. Гостиная имеет выход на узкую большую террасу для летних посиделок за шашлыком и бокалом вина)

Кабинет 18,3кв.м. для людей, который работают на дому или дистанционно очень большой плюс. У многих семей в квартирах таких размеров гостиная, а тут это всего-то кабинет для работы). Такой кабинет отлично подойдет "бизнес-вумен", у которой дело основано на творчестве, нужно много места для оборудования и изделий. Также кабинет можно использовать и в качестве комнаты для гостей.

Большая теплогенераторная 7,0кв.м. куда можно уместить все оборудование и даже больше.

При кухне-гостиной есть кладовая для заготовок и продуктов, очень хорошее решение. Много читаю и делаю выводы, если такие кладовки не запланированы в доме, люди жалеют, что не сделали ее.

-3

Чем больше мест хранения в частном доме, тем лучше.

Как вам такой дом? большой? маленький? Вполне подходящий?

Напишите свои мнения)

Читайте также:

Немецкие стильные планировки домов с 3-мя спальнями.

Комплекс на 4 семьи с 2-мя спальнями на секцию. Получил 5 архитектурных премий.

Одноэтажный дом с 3-мя спальнями и сауной.

Большой одноэтажный 140кв.м с 3-мя спальнями + 1.