Найти в Дзене
тыквинлес

Серый шелк и пионы. Прихожая в хрущевке

Прихожая в кирпичной хрущевке, как обычно - безумно маленькая и узкая. Задача была такая: не нагружать пространство (места хранения для сезонной одежды уже есть в мини-гардеробной), сделать много места для хранения обуви с удобным доступом, место для косметики и зеркала, крючки для повседневной одежды и сумок-рюкзаков, ключница, место для хранения средств по уходу за обувью... кажется все. А, и обязательно закрыть электрощиток. Фотки до: Размеры: Обувница глубиной всего 165 мм, как раз для наших размеров: Ну и сам проект: Проект уже в работе - арт-панель приехала, ждем ручки, крючки и светильники: Часть идей - заслуга заказчика. Например - кухонный рейлинг с крючками и формат ключницы. Если Вас интересует стоимость проектирования интерьера или мебели, возможность производства и доставка, то пишите нам в ВК или в ватсап (а также вайбер и телеграм) +79203330377. Ждем в гости в группу в ВК, чтобы следить за нашими проектами и их реализацией :) А еще у нас есть instagram. С уважением, В

Прихожая в кирпичной хрущевке, как обычно - безумно маленькая и узкая. Задача была такая: не нагружать пространство (места хранения для сезонной одежды уже есть в мини-гардеробной), сделать много места для хранения обуви с удобным доступом, место для косметики и зеркала, крючки для повседневной одежды и сумок-рюкзаков, ключница, место для хранения средств по уходу за обувью... кажется все. А, и обязательно закрыть электрощиток.

Фотки до:

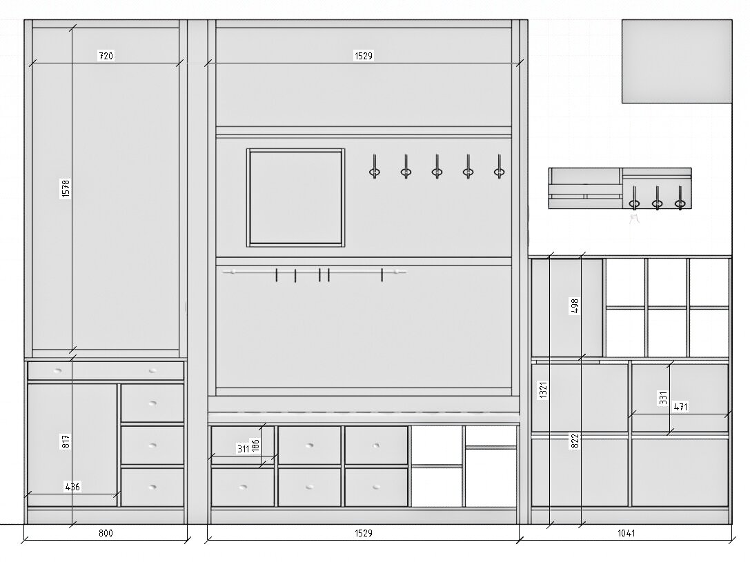
Размеры:

-2

Обувница глубиной всего 165 мм, как раз для наших размеров:

-3

Ну и сам проект:

-4
-5

Проект уже в работе - арт-панель приехала, ждем ручки, крючки и светильники:

Часть идей - заслуга заказчика. Например - кухонный рейлинг с крючками и формат ключницы.

Если Вас интересует стоимость проектирования интерьера или мебели, возможность производства и доставка, то пишите нам в ВК или в ватсап (а также вайбер и телеграм) +79203330377.

Ждем в гости в группу в ВК, чтобы следить за нашими проектами и их реализацией :)

А еще у нас есть instagram.

С уважением, Ваш тЫквинЛес.