Найти в Дзене

Неоклассицизм: королевское великолепие без королевских затрат

Неоклассический – так в российском искусствоведении называется ретроспективный архитектурный стиль, выдержанный в традициях античности и классицизма эпохи Возрождения. Это направление зодчества зародилось в конце XIX века, а пика своего развития достигло в XX веке. Развитие стиля до сих пор продолжается. Общая характеристика стиля Неоклассицизм – противопоставление перегруженному декором стилю модерн, бывшему на пике моды вплоть до Первой мировой войны. Неоклассицизм, хоть и опирается на проверенные временем традиции классики, но отличается воздушностью, прямолинейностью, легкостью, изяществом. Главные черты стиля: Неоклассика удовлетворяет потребность в монументальном стиле, одновременно сохраняя ценности традиционного зодчества и разгружая облик зданий за счет сокращения деталей. В основе неоклассика базируется на ордерной системе, появившейся еще в Древней Греции и описанной в I веке до н. э. архитектором Витрувием. Слово (от латинского «ordo») означает строй, порядок, который леж

Неоклассический – так в российском искусствоведении называется ретроспективный архитектурный стиль, выдержанный в традициях античности и классицизма эпохи Возрождения. Это направление зодчества зародилось в конце XIX века, а пика своего развития достигло в XX веке. Развитие стиля до сих пор продолжается.

Общая характеристика стиля

Неоклассицизм – противопоставление перегруженному декором стилю модерн, бывшему на пике моды вплоть до Первой мировой войны. Неоклассицизм, хоть и опирается на проверенные временем традиции классики, но отличается воздушностью, прямолинейностью, легкостью, изяществом.

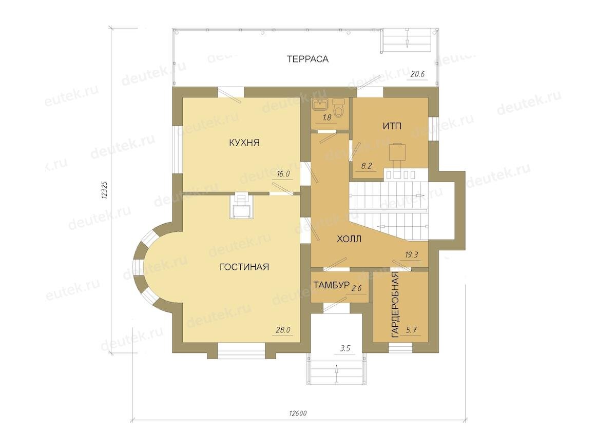
Проект двухэтажного кирпичного дома в стиле Неоклассицизм - KR13
Проект двухэтажного кирпичного дома в стиле Неоклассицизм - KR13

Главные черты стиля:

  • декор сведен к минимуму,
  • строгость линий и пропорций,
  • симметричные формы,
  • прямоугольные фасады,
  • купола и колонны,
  • спокойная цветовая гамма;
  • смешение классики и ренессансных мотивов,
  • отказ от чрезмерной жесткости консервативного классицизма.

Неоклассика удовлетворяет потребность в монументальном стиле, одновременно сохраняя ценности традиционного зодчества и разгружая облик зданий за счет сокращения деталей.

В основе неоклассика базируется на ордерной системе, появившейся еще в Древней Греции и описанной в I веке до н. э. архитектором Витрувием. Слово (от латинского «ordo») означает строй, порядок, который лежит в основе древних египетских сооружений, а также множества монументальных зданий Древних Греции и Рима.

Примеры неоклассики в российском градостроении

В России стиль начал стремительное развитие в самом начале XX века с подачи петербургского художника Александра Бенуа. Движение быстро охватило Москву и Петербург, и распространилось в провинции.

Примеры:

«Дом Антоновой» - на Большом проспекте Петроградской стороны (Санкт-Петербург)
«Дом Антоновой» - на Большом проспекте Петроградской стороны (Санкт-Петербург)

«Дом с башнями» - на площади Льва Толстого (Санкт-Петербург);
«Дом с башнями» - на площади Льва Толстого (Санкт-Петербург);
«Дом Скакового общества»
«Дом Скакового общества»

«Центральный театр Красной Армии» - в Москве;

«Политехнический институт» - в Иваново и многие другие.

Задачи неоклассицизма

Неоклассицизм как интерпретация классических принципов в архитектуре решает задачу возрождения и развития целостности облика городов в сочетании старинного изящества, городского лоска и современной инфраструктуры.

Неоклассицизм XXI века – это красиво, практично, уютно, стильно и комфортно.

Готовые проекты загородных домов в неоклассическом стиле предполагают сдержанную цветовую гамму, использование натуральных материалов, декор в виде лепнины, зеркал, светильников без излишней помпезности с сохранением лучших черт традиционной классической архитектуры.