Добавить в корзинуПозвонить
Найти в Дзене

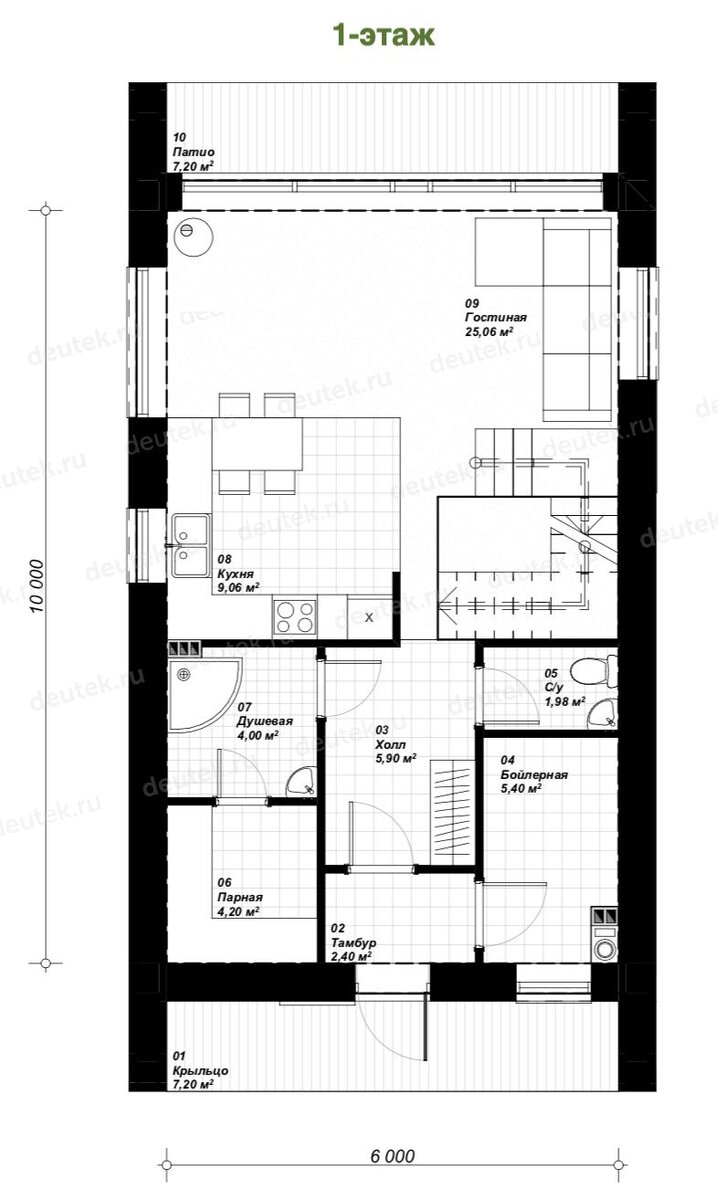
Переезжаем в сарай: стиль Barn house снова в моде

Архитектурный стиль Барнхаус – название происходит от слова Barn, что и означает «амбар». Направление зародилось в Западной Европе в конце прошлого столетия по весьма практичным соображениям – для удобства ухода за скотом фермеры на длительное время переселялись из жилых домов в пристройки-сараи для загонов. В связи с чем пристройки все более приспосабливались для нужд человека и со временем из

Архитектурный стиль Барнхаус – название происходит от слова Barn, что и означает «амбар». Направление зародилось в Западной Европе в конце прошлого столетия по весьма практичным соображениям – для удобства ухода за скотом фермеры на длительное время переселялись из жилых домов в пристройки-сараи для загонов. В связи с чем пристройки все более приспосабливались для нужд человека и со временем из сараев превратились в полноценное жилье с неповторимым колоритом.

Дом-сарай (барнхаус) – это максимально практичное, аскетичное жилое сооружение, смесь минимализма, лофта и архитектурной бионики. Удобство, примитивизм и максимальная лояльность к окружающей среде – главные особенности этого необычного стиля загородного строительства. В его основе:

  • Закрытый простой контур;
  • Никакого декора;
  • Двускатная симметричная или ассиметричная крыша;
  • Каркасная или брусная основа;
  • Открытые просторные террасы;
  • Крупная входная дверь;
  • Отсутствие плинтусов, карнизов, перегородок;
  • Лаконичная отделка.

Основной посыл этого архитектурного стиля – дать человеку возможность максимального слияния с природой без потери ощущения цивилизованного комфорта, создание гармоничного единства архитектуры и живой природы.

Особенности технологии barnhouse

Дом должен максимально напоминать хозяйственную постройку – функциональную, практичную, простую и крепкую.

  • Дом-сарай не нуждается в капитальном основании, для его возведения достаточно ленточного фундамента или винтовых свай. Сама конструкция благодаря прямоугольной форме предельно устойчива.
  • Отсутствие необходимости в мощном фундаменте позволяет строить дома в заболоченных местностях, на склонах гор и в других местах, малопригодных для строительства.
  • Дополнительную прочность конструкции сообщают вертикальные балки.
  • Внутреннее пространство дома остается открытым. Зонирование производится стропилами, лестницами, предметами интерьера, цветом и светом.
  • Материалы для строительства используются самые простые: древесина, известняк, природный камень, кирпич-сырец. Древесина же (вагонка, доски) масштабно используется и в отделке, и в интерьере.

Кроме того, в строительстве в стиле barnhouse применяются архитектурно-технические решения, позволяющие использовать природные виды энергии — энергию солнца, ветра, воды и другие.