Найти в Дзене
СИПТЕХ.РФ

Дом по проекту «Климово» - это отличное вложение с гарантированным результатом.

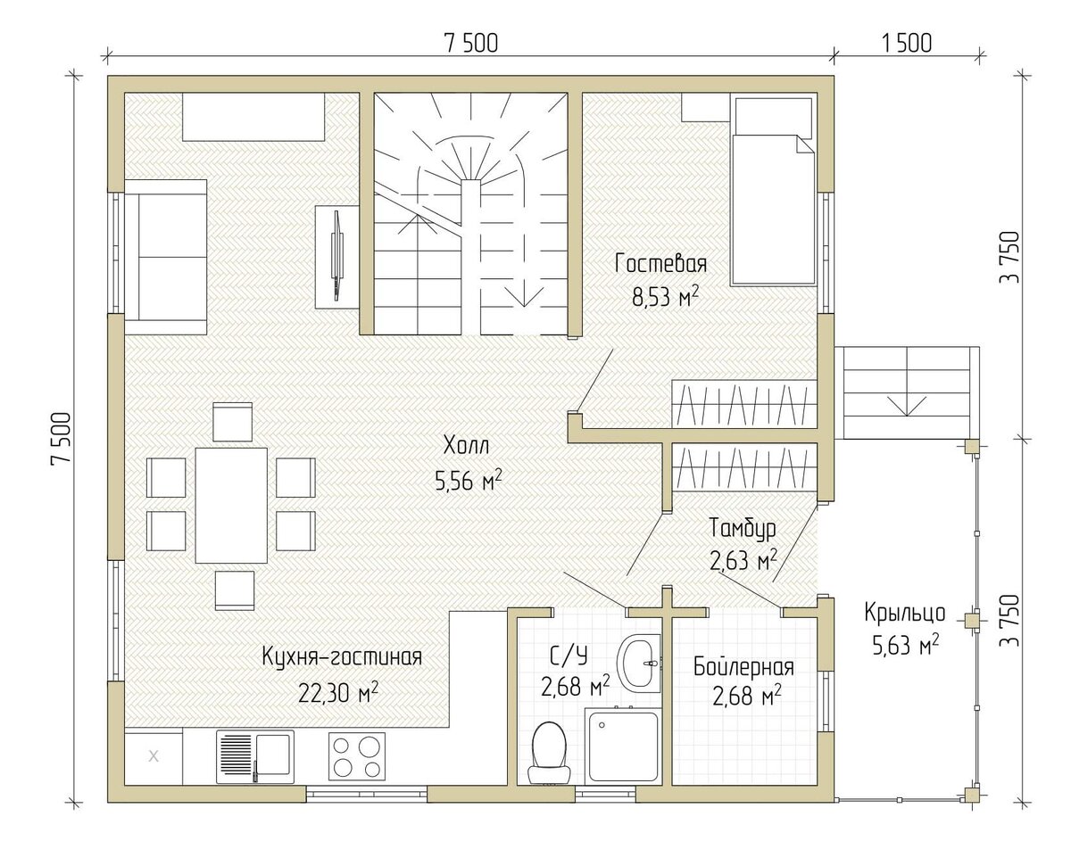
Дом по проекту «Климово» - это отличное вложение с гарантированным результатом – домом для всей семьи! Компактный, но вместительный, дом «Климово» площадью 112м2 имеет габариты 7,5 на 8,5 м2, и еще 1,5м2 в ширину занимает крыльцо. Этот дом обойдется вам в 1 097 000 руб., - это основная цена, без учета оконных работ и крыльца. Дом вмещает три спальни, два санузла на первом и на втором этаже, рабочий кабинет и большую кухню-гостиную (22,3 м2), где могут собираться шумные компании, а можно готовить ужин и усадить за стол всех домашних. В таком доме прекрасно разместится одна семья, найдется место и детям, и родителям. Входная группа здания – это небольшое крыльцо, где летом прекрасно будут смотреться цветы, и где уютно пить кофе по утрам. В доме предусмотрено специальное техническое помещение под бойлер, а на втором этаже размещается небольшая гардеробная для хозяйки дома. Для тех, кому время от времени нужно поработать в тишине, готов кабинет площадью 5,9 м2, с возможностью заниматься

Дом по проекту «Климово» - это отличное вложение с гарантированным результатом – домом для всей семьи!

Компактный, но вместительный, дом «Климово» площадью 112м2 имеет габариты 7,5 на 8,5 м2, и еще 1,5м2 в ширину занимает крыльцо. Этот дом обойдется вам в 1 097 000 руб., - это основная цена, без учета оконных работ и крыльца.

Фасад
Фасад

Дом вмещает три спальни, два санузла на первом и на втором этаже, рабочий кабинет и большую кухню-гостиную (22,3 м2), где могут собираться шумные компании, а можно готовить ужин и усадить за стол всех домашних. В таком доме прекрасно разместится одна семья, найдется место и детям, и родителям.

Входная группа здания – это небольшое крыльцо, где летом прекрасно будут смотреться цветы, и где уютно пить кофе по утрам.

Планировка
Планировка

В доме предусмотрено специальное техническое помещение под бойлер, а на втором этаже размещается небольшая гардеробная для хозяйки дома. Для тех, кому время от времени нужно поработать в тишине, готов кабинет площадью 5,9 м2, с возможностью заниматься делами, не отвлекаясь на посторонние звуки.

Место для работы предусмотрено и в обеих спальнях второго этажа – если в семье есть школьники, в любой из них можно разместить рабочий стол, соблюдая требования к освещению.

А если ребенок любит подвижные игры – на первом этаже есть холл. Хотя что может быть приятнее игр на свежем воздухе!

В конструкции дома использовано удачное решение – СИП-панели снаружи, каркасные перегородки внутри. Межэтажное перекрытие – балочное, а сам дом стоит на виниловых сваях.

Этажи соединены изящной лестницей, чья конструкция продумана так, чтобы занимать как можно меньше полезной площади, но при этом быть комфортабельной и безопасной.

При устройстве крыши используется стропильная система, сама крыша – из прочной металлочерепицы. По вашему желанию может быть обустроен чердак, где эргономично разместится не только вся бытовая техника, но и все, что требует длительного хранения - зимнюю одежду, спортивный инвентарь, и прочие сезонные вещи.

В этом доме будет все, как вам хочется.