Добавить в корзинуПозвонить
Найти в Дзене
Проектная мастерская №16

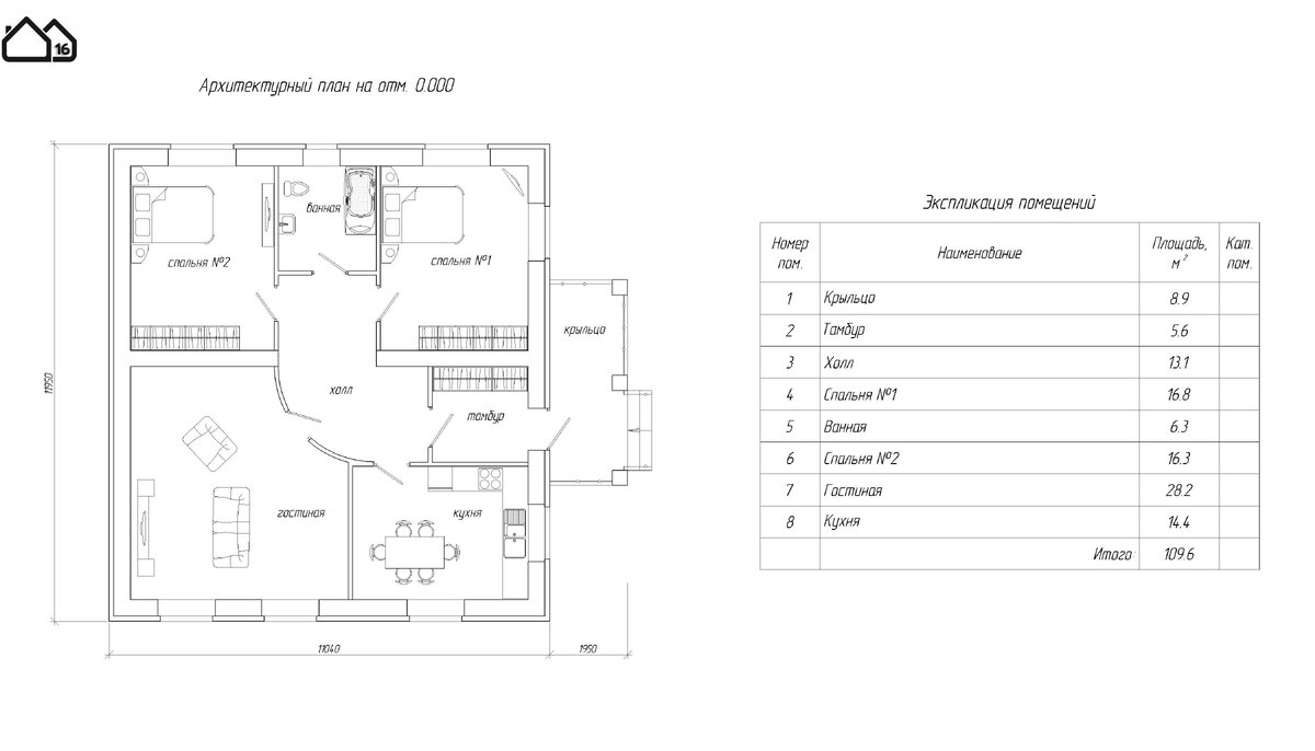
Проект одноэтажного дома площадью 110кв.м. с двумя спальнями.

Дом имеет размеры в плане 12х11м. Планировка дома решена вокруг центральной комнаты - холла. Спальни и санузел находятся в дальней части холла, при входе же слева расположилась кухня а далее - гостиная. Фундамент дома решен на буровых сваях, полы - по грунту. Стены - двухслойные с несущим слоем из газоблока с облицовкой керамическим кирпичом. Чердачное перекрытие - по деревянным балкам, крыша - по деревянной стропильной системе с покрытием металлочерепицей. Если у вас есть вопросы по данному или другому проекту с нашего сайта, пишите их на вастап +79047122103. Рабочий проект на данное эскизное решение в части архитектуры и конструкций (без чертежей инженерных систем) будет стоить 10т.р. Стоимость полного проекта можно рассчитать по прайс-листу.

Дом имеет размеры в плане 12х11м. Планировка дома решена вокруг центральной комнаты - холла. Спальни и санузел находятся в дальней части холла, при входе же слева расположилась кухня а далее - гостиная.

-2

Фундамент дома решен на буровых сваях, полы - по грунту. Стены - двухслойные с несущим слоем из газоблока с облицовкой керамическим кирпичом. Чердачное перекрытие - по деревянным балкам, крыша - по деревянной стропильной системе с покрытием металлочерепицей.

-3
-4
-5

Если у вас есть вопросы по данному или другому проекту с нашего сайта, пишите их на вастап +79047122103.

Рабочий проект на данное эскизное решение в части архитектуры и конструкций (без чертежей инженерных систем) будет стоить 10т.р. Стоимость полного проекта можно рассчитать по прайс-листу.