Найти в Дзене
4living

Однушка в панельном доме

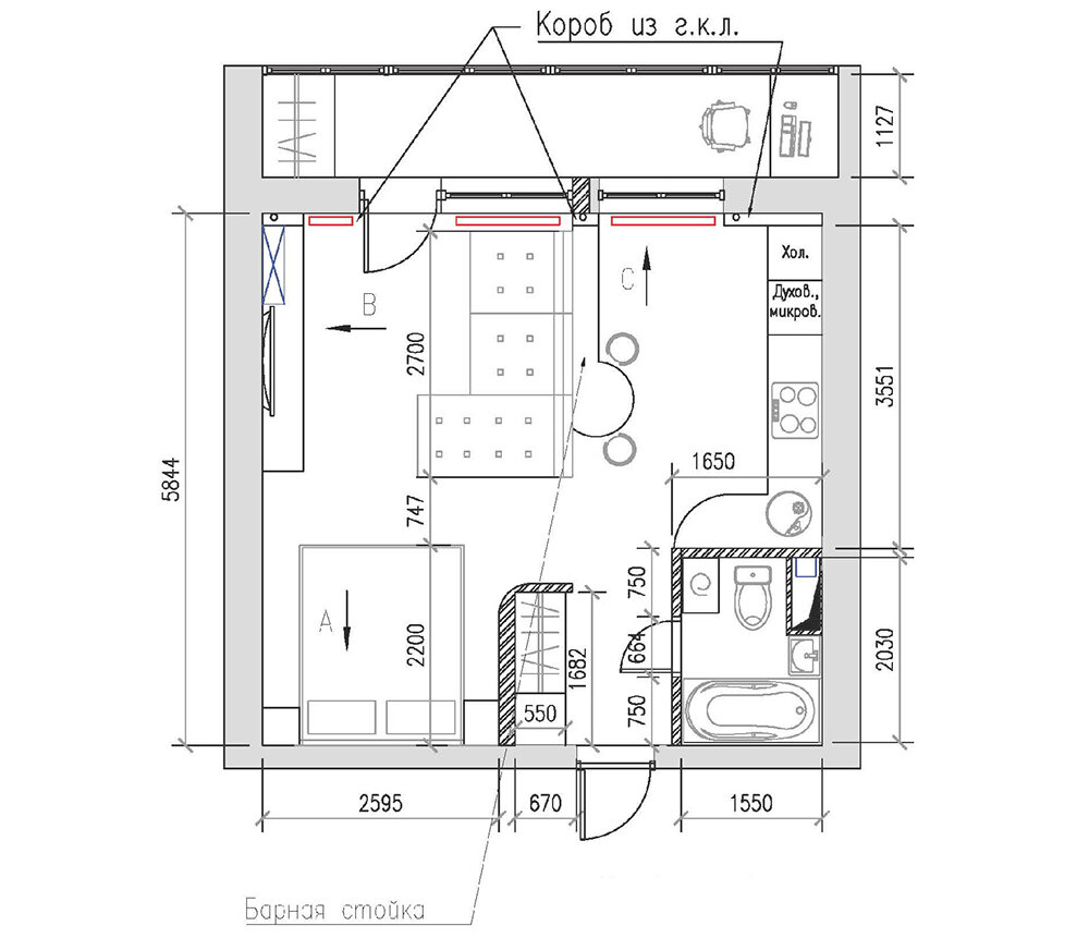
Снести старые стены – не проблема. Проблема – на освободившемся пространстве выстроить несколько необходимых зон и при этом сохранить студийный простор.  Сведения о квартире: однокомнатная квартира площадью 41,4 кв. м на 9 этаже панельного 16-этажного дома. Владельцы квартиры: молодая, энергичная семья. Пожелания клиентов: преобразовать однокомнатную квартиру в студию.  Перепланировка однокомнатной квартиры в панельном доме началась со сноса всех внутренних ненесущих перегородок. В итоге небольшая по размерам однокомнатная квартира превратилась в просторную студию. Присоединять балкон заказчики не решились, поэтому его приспособили под кабинет. Зону санузла увеличили за счет уменьшения прихожей и кухонной зоны. Чтобы сэкономить пространство, вместо обеденного стола установили барную стойку, которая разделяет гостиную и кухню. Владельцы квартиры, энергичная молодая пара, оказались поклонниками свежих, ярких красок. Поэтому дизайнеры предложили им оформить квартиру в цветах «весенне

Снести старые стены – не проблема. Проблема – на освободившемся пространстве выстроить несколько необходимых зон и при этом сохранить студийный простор. 

Сведения о квартире: однокомнатная квартира площадью 41,4 кв. м на 9 этаже панельного 16-этажного дома.

Владельцы квартиры: молодая, энергичная семья.

Пожелания клиентов: преобразовать однокомнатную квартиру в студию. 

-2

Перепланировка однокомнатной квартиры в панельном доме началась со сноса всех внутренних ненесущих перегородок. В итоге небольшая по размерам однокомнатная квартира превратилась в просторную студию. Присоединять балкон заказчики не решились, поэтому его приспособили под кабинет. Зону санузла увеличили за счет уменьшения прихожей и кухонной зоны. Чтобы сэкономить пространство, вместо обеденного стола установили барную стойку, которая разделяет гостиную и кухню.

Владельцы квартиры, энергичная молодая пара, оказались поклонниками свежих, ярких красок. Поэтому дизайнеры предложили им оформить квартиру в цветах «весеннего дня» — белых, зеленых и коричневых тонах, что идеально подходит для создания хорошего настроения. 

-3

Зеркальные дверцы шкафа способствуют визуальному увеличению прихожей.

-4

Уже из прихожей открывается прекрасный вид на гостевую зону, совмещающую в себе и гостиную, и кухню с обеденной зоной.

-5

Шкафчики в ТВ-зоне отделаны в тон напольного покрытия.

-6

Необычно решена подсветка обеденной зоны — голые лампочки на цветных подвесах, словно новогодние игрушки на елке, создают праздничное настроение.

-7

Цвет яркой зелени присутствует в каждом уголке студийного пространства.

-8

Кабинет — единственное изолированное место в квартире. Балкон утеплен, поэтому работать на нем можно в любое время года.

-9

Спальная зона является частью гостиной. В духе общей концепции она обставлена белой мебелью и декорирована ярко-зелеными аксессуарами.

-10

Тема природы представлена панно с бамбуковой рощей и симметричной развеской картинок на ту же тему.

-11

Площадь ванны невелика, поэтому предпочтение отдали стиральной машинке с вертикальной загрузкой.

-12

В ванной, как и в других помещениях, интерьер оформлен в выбранной цветовой палитре — белый, зеленый, тепло-коричневый.