Добавить в корзинуПозвонить
Найти в Дзене
Проектная мастерская №16

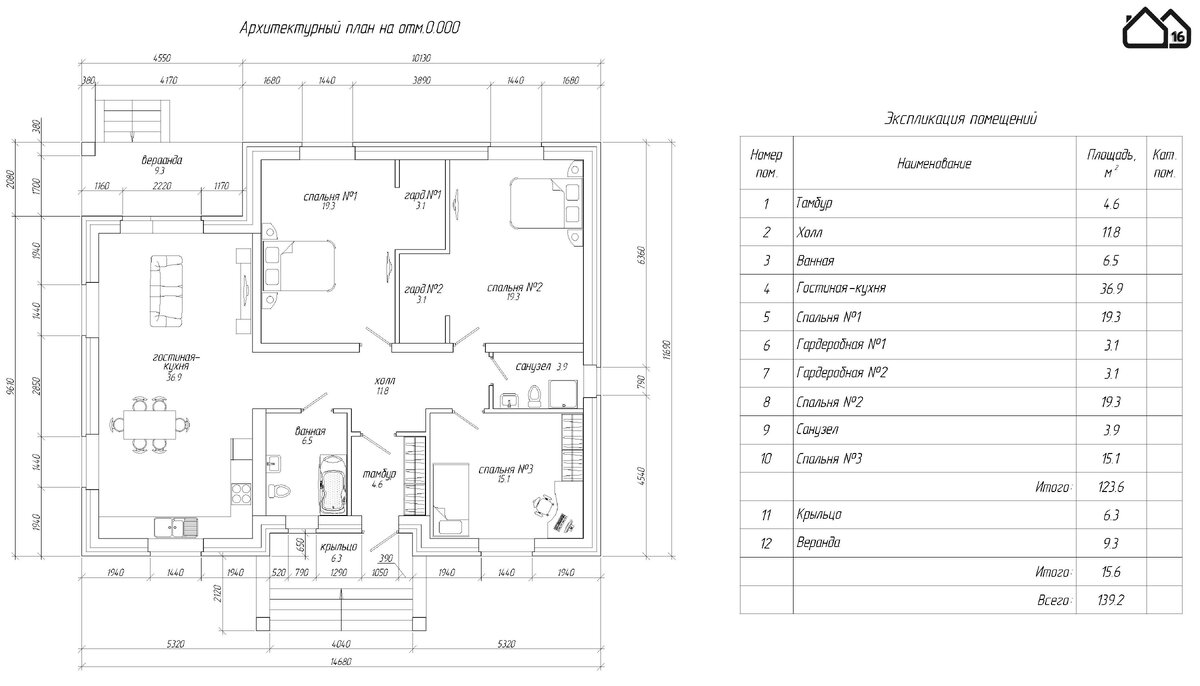
Эскизный проект одноэтажного дома площадью 139кв.м. Три спальни при двух санузлах

Дом запроектирован с тремя спальнями, двумя санузлами и совмещенными гостиной и кухней. Из гостиной имеется выход на веранду, из которой открывается вид на приусадебный участок. Наружные стены дома выполнены по трехслойной системе толщиной 490мм, крыша - четырехскатная (вальмовая) с уклоном 25 градусов. К ответу на комментарий, где основным посылом была то, что спальни не должны иметь общих перегородок, как минимум разделены гардеробными, выкладываю вот такой проект. Так же смотрите другие наши проекты индивидуальных жилых домов

Дом запроектирован с тремя спальнями, двумя санузлами и совмещенными гостиной и кухней. Из гостиной имеется выход на веранду, из которой открывается вид на приусадебный участок.

Наружные стены дома выполнены по трехслойной системе толщиной 490мм, крыша - четырехскатная (вальмовая) с уклоном 25 градусов.

-2

К ответу на комментарий, где основным посылом была то, что спальни не должны иметь общих перегородок, как минимум разделены гардеробными, выкладываю вот такой проект.

-3
-4

Так же смотрите другие наши проекты индивидуальных жилых домов