Добавить в корзинуПозвонить
Найти в Дзене
4living

Из однушки — двушка с детской и многофункциональной гостиной

Как грамотно поделить жилое пространство однокомнатной квартиры, чтобы выделить место для дополнительного помещения? Ищем ответ в проекте Ольги Самвелян. Сведения о квартире: однокомнатная квартира площадью 48,6 кв. м в новостройке в западном р-не г. Ростова-на-Дону. Владельцы квартиры: мать с дочерью первоклассницей. Пожелания клиентов: сделать из однокомнатной квартиры двухкомнатную в стиле современного минимализма.  Заказчица хотела видеть интерьер своей квартиры лаконичным, но при этом комфортным и по-современному красочным. Перепланировка квартиры началась со сноса перегородки между комнатой и кухней. Часть жилой комнаты отошла новообразованной многофункциональной гостиной, включающей в себя кухню. Оставшееся пространство поделили между собой детская и гардеробная. Помимо этого рядом с прихожей была выстроена постирочная, а к гостиной присоединили балкон, где разместилась столовая с восхитительным видом на окружающий пейзаж. Все плюсы грамотной планировки и продуманно современ

Как грамотно поделить жилое пространство однокомнатной квартиры, чтобы выделить место для дополнительного помещения? Ищем ответ в проекте Ольги Самвелян.

Детская – самое красочное помещение во всей квартире. Современный интерьер выстроен на сочетании ярких цветов и нестандартной обстановки.
Детская – самое красочное помещение во всей квартире. Современный интерьер выстроен на сочетании ярких цветов и нестандартной обстановки.

Сведения о квартире: однокомнатная квартира площадью 48,6 кв. м в новостройке в западном р-не г. Ростова-на-Дону.

Владельцы квартиры: мать с дочерью первоклассницей.

Пожелания клиентов: сделать из однокомнатной квартиры двухкомнатную в стиле современного минимализма. 

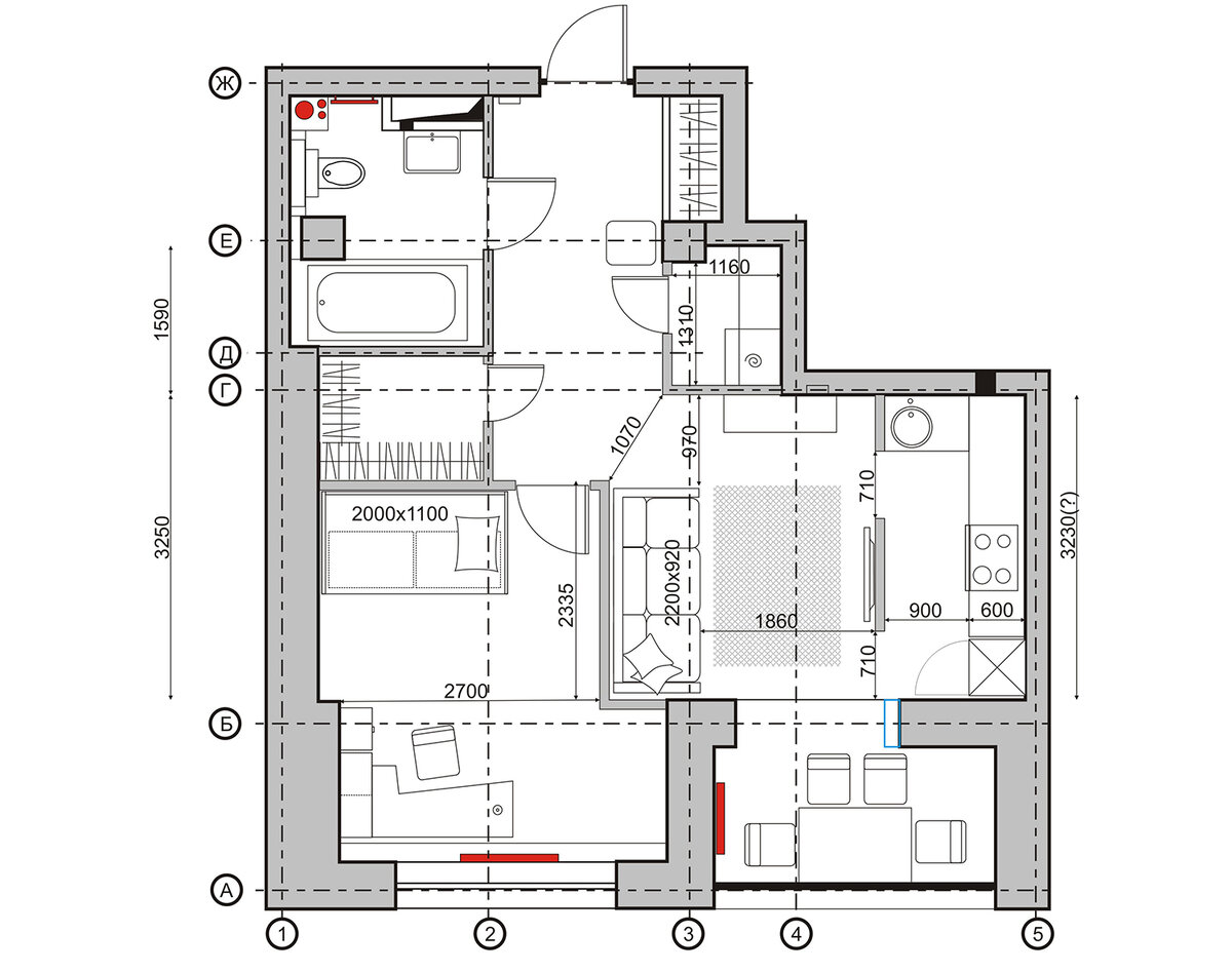
План однушки после евроремонта 1-комнатной квартиры и превращения ее в двухкомнатное жилище.
План однушки после евроремонта 1-комнатной квартиры и превращения ее в двухкомнатное жилище.

Заказчица хотела видеть интерьер своей квартиры лаконичным, но при этом комфортным и по-современному красочным. Перепланировка квартиры началась со сноса перегородки между комнатой и кухней. Часть жилой комнаты отошла новообразованной многофункциональной гостиной, включающей в себя кухню. Оставшееся пространство поделили между собой детская и гардеробная. Помимо этого рядом с прихожей была выстроена постирочная, а к гостиной присоединили балкон, где разместилась столовая с восхитительным видом на окружающий пейзаж. Все плюсы грамотной планировки и продуманно современного интерьера можно увидеть на фото евроремонта 1-комнатной квартиры.   

-3

Ряд фото евроремонта 1-комнатной квартиры начинается с визуализации прихожей, которую отличает строго геометрическая форма (никаких выступающих шкафов и навесных вешалок) и по-современному лаконичное оформление.   

-4

Прихожая плавно перетекает в общественную зону. Интерьер холла окрашен в глубокий синий цвет с контрастными белыми молдингами и дополнен бирюзовыми рисунками. 

-5

В многофункциональной гостиной мягкая зона украшена свисающими светильниками, мягкий свет которых смягчает строгую геометрию комнаты.

-6

Диванная зона расположилась в своеобразной нише, которая выстроена на площади, отвоеванной у жилой комнаты.

-7

Также в гостиной появилась еще одна ниша с низким комодом, что придало проекту некую архитектурную изюминку.

-8

Для зрительного выделения кухонной зоны используется функциональная перегородка с биокамином и телевизионной плазмой.

-9

Кухня имеет исключительно функциональный характер — максимальное использование полезной площади, закрытые фасады плюс встроенная техника.

-10

Обеденный стол вынесен на присоединенный балкон. Проем на балкон был слишком широкий и не вписывался в одну линию с перегородками зала — так возникли импровизированные полочки из ГКЛ. 

-11

В детской выстроено сразу несколько разноцелевых зон — для учебы, сна, чтения и игр. Интересным объектом является доска для рисования. Когда ребенок вырастет, доску можно будет заменить на телевизор — розетка для его подключения предусмотрена изначально. 

-12

Синий цвет, который использован во всех жилых помещениях квартиры, в детской дополнен сочными элементами других расцветок — ярко желтым столом и кроватными ящичками и красным компьютерным стулом. 

-13

В интерьере санузла заказчица не хотела использовать цвета, которые перекликались бы с цветовой палитрой жилых помещений. Так на свет появилась ванная в бело-малиновой гамме. 

-14

Несущая колонна посредине санузла была использована как продолжение душевой ширмы для ванны.