Добавить в корзинуПозвонить
Найти в Дзене
Планировка

Проект дома (раздам бесплатно)

Данный проект выполнялся архитектором для заказчика в 2007г. Построен в Московской области. Общая площадь - около 147м.кв. Проект рассчитан на средний бюджет. Материалы - пенобетон, облицованный панелями под кирпич. Цоколь - облицовка кирпичом. Крыша - покрытие из металлочерепицы. Фундамент столбчатый. Недостатки: Достоинства: Раздаю БЕСПЛАТНО стадию проект. Комплект чертежей стадии ПРОЕКТ состоящий из: Есть рабочая документация, включающая дополнительно чертежи: Нужен проект - в комментарии пишите почту куда отправить! Раздаю личный архив проекта архитектора. Проект раздается впервые. Понравилось - подписывайся на канал!

Данный проект выполнялся архитектором для заказчика в 2007г. Построен в Московской области.

Общая площадь - около 147м.кв.

Главный фасад.
Главный фасад.
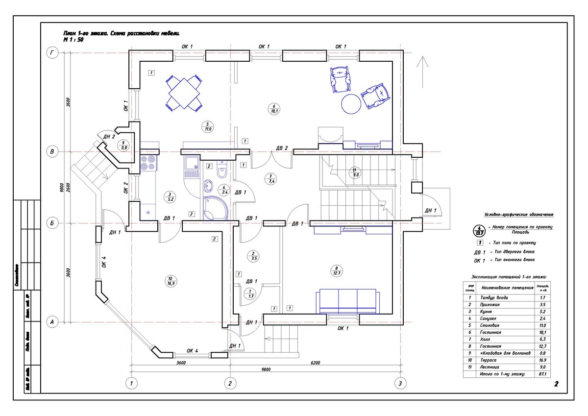
План первого этажа.
План первого этажа.
План второго этажа
План второго этажа

Боковой фасад.
Боковой фасад.

Проект рассчитан на средний бюджет. Материалы - пенобетон, облицованный панелями под кирпич. Цоколь - облицовка кирпичом. Крыша - покрытие из металлочерепицы. Фундамент столбчатый.

Недостатки:

  • сложная крыша,
  • предусмотрено использование газа в газовых баллонах (что не для всех практично).

Достоинства:

  • большая крытая терраса,
  • гостиная - столовая,
  • четыре спальни.
  • подвал под частью дома
Разрез.
Разрез.

Раздаю БЕСПЛАТНО стадию проект. Комплект чертежей стадии ПРОЕКТ состоящий из:

  • план фундамента;
  • поэтажные планы;
  • разрез;
  • план кровли.

Есть рабочая документация, включающая дополнительно чертежи:

  • армирования фундамента и ведомости расхода материалов,
  • кладочные планы,
  • планы перекрытий,
  • планы стропильной системы,
  • развертки по стенам (для кладочников)
  • спецификации,
  • ведомости отделки помещений,
  • узлы и детали.

Нужен проект - в комментарии пишите почту куда отправить! Раздаю личный архив проекта архитектора. Проект раздается впервые.

Понравилось - подписывайся на канал!