Найти в Дзене
ПЛАНОБЗОР

Обзор проекта частного дома №25.

Здравствуйте. Сегодня рассмотрим проект двухэтажного жилого дома с пристроенным гаражом, общей площадью 155,79 м2. Данный проект можно найти на Яндекс Дзен на двух каналах - на канале знакомой по предыдущим обзорам проектов строительной компании Веванта, а также на канале архитектурного бюро "Архитекторы Тюмени". Как позже выяснилось, бюро "Архитекторы Тюмени" является "дочерней компанией" Веванты. Но давайте уже рассмотрим проект дома. Дом прямоугольной формы с двускатной крышей и пристроенным гаражом, который имеет трехскатную крышу. Дом имеет простую в плане форму и крышу, что благоприятно скажется на сохранении домом тепла. Оба этажа дома полноценные, хотя второй этаж можно было сделать и пониже - полумансардой. Так удастся сохранить полезную площадь второго этажа, при этом снизив затраты на строительство дома. Вход в дом осуществляется через остекленную веранду, которую можно назвать плюсом данного дома, так как такая веранда будет выполнять роль дополнительного холодного тамбура

Здравствуйте.

Сегодня рассмотрим проект двухэтажного жилого дома с пристроенным гаражом, общей площадью 155,79 м2.

Данный проект можно найти на Яндекс Дзен на двух каналах - на канале знакомой по предыдущим обзорам проектов строительной компании Веванта, а также на канале архитектурного бюро "Архитекторы Тюмени". Как позже выяснилось, бюро "Архитекторы Тюмени" является "дочерней компанией" Веванты. Но давайте уже рассмотрим проект дома.

Дом прямоугольной формы с двускатной крышей и пристроенным гаражом, который имеет трехскатную крышу. Дом имеет простую в плане форму и крышу, что благоприятно скажется на сохранении домом тепла. Оба этажа дома полноценные, хотя второй этаж можно было сделать и пониже - полумансардой. Так удастся сохранить полезную площадь второго этажа, при этом снизив затраты на строительство дома.

Вход в дом осуществляется через остекленную веранду, которую можно назвать плюсом данного дома, так как такая веранда будет выполнять роль дополнительного холодного тамбура, здесь же летом можно оставлять и уличную обувь. На заднем фасаде дома есть второй выход - выход на задний двор или террасу. Третья дверь служит входом в помещение котельной.

А вот что в доме не нравится, так это дизайн отделки. Он старомоден и слишком сильно распространен - хотя кто-то назовет его классикой. Имея такой простой в архитектурном плане дом и не слегка несвежий дизайн, хозяин дома рискует потерять свою индивидуальность и затеряться среди многих похожих. Современные архитекторы стараются простые в плане дома выделять всяческими архитектурными и дизайнерскими элементами - отделкой, цветом, террасами и крыльцами. Здесь этого не получилось. Но в целом дом выглядит просто, но не плохо.

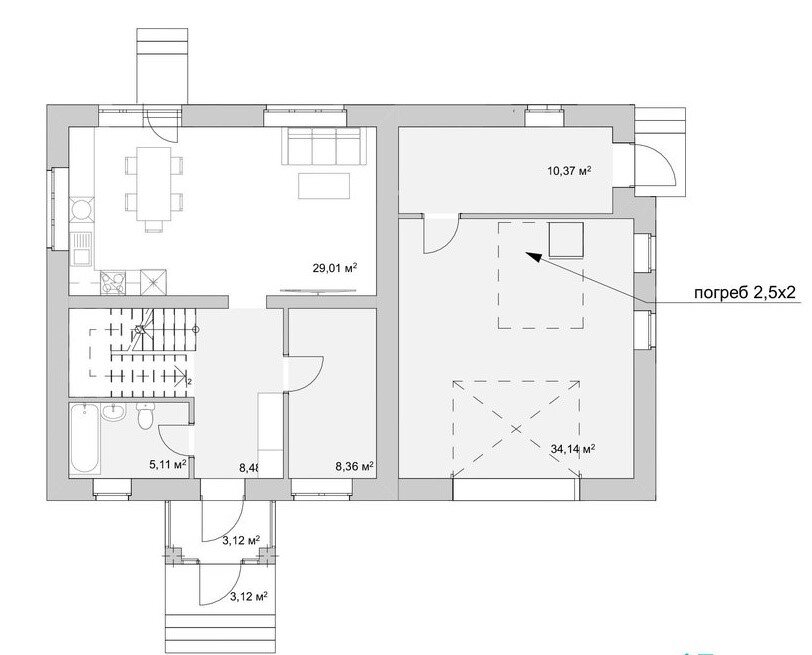
План первого этажа. Тут предусмотрены: веранда-крыльцо, 6,24 м2; прихожая-холл, 8,48 м2; санузел, 5,11 м2; хоз. помещение, 8,36 м2; гостиная-кухня, 29,01 м2; гараж, 34,14 м2; котельная, 10,37 м2. Источник изображения: канал Яндекс Дзен СК Веванта, г. Тюмень.
План первого этажа. Тут предусмотрены: веранда-крыльцо, 6,24 м2; прихожая-холл, 8,48 м2; санузел, 5,11 м2; хоз. помещение, 8,36 м2; гостиная-кухня, 29,01 м2; гараж, 34,14 м2; котельная, 10,37 м2. Источник изображения: канал Яндекс Дзен СК Веванта, г. Тюмень.

Пройдя через веранду-крыльцо в дом, попадаем в холл-прихожую площадью 8,48 м2. Прихожая-холл большая, но, скорее всего, будет холодной, так как тамбура в доме не предусмотрено и тепло будет стремиться выйти каждый раз при открывании двери, а с другой стороны установлена лестница, через которую остатки тепла будут уходить на второй этаж. Также из-за отсутствия тамбура в прихожей будет постоянная грязь. Остекленная веранда не поможет в сохранении ни тепла ни чистоты. Для сохранения тепла и чистоты в прихожей, да и в доме в целом, необходим тамбур (о варианте его устройства напишу ниже).

Из холл-прихожей можно пройти в санузел площадью 5,11 м2. Площадь санузла приличная, вместится все необходимое. Но пройти в него придется по грязному полу, запачканному обувью. Также из холла можно попасть в хозяйственное помещение площадью 8,36 м2. Какой функционал помещения имели ввиду авторы под словом хозяйственное точно не известно, но возможно они оставили это на усмотрение владельцев дома. Тут можно организовать постирочную, или кабинет-мастерскую, ну или гардероб. Хотя для кабинета-мастерской помещение узковато.

Гостиная-кухня имеет площадь 29,01 м2. Попасть в неё можно из холла, пройдя через узкий проем. Вход в гостиную можно бы сделать и пошире, но хорошо хоть дверь "не поставили". Площадь кухни-гостиной будет достаточной для большинства случаев её использования. Из кухни предусмотрен выход на задний двор или террасу.

Гараж в доме, площадью 34,14 м2, рассчитан на два автомобиля, но если в семье один автомобиль, то можно сэкономить на строительстве, уменьшив гараж. Выхода из гаража сразу в дом не предусмотрено, что странно, ведь при таком раскладе его и вовсе можно было построить отдельно - все равно придется идти в него по улице. Как правило пристроенные гаражи делают как раз для того, чтобы зимой не выходить на улицу, а из тепла сесть сразу в теплый автомобиль. Тут неплохо было бы организовать вход в дом (как? И об этом тоже ниже).

Из гаража можно попасть в котельную площадью 10,37 м2 и отдельным выходом на улицу. Вообще при строительстве дома с гаражом такое расположение котельной наиболее логично и правильно, особенно для котельной с угольным котлом, ведь в дом не будет попадать сажа, пыль и дым. А удобства пользования добавил бы вход в дом через гараж. Котельная имеет достаточную площадь для установки любого типа котла.

И теперь поговорим об изменениях в проекте, которые бы улучшили удобство этого дома:

1. Холл можно поделить пополам, в уровне с лестницей, таким образом организовав тамбур. 2. На месте санузла можно сделать один из следующих вариантов: а) гардеробную со входом из получившегося тамбура, б) хоз. помещение со входом под лестницей или из тамбура, в) можно оставить санузел, но сделать вход под лестницей, чтобы лишний раз не ходить через тамбур или прихожую. 3. Хоз. помещение разделить пополам и в верхней части сделать санузел или хоз. помещение (в зависимости от выбора во втором пункте), а вторую часть объединил бы с получившимся тамбуром и сделал там шкаф-гардеробы под верхнюю одежду и организовал бы в нем вход из гаража - таким образом получился бы удобный вход сразу в дом, а запахи из гаража не проходили бы дальше тамбура.

Первый этаж организован не очень удачно - отсутствует тамбур, вход в санузел выполнен через относительно грязную прихожую, нет входа в дом непосредственно из гаража.

План второго этажа. Тут предусмотрены: комната отдыха, 17,99 м2; санузел, 5,11 м2; две спальни по 14,26 м2. Источник изображения: канал Яндекс Дзен СК Веванта, г. Тюмень.
План второго этажа. Тут предусмотрены: комната отдыха, 17,99 м2; санузел, 5,11 м2; две спальни по 14,26 м2. Источник изображения: канал Яндекс Дзен СК Веванта, г. Тюмень.

Поднявшись на второй этаж попадаем в комнату отдыха площадью 17,99 м2. От кого отдыхать в такой комнате не ясно, ведь она открыта и имеет сквозной проход. Это помещение лучше разделить и организовать холл, а во второй части небольшую комнату или кабинет, площадью около 12 м2 - это был бы идеальный вариант планировки 2-го этажа.

Санузел здесь аналогичен санузлу первого этажа - тут ничего не скажешь, площадь достаточная.

Спальни имеют одинаковые площади по 14,26 м2. Нормальные площади для спален. Кровать, шкаф войдут, и даже место под рабочий стол останется.

Второй этаж организован неплохо. Есть не понятный момент с комнатой отдыха, но он решаем.

В проекте дома есть свои недостатки. Проект нуждается в доработке. Нужно пересмотреть полностью концепцию нижней половины дома (прихожая, хоз. помещение, санузел), доработать второй этаж, изменить дизайн экстерьера. В целом проектировщики хорошо поработали, но не на полную.

Подпишитесь на канал, чтобы первыми узнать о новых обзорах. Если статья понравилась - нажмите "палец вверх". Есть свои мнения по поводу этого проекта - пишите. И не забывайте делиться ссылкой на канал в соцсетях с друзьями.