Добавить в корзинуПозвонить
Найти в Дзене

Добротный дом. 271 м2. Проект + фото строительства.

Здравствуйте. Представляем проект большого и добротного дома общей площадью 271м в традиционном стиле. Габариты здания 14*14 м. Отделка фасадов комбинированная. На первом этаже находятся крыльцо, прихожая с гардеробом, холл с с\у, лестничный холл с отдельным кабинетом, кухня -столовая, гостиная с выходом на застекленную веранду. На втором этаже находятся холл, ведущий в три больших спальни, две из которых со своими гардеробными, также на этаже есть с\у и отдельная кладовая. Далее представляем фото со строительства. Посетите наш сайт architecturaldesign.tilda.ws

Здравствуйте. Представляем проект большого и добротного дома общей площадью 271м в традиционном стиле. Габариты здания 14*14 м. Отделка фасадов комбинированная.

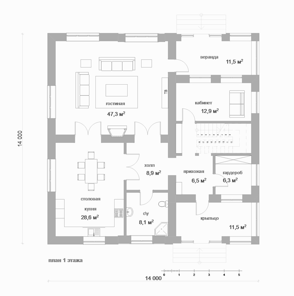
План 1 этажа
План 1 этажа

На первом этаже находятся крыльцо, прихожая с гардеробом, холл с с\у, лестничный холл с отдельным кабинетом, кухня -столовая, гостиная с выходом на застекленную веранду.

план 2 этажа
план 2 этажа

На втором этаже находятся холл, ведущий в три больших спальни, две из которых со своими гардеробными, также на этаже есть с\у и отдельная кладовая.

Далее представляем фото со строительства.

фото со строительства дома
фото со строительства дома

Посетите наш сайт

architecturaldesign.tilda.ws