Найти в Дзене
4living

Однушка в панельной многоэтажке

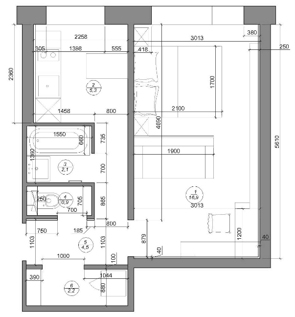
Когда площади мало, а вещей много, необходимы нетривиальные решения. Дизайнер выбрал скульптурную мебель индивидуального кроя, которая служит функциональным украшением квартиры. И умело использовал визуальные иллюзии стекла для зонирования пространства.  Сведения о квартире: однокомнатная квартира площадью 32 кв. м в панельной многоэтажке Нижнего Новгорода. Владельцы квартиры: семейная пара. Пожелания клиентов: интересный минималистичный интерьер, обязательно наличие рабочего места для хозяина квартиры.  План однокомнатной квартиры в панельном доме после перепланировки. Хозяин этой квартиры — дизайнер и арт-директор рекламного агентства. Стиль оформления своей квартиры подсказал сам заказчик — сдержанный минимализм с натуральными материалами в отделке, по сути это признаки современного скандинавского стиля. Дизайнер предложил использовать натуральные природные цвета — белый в сочетании с древесными тонами. Очень четко были выражены клиентом и требования к планировке — зонирование жи

Когда площади мало, а вещей много, необходимы нетривиальные решения. Дизайнер выбрал скульптурную мебель индивидуального кроя, которая служит функциональным украшением квартиры. И умело использовал визуальные иллюзии стекла для зонирования пространства. 

Сведения о квартире: однокомнатная квартира площадью 32 кв. м в панельной многоэтажке Нижнего Новгорода.

Владельцы квартиры: семейная пара.

Пожелания клиентов: интересный минималистичный интерьер, обязательно наличие рабочего места для хозяина квартиры. 

-2

План однокомнатной квартиры в панельном доме после перепланировки.

Хозяин этой квартиры — дизайнер и арт-директор рекламного агентства. Стиль оформления своей квартиры подсказал сам заказчик — сдержанный минимализм с натуральными материалами в отделке, по сути это признаки современного скандинавского стиля. Дизайнер предложил использовать натуральные природные цвета — белый в сочетании с древесными тонами. Очень четко были выражены клиентом и требования к планировке — зонирование жилой комнаты на спальню и гостиную зоны и обустройство полноценного рабочего места. После выполненной перепланировки определились с нужными размерами кровати и дивана, стену рядом с рабочим местом обшили крупной доской и затонировали. Все использованные отделочные материалы — из бюджетного класса. Акцент сделан на простые, но нестандартные решения по отделке.

Прихожая. Дверь в туалет установлена со стороны входа и тоже обшита доской. Стиральная машина спрятана в шкафу прихожей. За счет насоса стиральная машина может сливать воду в ближайший стояк в туалете, труба находится в стяжке. 

-3

Зона гостиной. Комната разбита на две полноценные зоны — гостиную с рабочим местом и спальную. Полотно рабочего стола вытянулось вдоль всей стены и соединяет две разнофункциональные зоны. 

-4

Зона спальни. Между кроватью и диваном установлена стеклянная перегородка, в качестве дополнительного зонирующего элемента использована штора.

-5

Кухня. Лаконичную отделку кухни разнообразит нестандартный декор в виде картины с авангардным рисунком и надписи на стене, нанесенные по трафарету.

-6

Ванная. Для оформления ванной комнаты дизайнер предложил два варианта отделки — разница только в выборе цвета керамогранита, полы в обоих случаях выложены китайской мозаикой. 

-7