Найти в Дзене
Проектная мастерская №16

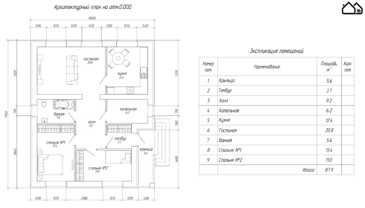
Проект одноэтажного трехкомнатного жилого дома площадью 88кв.м с наружными размерами 12м на 10м

Эскизный проект одноэтажного одноквартирного трехкомнатного жилого дома площадью 88кв.м с наружными размерами 12м на 10м. Планировка дома подобрана для проживания семьи из 3-4 человек. Дом запроектирован с несущим слоем стен из газоблоков (пеноблоков, газосиликатных блоков) плотностью 400кг/куб.м. толщиной 400мм. Данная система удовлетворяет требованиям по теплотехнике, поэтому такой дом будем теплым и энергоэффективным круглый год. Рабочий проект по этому и любому другому эскизу вы можете заказать в проектной мастерской №16. Стоимость проекта от 10т.р. за комплект АС. Бесплатную консультацию можете получить в интерактивном чате на нашем сайте http://pm16.ru/

Эскизный проект одноэтажного одноквартирного трехкомнатного жилого дома площадью 88кв.м с наружными размерами 12м на 10м. Планировка дома подобрана для проживания семьи из 3-4 человек. Дом запроектирован с несущим слоем стен из газоблоков (пеноблоков, газосиликатных блоков) плотностью 400кг/куб.м. толщиной 400мм. Данная система удовлетворяет требованиям по теплотехнике, поэтому такой дом будем теплым и энергоэффективным круглый год.

перспектива
перспектива
план дома
план дома

Рабочий проект по этому и любому другому эскизу вы можете заказать в проектной мастерской №16. Стоимость проекта от 10т.р. за комплект АС. Бесплатную консультацию можете получить в интерактивном чате на нашем сайте http://pm16.ru/

-3
-4