Добавить в корзинуПозвонить
Найти в Дзене
Interior Design Gudes

Дизайн-проект дома 200 кв.м в неоклассическом стиле часть 2

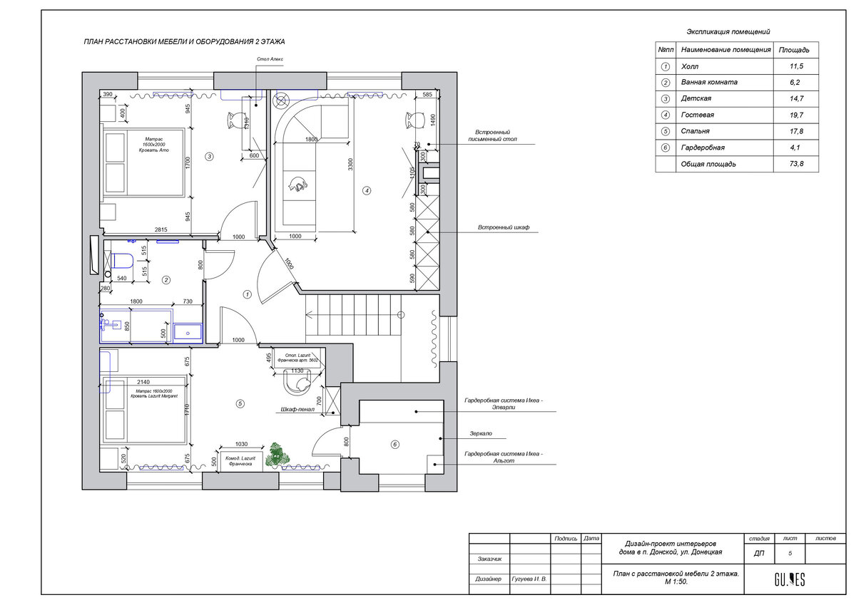
Продолжения обзора моего дизайн-проекта дома в неоклассическом стиле в Ростовской области поселок Донской. 2 этаж
Перепланировка Спальня Гардероб Детская Гостевая Ванная комната Понравился проект? подписывайся, ставь лайк и тебя ждет много новой и интересной информации) Что бы вам хотелось видеть в этом проекте? Оставляйте комментарии
Оглавление

Продолжения обзора моего дизайн-проекта дома в неоклассическом стиле в Ростовской области поселок Донской.

2 этаж
Перепланировка

Спальня

-3
-4

Гардероб

Детская

Гостевая

Ванная комната

Понравился проект? подписывайся, ставь лайк и тебя ждет много новой и интересной информации)

Что бы вам хотелось видеть в этом проекте? Оставляйте комментарии