Добавить в корзинуПозвонить
Найти в Дзене

Технический дизайн-проект 2х комнатной квартиры

Доброго времени, мои дорогие читатели! Спасибо всем кто подписан на мой канал и следит за новостями. Дизайн проект всегда начинается с планировочных решений, чтобы было понимание как можно максимально удобно расположить мебель в квартире. Обычно делается 2-4 решения, в этом случае получилось два варианта расстановки мебели, потому что клиент уже знал чего именно ему хочется, я немного подкорректировала и предложила свой вариант. Что в итоге мы имеем.. Большая совмещенная кухня гостиная с рабочей зоной и шкафом для хранения одежды. На кухне барная стойка с островом для готовки. Просторная прихожая с шкафами и открытой зоной с зеркалом и пуфиком. В ванной комнате большая тумба для хранения с зеркалом и умывальником и большая ванная. Вход в ванную перенесли, чтобы можно было в неё входить из спальни. Второй санузел остается гостевым, в нем душевая кабина и унитаз. Под раковиной расположили стиральную машинку. В спальной комнате большая кровать с прикроватными тумбами, напротив вместител

Доброго времени, мои дорогие читатели!

Спасибо всем кто подписан на мой канал и следит за новостями.

Дизайн проект всегда начинается с планировочных решений, чтобы было понимание как можно максимально удобно расположить мебель в квартире. Обычно делается 2-4 решения, в этом случае получилось два варианта расстановки мебели, потому что клиент уже знал чего именно ему хочется, я немного подкорректировала и предложила свой вариант.

Что в итоге мы имеем..

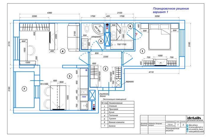
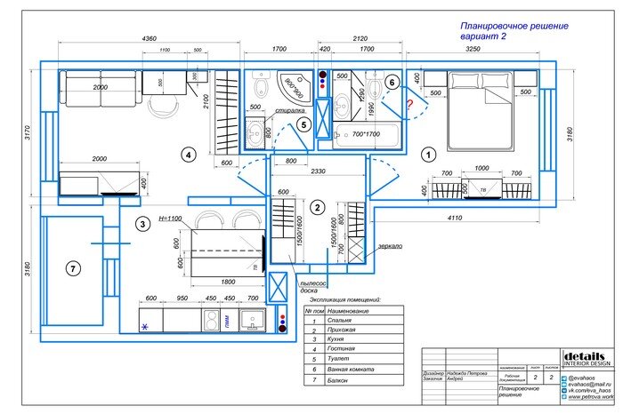
Большая совмещенная кухня гостиная с рабочей зоной и шкафом для хранения одежды. На кухне барная стойка с островом для готовки. Просторная прихожая с шкафами и открытой зоной с зеркалом и пуфиком. В ванной комнате большая тумба для хранения с зеркалом и умывальником и большая ванная. Вход в ванную перенесли, чтобы можно было в неё входить из спальни. Второй санузел остается гостевым, в нем душевая кабина и унитаз. Под раковиной расположили стиральную машинку. В спальной комнате большая кровать с прикроватными тумбами, напротив вместительный комод с ТВ и пеналы для хранения одежды.

Квартира планируется в современном стиле, глубокие приглушенные оттенки и уют. Мебель будет из Ikea и на заказ. В дальнейшем планируем делать визуализацию квартиры, думаю что будет еще один пост по  этой квартире.

Планировочные решения:

-2

Проект по итоговому варианту расстановки мебели:

-3
-4
-5
-6
-7
-8
-9
-10
-11

Планируемая стилистика квартиры:

-12
-13
-14
-15