Найти в Дзене
4living

Однушка для дизайнера

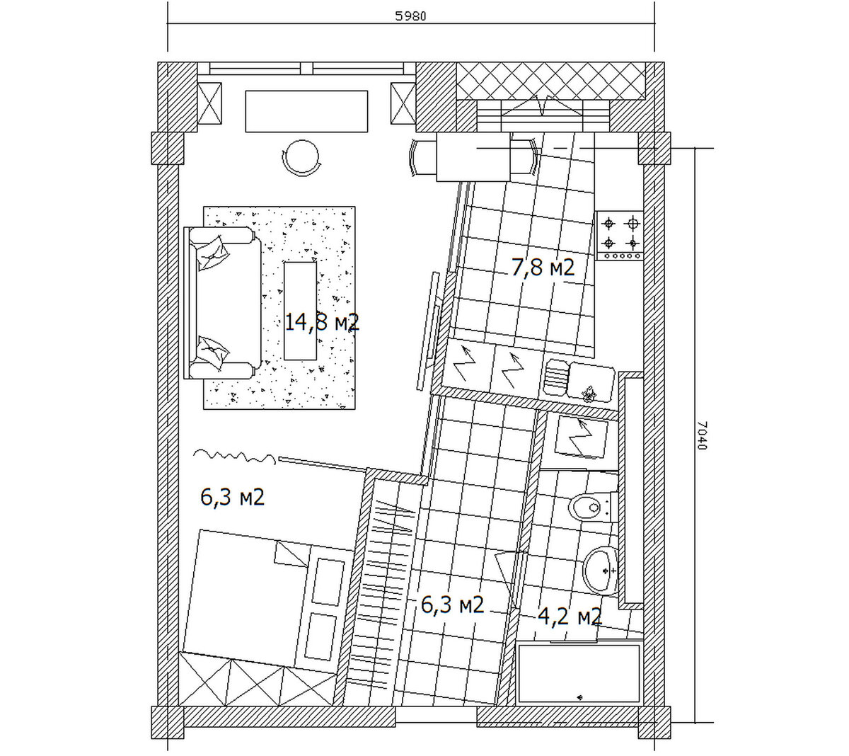
Принятые дизайнером решения — разрезать квартиру по диагонали и отказаться от дверей — были необычными и достаточно смелыми. И, как ни удивительно, пошли квартире во благо!  Сведения о квартире: однокомнатная квартира общей площадью 40 кв. м в ЖК «Пятая жемчужина» г. Одессы. Владелица квартиры: женщина-дизайнер. Пожелания клиентки: наличие отдельного рабочего уголка и объединение кухни и гостиной, бюджетный ремонт без излишеств.  План однокомнатной квартиры после перепланировки. Эта квартира создавалась дизайнером для себя. Воплощать свои пожелания Наталье Цаплиной было просто — ведь никаких споров и недопониманий с клиентами не предвиделось. Автору проекта хотелось максимально реализовать свои идеи и выстроить уютный и просторный интерьер, отойдя от стереотипной планировки. Во-первых, организовать просторную зону кухни, во-вторых, изолированное место для сна, но при этом по возможности избавиться от большого количества дверей. В итоге планировочное решение вылилось в диагональную

Принятые дизайнером решения — разрезать квартиру по диагонали и отказаться от дверей — были необычными и достаточно смелыми. И, как ни удивительно, пошли квартире во благо! 

Сведения о квартире: однокомнатная квартира общей площадью 40 кв. м в ЖК «Пятая жемчужина» г. Одессы.

Владелица квартиры: женщина-дизайнер.

Пожелания клиентки: наличие отдельного рабочего уголка и объединение кухни и гостиной, бюджетный ремонт без излишеств. 

-2

План однокомнатной квартиры после перепланировки.

Эта квартира создавалась дизайнером для себя. Воплощать свои пожелания Наталье Цаплиной было просто — ведь никаких споров и недопониманий с клиентами не предвиделось. Автору проекта хотелось максимально реализовать свои идеи и выстроить уютный и просторный интерьер, отойдя от стереотипной планировки. Во-первых, организовать просторную зону кухни, во-вторых, изолированное место для сна, но при этом по возможности избавиться от большого количества дверей.

В итоге планировочное решение вылилось в диагональную разбивку всей жилой площади: с одной стороны расположились служебные помещения, с другой — жилые.

Спальное место дизайнер мягко отзонировала — часть проема закрыла небольшая перегородка, часть — полупрозрачная штора.

Дизайн однокомнатной квартиры с перегородкой выполнен в современном стиле, жилое пространство окрашено в теплые тона.

Прихожая. Входная зона максимально освобождена от предметов мебели. С одной стороны находится вход в ванную комнату, с другой — ряд гардеробных шкафов, способных вместить все необходимые вещи. 

-3

Гостиная. На территории общественной зоны расположен мягкий уголок и рабочее место. Одна из стен стала акцентной, ее покрыли обоями в вертикальную полоску, что визуально приподняло потолок. 

-4

Кухня. Это помещение сверкает чистотой и свежестью — в молочную белизну окрашены не только пол, стены и потолок, но и кухонные фасады.

-5

Спальня. Хотя в спальной зоне предусмотрено необходимое количество систем хранения, сама спальня смотрится достаточно просторно.

-6