Найти в Дзене
Алексей Жуков

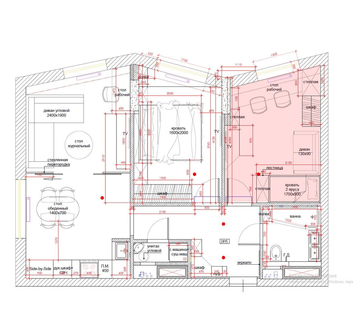
Проект 2х ком квартиры 60 кв.м часть 2

Продолжаю рассказывать про наш проект Детская 12.5 кв.м для двоих детей.  Комната небольшая, а детей двое. Поэтому имеют место два решения, которые обычно вызывают вопросы у многих заказчиков. 1 решение:  Двухъярусная кровать. Согласен, что две отдельные кровати - лучше, но каждая занимает, примерно, по 2 кв.м, поэтому от этой идеи отказались.
2 решение: Стол - вдоль окна, от стены до стены.  Доступ к окну затруднен, свет падает не так, как надо. Но с другой стороны, по центру комнаты достаточно много места. Поэтому выбрали такой вариант для стола! 
Кстати, кроватка у нас хитрая - сбоку сделан шкаф, нижнее место укорочено (ребенку 3г), а верхнее место нормальное (ребенку 8 лет).
То есть, даже тут мы пытались использовать кусочек площади. 
Шкафы, стеллажи - все на заказ, и все скомбинировано со столом. Так мебель смотрится более целостно. 
Детская довольно минималистичная и светлая. Все это позволило даже на визуализации сделать комнату просторнее.
За счет ярких цветов комната в

Продолжаю рассказывать про наш проект

Детская 12.5 кв.м для двоих детей.  Комната небольшая, а детей двое. Поэтому имеют место два решения, которые обычно вызывают вопросы у многих заказчиков.

1 решение:  Двухъярусная кровать. Согласен, что две отдельные кровати - лучше, но каждая занимает, примерно, по 2 кв.м, поэтому от этой идеи отказались.
2 решение: Стол - вдоль окна, от стены до стены.  Доступ к окну затруднен, свет падает не так, как надо. Но с другой стороны, по центру комнаты достаточно много места. Поэтому выбрали такой вариант для стола! 

Кстати, кроватка у нас хитрая - сбоку сделан шкаф, нижнее место укорочено (ребенку 3г), а верхнее место нормальное (ребенку 8 лет).
То есть, даже тут мы пытались использовать кусочек площади. 
Шкафы, стеллажи - все на заказ, и все скомбинировано со столом. Так мебель смотрится более целостно. 

Детская довольно минималистичная и светлая. Все это позволило даже на визуализации сделать комнату просторнее.

За счет ярких цветов комната выглядит свежей и не перегруженной. 
Голубой и светло-желтый не плохо дружат на фоне светлый стен :)  Разве не так? :) 

По вопросу наличия ТВ, не ко мне. Это пожелание заказчика. 

=материалы=
На полу паркетная доска
Производство: Tarkett Коллекция: TIMBER PLANK
Цвет: Дуб Буран

Обои треугольнички 
НИДЕРЛАНДЫ Бренд: Esta Home
Коллекция: Little Bandits
Артикул: 145-138943

Обои горы 
НИДЕРЛАНДЫ Бренд: Esta Home
Коллекция: Little Bandits
Артикул: 145-158839

бра на стене Производитель: IKEA
Модель: ФЮББЛА Артикул: 103.816.07

Диванчик желтый  Cardiff  купить можно на imodern_ru  

Стул Sephi от  cosmorelax        

Кроватка, стол, стеллажи - на заказ у наших ребят с которыми работаем уже не первый год.

Для особо любопытных напишу еще цвета фасадов по мебели. 
Желтный - NCS S 0540-Y (мат)   
Бежевый  - NCS S 1505-Y (мат)      
Голубой  - S 2020-B60G (мат)       

Жду ваших вопросов :)

-2
-3
-4
-5
-6

Ставим лайки! Подписываемся на канал!