Найти в Дзене
Алексей Жуков

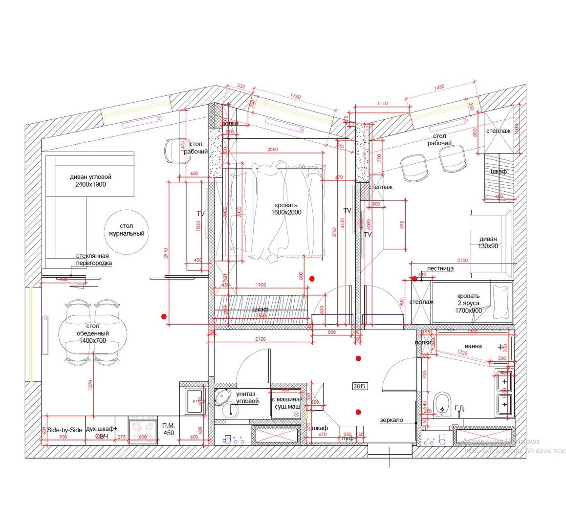
Проект 2х ком квартиры 60 кв.м Часть 1

Очень удобная двушка нам досталась. Всего 60 кв.м, но очень удобная планировка.  Можно сказать, трешка! Я считаю, вот такими должны быть планировки!
Во-первых, удобная кухня-гостиная. Она вытянутая и поэтому удобно зонируется.
Во-вторых, 2 санузла. Нормального размера ванная и туалет.
При этом, просторная прихожая. Подпортило настроение только отсутствие лоджий. С другой стороны, за площадь лоджии

Очень удобная двушка нам досталась. Всего 60 кв.м, но очень удобная планировка.  Можно сказать, трешка! Я считаю, вот такими должны быть планировки! 
Во-первых, удобная кухня-гостиная. Она вытянутая и поэтому удобно зонируется. 
Во-вторых, 2 санузла. Нормального размера ванная и туалет. 

При этом, просторная прихожая. Подпортило настроение только отсутствие лоджий. С другой стороны, за площадь лоджии не нужно дополнительно платить. 

Сегодня у нас кухня-гостиная - ширина 3.4м, а длина 6.5м

Кухня и гостиная отлично прижились. Вроде бы, и места не так много, а все встало на свои места.  Заказчик отказался увеличивать кухню, и честно говоря, рабочей поверхности на кухне маловато, зато холодильник большой :)

Полы 
Керамогранит на кухне: Atlas Concorde Russia Коллекция: Drift
 Плитка: Light Grey Ret
Паркетная доска Tarkett Коллекция: TIMBER PLANK цвет: Дуб Буран

Мебель:
Стул Cindy от Deephouse  14500 руб
Стол LUNA   от Avanti  38860 руб
Жур столик  Rino от Romatti  12300 руб 
Диван Morti EKL  от skdesgin  88100 руб

Кухня 
1. верхние шкафчики 
Пластик CPL EGGER Дуб Арлингтон поперечный Н1133 ST9
2. нижние шкафчики белые NCS S 0300-N (глянец) 

Столешница - массив дуба.

Свет
Двойной точеч. светильник: Lightstar Серия: Singo Артикул: 011612  

-2
-3
-4
-5
-6
-7

Подписываемся на канал, ставим лайки))

Дальше интереснее!!!