Найти в Дзене
Алексей Жуков

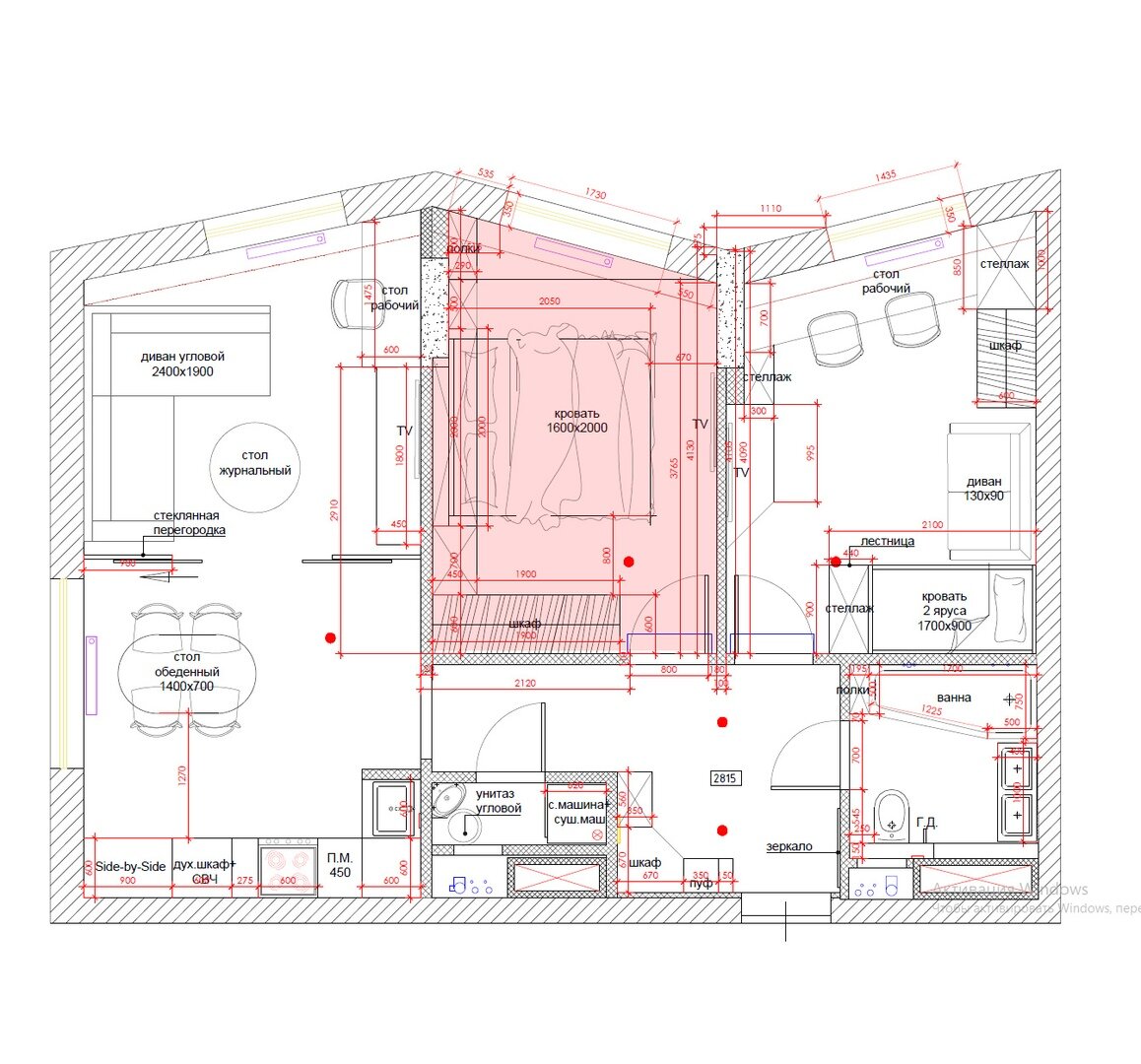
Проект 2х ком квартиры 60 кв.м Часть 3

А сегодня на очереди у нас спальня! В спальне мы интересно обыграли острый угол. Если присмотреться, то видно, что сделана широкая полка-лежанка, и спальня, как бы, выравнивается за счет этого в прямоугольную форму. На полку можно положить подушки и читать книгу у окна .
Достаточно дотошно мы продумали мебель и изголовье кровати. Вместо традиционных тумбочек по бокам от кровати, мы сделали стеллажи глубиной 30см. Со стороны окна мы интегрировали маленький туалетный столик. Роль тумбочек выполняют открытые ниши в стеллажах.
Так как сами шкафы неглубокие, то ощущение нависания над изголовьем не возникает.  
За изголовьем кровати - обычный мебельный шпон. Он же используется для боковых стенок стеллажей. 
Верхние шкафы, возможно, вообще не будем делать, а сделаем заглушки.  На полу паркетная доска
Производство: Tarkett Коллекция: TIMBER PLANK
Цвет: Дуб Буран
Обои ромбами за ТВ 
АНГЛИЯ Бренд: Prestigious
Коллекция: Urban
Артикул: 1974-022
Был вопрос: мы красим стены, или сначала обои

А сегодня на очереди у нас спальня!

В спальне мы интересно обыграли острый угол. Если присмотреться, то видно, что сделана широкая полка-лежанка, и спальня, как бы, выравнивается за счет этого в прямоугольную форму. На полку можно положить подушки и читать книгу у окна .

Достаточно дотошно мы продумали мебель и изголовье кровати. Вместо традиционных тумбочек по бокам от кровати, мы сделали стеллажи глубиной 30см. Со стороны окна мы интегрировали маленький туалетный столик. Роль тумбочек выполняют открытые ниши в стеллажах.
Так как сами шкафы неглубокие, то ощущение нависания над изголовьем не возникает.  
За изголовьем кровати - обычный мебельный шпон. Он же используется для боковых стенок стеллажей. 
Верхние шкафы, возможно, вообще не будем делать, а сделаем заглушки. 

На полу паркетная доска
Производство: Tarkett Коллекция: TIMBER PLANK
Цвет: Дуб Буран

Обои ромбами за ТВ 
АНГЛИЯ Бренд: Prestigious
Коллекция: Urban
Артикул: 1974-022

Был вопрос: мы красим стены, или сначала обои клеим, а потом красим их? Так вот... Обои мы клеим под покраску, а потом красим. 
В этой спальне обои под покраску такие: 

Производитель: Freya
Страна: Германия
Серия: Carla Артикул: FR5173-WL-01-S

Кровать Бедфорд
Материалы: бук, текстиль
Производитель:
Dantone Home 

Стеллажи, шкаф: на заказ - в размер и такого цвета, как нам нужно!

Обои под покраску: Бренд Marburg
Коллекция: Patent Decor
Артикул: 9447

В общем, хорошие обои.  Они практически ровные, но вблизи - в мелкую крошку. Если маляр с руками, то после покраски вы швы с лупой не найдете.

-2
-3
-4
-5

В качестве бонуса еще несколько вариантов цветового решения

-6
-7

Ставим лайки! подписываемся на канал