Найти в Дзене
Алексей Жуков

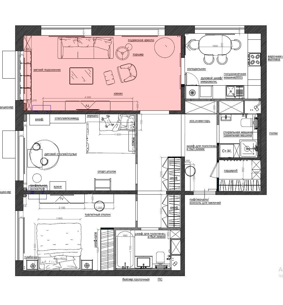
Трешка 92 кв.м Часть 2

Сегодня покажу вам гостинную из той замечательной трешки. Гостиная 24 кв.м в современном стиле В предыдущем посте рассказывал про кухню. Между кухней и гостиной у нас раздвижные двери. Дверки сделаны на заказ. 
Камин в гостиной - био. Живое пламя и отсутствие дыма - то, что надо! В этом проекте применили старый добрый прием: разноуровневый
потолок. Но обыграли мы его деликатно, без подсветки и т.д. 
Кстати, как вам идея с мягким подоконником и кресло-пузырь? =Материалы=
Мебель:
РАСКЛАДНОЙ ДИВАН ПРОИЗВОДИТЕЛЬ BLEST КОЛЛЕКЦИЯ Function
модель Санти
цвет Багама 31
подвесное кресло Hanging Bubble Chair
Кресло "Peter" купить можно на thefurnish
Журнальный стол "Гексагон металл" купить можно на thefurnish
Кофейный стол E1027  от cosmorelax
Настенный биокамин Kratki Delta 3
КОВЕР ETNO RE508-R24 240*340 см код 362174
Свет:
ЛЮСТРА ПОТОЛОЧНАЯ ODEON LIGHT 3972/8C MIOLLA
Торшер Chromium купить можно loft-concept_ru
Пол:
Инженерная доска GreenLine Effect Дуб Сицилия
Карниз на потолке: 
КАРНИ

Сегодня покажу вам гостинную из той замечательной трешки.

Гостиная 24 кв.м в современном стиле

В предыдущем посте рассказывал про кухню. Между кухней и гостиной у нас раздвижные двери. Дверки сделаны на заказ. 

Камин в гостиной - био. Живое пламя и отсутствие дыма - то, что надо!

В этом проекте применили старый добрый прием: разноуровневый
потолок. Но обыграли мы его деликатно, без подсветки и т.д. 

Кстати, как вам идея с мягким подоконником и кресло-пузырь?

=Материалы=
Мебель:
РАСКЛАДНОЙ ДИВАН ПРОИЗВОДИТЕЛЬ BLEST КОЛЛЕКЦИЯ Function
модель Санти
цвет Багама 31
подвесное кресло Hanging Bubble Chair
Кресло "Peter" купить можно на thefurnish
Журнальный стол "Гексагон металл" купить можно на thefurnish
Кофейный стол E1027  от cosmorelax
Настенный биокамин Kratki Delta 3
КОВЕР ETNO RE508-R24 240*340 см код 362174

Свет:
ЛЮСТРА ПОТОЛОЧНАЯ ODEON LIGHT 3972/8C MIOLLA
Торшер Chromium купить можно loft-concept_ru

Пол:
Инженерная доска GreenLine Effect Дуб Сицилия

Карниз на потолке: 
КАРНИЗ ORAC DECOR C391 STEPS

Стены:
Краска Little Greene LG149, Slaked Lime Mid

-2
-3
-4
-5
-6
-7

-8

Подписываемся на канал, ставим лайки, делимся в соц.сетях!

Не забывайте в комментах писать какие стили предпочитаете!