Добавить в корзинуПозвонить
Найти в Дзене

Проект дома 11,3х10,6 м. Общая S=118,68 кв.м. + терраса 21,6 кв.м.

Коттедж с мансардным этажом по проекту «Дэвидсон» создан для уютного проживания небольшой семьи. Привлекательные фасады с гармонично подобранной цветовой гаммой и высокими окнами будут богато смотреться на фоне коттеджного поселка. Технические характеристики проекта «Дэвидсон»: На первом этаже располагаются: Подробное описание проекта на сайте по ссылке ---> "Проект Дэвидсон" На втором этаже располагаются: ПОРТФОЛИО КОМПАНИИ со строящимися и уже возведенными объектами - https://clck.ru/FqX7s НАШ САЙТ! СВЕЖИЕ НОВОСТИ СТРОИТЕЛЬСТВА И КРУТЫЕ ПРОЕКТЫ -https://clck.ru/FYfEc НАША ГРУППА ВК - https://clck.ru/FYfH4 ВСТУПАЙ, НЕ ПОЖАЛЕЕШЬ! ОДНОКЛАССНИКИ - https://clck.ru/GFpq9 ФЭЙСБУК - https://clck.ru/GFpsx

Коттедж с мансардным этажом по проекту «Дэвидсон» создан для уютного проживания небольшой семьи. Привлекательные фасады с гармонично подобранной цветовой гаммой и высокими окнами будут богато смотреться на фоне коттеджного поселка.

Технические характеристики проекта «Дэвидсон»:

  • Общая площадь дома 118,68 кв.м. + терраса 21,6 кв.м.
  • Этажность — 2
  • Количество жилых комнат — 3
  • Количество санузлов — 2
  • Материал несущих стен — керамзитоблок
  • Тип кровельного покрытия – мягкая черепица
  • Облицовка стен — декоративная штукатурка.

На первом этаже располагаются:

  • гостиная S=20,7 кв.м.
  • кухня-столовая S=12,56 кв.м.
  • санузел S=4,27 кв.м.
  • котельная S=5,24 кв.м.
  • холл S=8,01 кв.м.
  • гараж S=21,03 кв.м.
  • терраса S=21,6 кв.м.
Подробное описание проекта на сайте по ссылке ---> "Проект Дэвидсон"

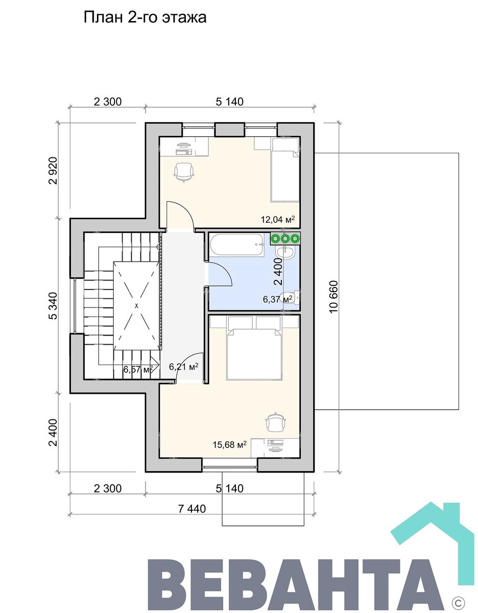
На втором этаже располагаются:

  • спальня S=12,04 кв.м.
  • спальня S=15,68 кв.м.
  • холл S=6,21 кв.м.
  • санузел S=6,37 кв.м.
Один из вариантов наружной отделки. Еще больше на сайте Vevanta.com
Один из вариантов наружной отделки. Еще больше на сайте Vevanta.com

ПОРТФОЛИО КОМПАНИИ со строящимися и уже возведенными объектами - https://clck.ru/FqX7s

НАШ САЙТ! СВЕЖИЕ НОВОСТИ СТРОИТЕЛЬСТВА И КРУТЫЕ ПРОЕКТЫ -https://clck.ru/FYfEc

НАША ГРУППА ВК - https://clck.ru/FYfH4 ВСТУПАЙ, НЕ ПОЖАЛЕЕШЬ!

ОДНОКЛАССНИКИ - https://clck.ru/GFpq9

ФЭЙСБУК - https://clck.ru/GFpsx