Добавить в корзинуПозвонить
Найти в Дзене
АО "ШМЗ"

Сушим полимерные отходы.

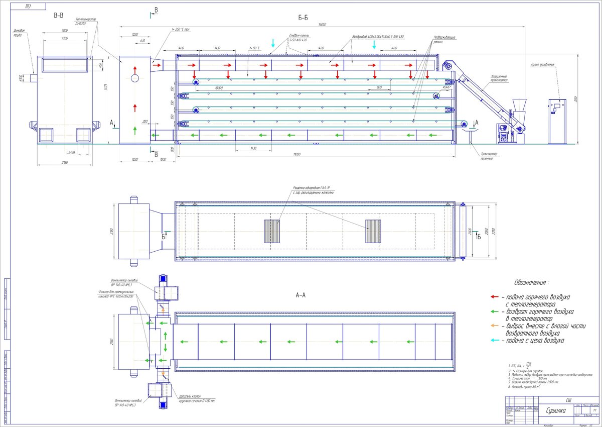
«Шебекинский машиностроительный завод» — крупнейшее Российское предприятие по производству хлебопекарного и кондитерского оборудования, широко известное как в России, так и за её пределами. В последнее время инженерный центр АО "ШМЗ" разработал сушильное оборудование для сушки отходов ТБО. Сушилки конвейерные ленточные предназначены для сушки измельченной фракции полимерных отходов ПП, ПЭ, ПЭНД, ПЭВД, ПЭТ пленки, . Они поставляются совместно с транспортером-раскладчиком скребкового типа, предназначенным для равномерной раскладки продукта по ширине конвейерной ленты и подачи его в сушилку. Состав изделия и комплект поставки: Сушильная установка состоит из основных узлов: - загрузочного наклонного транспортёра; - корпуса сушилки с барабанами, опорными каркасами, конвейерными лентами, воздуховодами; - установки теплогенератора; - установки вентиляции; - шкафа управления. Сушилка поставляется отдельными узлами и монтируется у заказчика. Устройство и принцип работы. Сушилка пред

«Шебекинский машиностроительный завод» — крупнейшее

фракции полимерных отходов ПП, ПЭ, ПЭНД, ПЭВД, ПЭТ пленки
фракции полимерных отходов ПП, ПЭ, ПЭНД, ПЭВД, ПЭТ пленки

Российское предприятие по производству хлебопекарного и кондитерского оборудования, широко известное как в России, так и за её пределами. В последнее время инженерный центр АО "ШМЗ" разработал сушильное оборудование для сушки отходов ТБО. Сушилки конвейерные ленточные предназначены для сушки измельченной фракции полимерных отходов ПП, ПЭ, ПЭНД, ПЭВД, ПЭТ пленки, . Они поставляются совместно с транспортером-раскладчиком скребкового типа, предназначенным для равномерной раскладки продукта по ширине конвейерной ленты и подачи его в сушилку.

Г4-СК0-80ПП
Г4-СК0-80ПП

Состав изделия и комплект поставки:

Сушильная установка состоит из основных узлов:

- загрузочного наклонного транспортёра;

- корпуса сушилки с барабанами, опорными каркасами, конвейерными лентами, воздуховодами;

- установки теплогенератора;

- установки вентиляции;

- шкафа управления.

Сушилка поставляется отдельными узлами и монтируется у заказчика.

Устройство и принцип работы.

Сушилка представляет собой камеру, закрытую металлическими щитами и дверями изготавливающимися из сэндвич - панелей толщиной 50мм. Внутри сушилки один над другим расположены 4 пары барабанов. На каждую пару барабанов натягивается бесконечная сетчатая проволочная лента из нержавеющей стали. Каждая пара барабанов, относительно другой, смещены по длине, что предотвращает попадание сырого продукта в сухой, при переходе его с одной ленты, на другую.

Для подачи продукта в сушилку служит наклонный ленточный транспортер с раскладчиком. Своей верхней частью он устанавливается на сушилку, нижняя часть устанавливается на фундамент двумя опорами. Ленточный транспортер состоит из следующих основных частей: каркаса, двух барабанов, транспортерной ленты, раскладчика, приводной колонки, верхней части и поддона. Лента транспортера изготовлена из нержавеющей сетки с прикрепленными к ней скребками, предназначенными для удержания продукта от сползания вниз. Раскладчик представляет собой скребковый транспортер со встроенной в него раскладочной доской и имеет загрузочный и выгрузочный бункера. Крепится раскладчик к нижней части каркаса ленточного транспортера. На выгрузочном бункере имеется подвижная заслонка, обеспечивающая регулировку высоты слоя продукта, раскладываемого на ленте транспортера.

Для удаления влажного воздуха из сушильной камеры применяется система вентиляции, которая состоит из двух вытяжных вентиляторов и воздуховодов.

Продукт по загрузочному транспортёру поступает на верхнюю конвейерную ленту, перемещается по ней, затем пересыпается на нижнюю конвейерную ленту. Выгрузка высушенного продукта происходит с четвёртой ленты. Привод каждой ленты осуществляется мотором-редуктором фирмы SITI.

Конструкция сетки обеспечивает устойчивое передвижение конвейера без боковых смещений. Тяговым элементом является цепь, движущаяся в специальных направляющих. Тип сетки спирально-стержневой, шаг спирали и стержней согласовывается дополнительно. Над сеткой с двух сторон устанавливаются боковые ограничители для исключения схода продукта.

Процесс сушки происходит следующим образом. Горячий воздух вырабатывается в газовом теплогенераторе D/G 250 нагревается до температуры 250 ºС и по воздуховодам подаётся в верхнюю часть сушильной камеры. Горячий воздух через целевые распределители поступает на продукт. В нижней части сушилки установлен сборный воздуховод, где происходит забор воздуха и подача его на рециркуляцию и выброс в атмосферу.

В сушильной камере устанавливаются датчики измерения температуры и влажности конечного продукта. В щите управления устанавливаются частотные преобразователи для регулировки скоростей конвейеров, а так же приборы контроля температуры и влажности.

Основные параметры

  • Рабочая площадь конвейерных лент, кв.м 80
  • Производительность по высушенному продукту, кг/час при снижении влажности в % - полимеры от 40 до 10 - 1000
  • Фракция (мм) 20
  • Температура сушки, градус С 60-90
  • Ширина конвейерной ленты, мм 2 000
  • Количество конвейерных лент, шт 4
  • Сетка нержавеющая (спирально-стержневая с тяговой цепью)
  • Скор. движения конвейеров, м/мин 0,12-0,5
  • Общий расход газа, кг/час 27
  • Установленная мощность электрооборудования, кВт 25
  • Производительность отсасывающих вентиляторов, м3/ч 16 000
  • Кол-во вентиляторов, шт. 2
  • Общий ресурс работы сушилки, ч 64 000
  • Габаритные размеры, мм
  • -длина 16 000
  • -ширина 5 300
  • -высота 3 555
  • Масса, кг 18 850