Найти в Дзене

Печи особняка Архипова

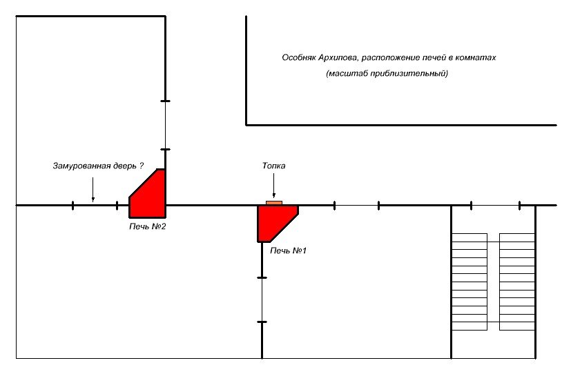
Второй этаж имеет один коридор, вдоль которого за высокими дверями расположены апартаменты. Если бы не высокие потолки и лепнина, то может сложиться впечатление – это коммунальная квартира или барак, ибо подобное расположение комнат  встречается в коммуналках и бараках. Для обогрева помещения использовалась дровяная печь – одна на две комнаты, при этом в некоторых комнатах находится по две печи. Стены печи отопления оформлены изразцами – предположительно местного производства с челябинской фабрики В.В. Лоренсова. Печь №1 как и все отопительные печи в доме не упираются в потолок, а сверху завершаются изразцами больше свойственных для каминов. Кроме изразцов с узорами - на стенке некоторых печей имеются изразцы с сюжетом. Одна и та же печь в разных комнатах оформлена разными изразцами, кроме того, во второй комнате акцент сделан на печь №2, а печь №1 установлена практически вровень со стеной. Печь №2 отличается от печи №1 не только сюжетными изразцами, но свой изразцами отделки. Несмот

Приблизительный план северо-западного угла второго этажа особняка Архипова (без соблюдения масштаба)
Приблизительный план северо-западного угла второго этажа особняка Архипова (без соблюдения масштаба)

Второй этаж имеет один коридор, вдоль которого за высокими дверями расположены апартаменты. Если бы не высокие потолки и лепнина, то может сложиться впечатление – это коммунальная квартира или барак, ибо подобное расположение комнат  встречается в коммуналках и бараках.

Для масштаба, высота человека в дверном проеме около 1,76м, справа - за открытой дверью, справа, виднеется печь отопления.
Для масштаба, высота человека в дверном проеме около 1,76м, справа - за открытой дверью, справа, виднеется печь отопления.

Для обогрева помещения использовалась дровяная печь – одна на две комнаты, при этом в некоторых комнатах находится по две печи. Стены печи отопления оформлены изразцами – предположительно местного производства с челябинской фабрики В.В. Лоренсова.

С этой стороны печь №1 размещена в углу и занимает симметрично весь угол.
С этой стороны печь №1 размещена в углу и занимает симметрично весь угол.

Печь №1 как и все отопительные печи в доме не упираются в потолок, а сверху завершаются изразцами больше свойственных для каминов. Кроме изразцов с узорами - на стенке некоторых печей имеются изразцы с сюжетом.

Печь №1 – навершие печи.
Печь №1 – навершие печи.
 Печь №1  вид со стороны смежной комнаты – шкаф загораживает сюжетный изразец (возможно за шкафом нет изразца с сюжетом).
 Печь №1  вид со стороны смежной комнаты – шкаф загораживает сюжетный изразец (возможно за шкафом нет изразца с сюжетом).

Одна и та же печь в разных комнатах оформлена разными изразцами, кроме того, во второй комнате акцент сделан на печь №2, а печь №1 установлена практически вровень со стеной.

Поддувальная и топочная дверца печи №1
Поддувальная и топочная дверца печи №1
Судя по клейму - поддувальная и топочная дверца печи №1 отлиты в г. Куса.
Судя по клейму - поддувальная и топочная дверца печи №1 отлиты в г. Куса.

Печь №2 отличается от печи №1 не только сюжетными изразцами, но свой изразцами отделки.

Печь №2 вид с середины комнаты, изразцы цветочной тематики.
Печь №2 вид с середины комнаты, изразцы цветочной тематики.
Печь №2 вид с угла комнаты, изразцы цветочной тематики, но рисунок другой
Печь №2 вид с угла комнаты, изразцы цветочной тематики, но рисунок другой

Несмотря на разницу изразцов отделки стен печи – сюжетный изразец на обоих сторонах печи одинаков.

Изразцы печи №2 одинаковы для обеих сторон печи.
Изразцы печи №2 одинаковы для обеих сторон печи.

Печь стороной обращенная в апартаменты, имеет все признаки камина, но при этом таковым не является.

Низ печки имеет небольшое расширение как у камина.
Низ печки имеет небольшое расширение как у камина.

Одна из печей в здании загорожена шкафами  и какой-то любопытный человек очистил изразец за шкафами – можно увидеть оригинальный цвет изразца. Кроме того, по этой печи понятно, та сторона, которая выходила на коридор – тоже была оформлена изразцами, но с 1913 года эта части печи не сохранилась до наших дней.

У этой печи сохранились изразцы даже со стороны топки.
У этой печи сохранились изразцы даже со стороны топки.
Оригинальный цвет изразца печей – коричневый.
Оригинальный цвет изразца печей – коричневый.

Важная особенность комнат – наши предки понимали толк в пожарной безопасности, практически в каждой комнате предусмотрен второй выход.

Если заглянуть в челябинский музей, то можно обнаружить, изразцы не только украшали стены печи, но и аккумулировали тепло – обжечься об печь было невозможно, при  этом тепло не уходило в стены.

Изразцовая плитка произведенная на челябинском  заводе В.В. Лоренсова в начале 20 века.
Изразцовая плитка произведенная на челябинском  заводе В.В. Лоренсова в начале 20 века.
Изразцовая плитка В.В. Лоренсова, если присмотреться, то можно заметить – внутри она пустотелая.
Изразцовая плитка В.В. Лоренсова, если присмотреться, то можно заметить – внутри она пустотелая.

В конце обзора хочется отметить, особняк Архипова является режимным объектом и посмотреть на печи без спец пропуска вряд ли удастся, а сфотографировать печи и подавно. По причине невозможности фотографирования в помещении – на фотографиях представлены только верхние части печей, во избежание фотографирования рабочих мест сотрудников и самих сотрудников.  

Источник