Добавить в корзинуПозвонить
Найти в Дзене
Dmitry Vorontsov

Как я строю свой дом. Проект. Часть 1.

Здравствуйте. Хочу поделиться историей о том, как я строю свой дом. Может быть это будет кому-то интересно. История будет не только про саму стройку. Постараюсь писать и о тех жизненных ситуациях, с которыми приходится сталкиваться многим, кто решил влезть в такое грандиозное мероприятие. Это не инструкция по строительству и не отчет, это именно история. Почему проект? Зачем проект? Где найти проект? Вопросы, вопросы, вопросы... Вот и я задумался. А каким будет этот мой дом? Хотелось что-то современное. На тот момент мы все уже знали про Рублевку и про Истру, да и другие точки на карте нашей необъятно Родины, в которых обосновались новые хозяева этой жизни. Или, как было тогда принято говорить, люди с деньгами. Каких только поселков за высокими каменными заборами не понастроила "наша новая элита". Дворцы, замки... Строительная техника сновала по всем дорогам Подмосковья практически непрерывно. Стройматериалы перевозились целыми железнодорожными составами. Строительные

Здравствуйте. Хочу поделиться историей о том, как я строю свой дом. Может быть это будет кому-то интересно. История будет не только про саму стройку. Постараюсь писать и о тех жизненных ситуациях, с которыми приходится сталкиваться многим, кто решил влезть в такое грандиозное мероприятие. Это не инструкция по строительству и не отчет, это именно история.

Почему проект?

Зачем проект?

Где найти проект?

Вопросы, вопросы, вопросы...

Вот и я задумался. А каким будет этот мой дом? Хотелось что-то современное.

На тот момент мы все уже знали про Рублевку и про Истру, да и другие точки на карте нашей необъятно Родины, в которых обосновались новые хозяева этой жизни. Или, как было тогда принято говорить, люди с деньгами. Каких только поселков за высокими каменными заборами не понастроила "наша новая элита". Дворцы, замки... Строительная техника сновала по всем дорогам Подмосковья практически непрерывно. Стройматериалы перевозились целыми железнодорожными составами. Строительные бригады создавались не только из Джамшудов и его земляков, но и турков и поляков, итальянцев... Да кого только не было в этом строительном бизнесе. Деньги в строительство этих "шедевров архитектурного искусства" вбухивались просто заоблачные. "Знать" решила, что и ей пора обзавестись если не замком, то хотя бы шале.

Поэтому в поисках проекта я постоянно наталкивался то на замок с башенками, до на дворец Людовика ХХIV с просторными залами, парковым ансамблем с фонтанами и прудами...

На тот момент я не только не знал как будет выглядеть мой дом, я не знал из чего он будет построен, какая крыша, окна... Мне хотелось что-то небольшое, одноэтажное, ну максимум с мансардой, сооружение. Общей площадью порядка 200-х квадратных метров.

Одним из первых вариантов был такой

Что-то европейское, с гаражом, высокой и довольно сложной крышей.
Что-то европейское, с гаражом, высокой и довольно сложной крышей.
-2

-3

Мне попался диск с огромным количеством проектов частных домов.

-4

-5

-6

-7

-8

-9

Понятно, это были картинки. Но я то тогда думал, что это и есть ПРОЕКТ!

Очень не советую использовать такого рода картинки в виде строительной документации. Для того, чтобы начать строить нужно не только иметь картинку внешнего вида дома, но и подробнейшие чертежи. Как архитектурные, так и конструктивные. Кроме того, в проекте должны быть чертежи на электрику, отопление, вентиляцию и канализацию.

Некоторые архитектурные бюро предлагают полный комплект документации на такой дом. Они могут даже разработать такой комплект, используя в качестве отправной точки, идеи, так сказать, вот такую картинку, как я показал выше.

Проект дает полное представление о материалах, из которых построен дом, и количестве. Используя проектную документацию можно составить строительно-монтажную смету, разработать план строительства и, разумеется, оценить сколько все это будет стоить. Понятно, что досконально все не просчитаешь, но порядок будет понятен. Это важно, если вы не обладаете всей суммой для завершения строительства и вынуждены будете вкладывать деньги постепенно, или прибегая к кредитованию. Кроме того, проект позволяет разговаривать со строителями на понятном для них языке. В конструктивных чертежах показаны многие конструктивные узлы, о которых вы могли бы и не догадываться и, самое главное, о которых могли бы не догадываться и некоторые горе-строители. Используя документацию гораздо проще контролировать скрытые работы, которых в конструкции дома просто огромное количество.

В общем, я искал...

И чем глубже я влезал в тему строительства дома, тем интереснее мне становилось. Я открыл для себя огромный мир. Никогда не задумывался, что дома строят из такого количества различных материалов. Особенно это касается современного строительства. А уж про технологии, используемые в строительстве, я и представить не мог.

Мне всегда казалось, что дома бывают каменные и деревянные и... все!

Оказывается каменные могут быть из кирпича, причем кирпичи тоже очень разные бывают. Кроме того, дома бывают бетонные, в том числе и из ячеистого бетона. Я узнал о существовании огромное количество различных вариантов стен, в которых используются различные сочетания того и другого. Не сразу я начал понимать где и когда лучше использовать конкретные материалы.

Кстати, если собираешься строиться, нужно продумывать и это. Лучше сразу определиться с тем, из чего будет построен дом, чтобы потом не жалеть и не достраивать его бесконечно.

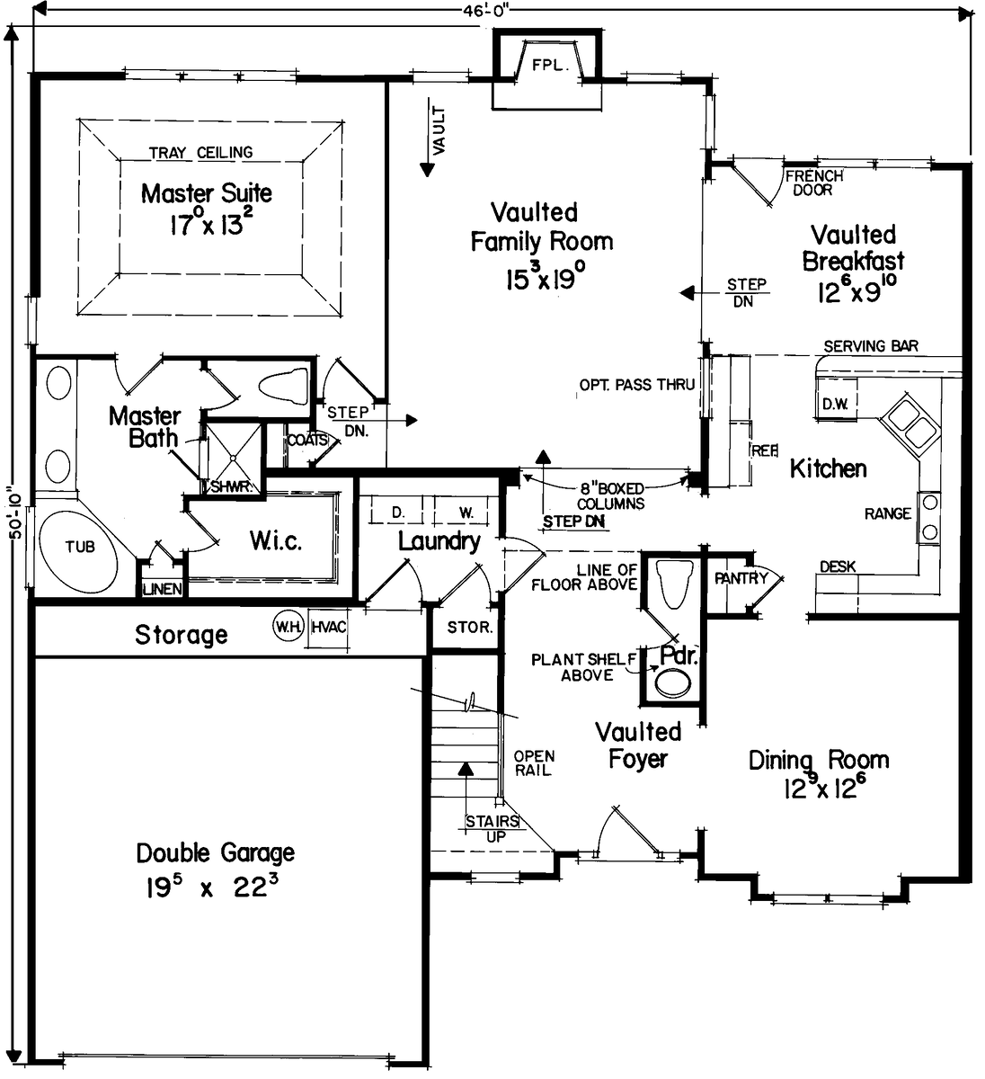
На одном из сайтов с огромной базой проектов я набрел на картинку, которая мне почему-то понравилась

-10

Вот! Вот то, что мне нужно.

Как потом выяснилось, это был один из вариантов проекта дома, которых уже на тот момент было около десяти, а сейчас, наверное, еще больше.

Продолжение следует...

Подписывайтесь на канал. Будет еще больше частей этой статьи. В дальнейшем постараюсь давать более подробную информацию о строительстве своего дома. Будет больше фото и видео.