Добавить в корзинуПозвонить
Найти в Дзене
HousePlans - проекты домов

Проект сдержанного двухэтажного дома: 227,37 м2

В этот дом невозможно не влюбиться с первого взгляда. На желто-терракотовом фасаде белоснежным цветом сияют оконные переплеты. Конструктив данного проекта (фундамент, стены, кровля и т.д.) будет заменён под Ваши пожелания и климатические условия региона застройки. Внесение этих изменений входит в базовую стоимость проекта. Стоимость проекта: 16 000₽ Медальоны под кровлей дома и веранды придают облику строения вид барской усадьбы. Впечатление усиливают стройные колонны, оживленные «капельками» светильников. Крыльцо располагается под общей крышей с террасой (23,40 м2). На площадку ведут центральные и боковые ступени. По обе стороны парадной двери расположены панорамные окна. Справа – французское с выходом из гостиной, слева – его имитация. Простор и свет В большом доме практически нет темных углов. Внутреннее пространство наполнено дневным светом, потому что окна есть в каждом помещении, даже в санузлах и подсобке. По замыслу архитектора, между кухней, гостиной и коридором практически
Оглавление

В этот дом невозможно не влюбиться с первого взгляда. На желто-терракотовом фасаде белоснежным цветом сияют оконные переплеты.

Конструктив данного проекта (фундамент, стены, кровля и т.д.) будет заменён под Ваши пожелания и климатические условия региона застройки. Внесение этих изменений входит в базовую стоимость проекта. Стоимость проекта: 16 000₽

Медальоны под кровлей дома и веранды придают облику строения вид барской усадьбы. Впечатление усиливают стройные колонны, оживленные «капельками» светильников.

Крыльцо располагается под общей крышей с террасой (23,40 м2). На площадку ведут центральные и боковые ступени. По обе стороны парадной двери расположены панорамные окна. Справа – французское с выходом из гостиной, слева – его имитация.

-2

Простор и свет

В большом доме практически нет темных углов. Внутреннее пространство наполнено дневным светом, потому что окна есть в каждом помещении, даже в санузлах и подсобке. По замыслу архитектора, между кухней, гостиной и коридором практически нет перегородок.

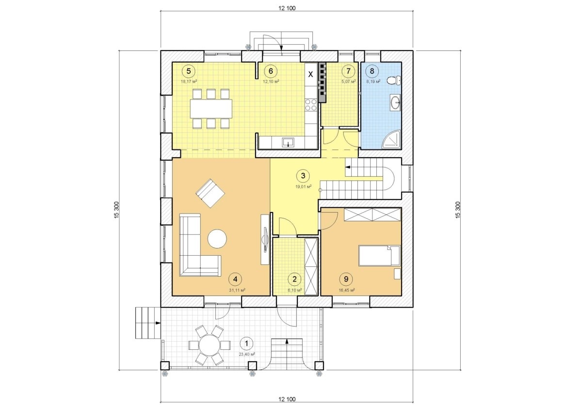
Световой поток из этих комнат освещает коридор (19,01 м2). Даже в сумерках здесь легко ориентироваться, проходя, например, из гостиной в ванную. Из лестничных окон тоже поступает световая «порция», которая попадает в холлы первого и второго этажа (10,95 м2).

Системы хранения

Поскольку коттедж рассчитан на 5 человек, вопрос хранения вещей решен серьезно. Для сезонной верхней одежды, обуви и аксессуаров отведено место в прихожей (6,10 м2). В стенной нише помещаются внушительного объема 1-2 шкафа-купе.

Кроме персональных платяных шкафов в каждой спальной, имеется отдельная гардеробная (7,15 м2) на втором этаже. Вещи, обычно, скапливаются незаметно и могут подчинить своей воле человека. Но в этом доме все – от шляпы до чемодана, будут знать свое место.

Зона сна

Для отдыха отведено 4 спальни – одна на первом этаже (16,45 м2) и три на втором. Их размеры –18,82, 29,66 и 28,80 м2 позволяют добавить мебель сообразно потребностям и желаниям. Заслуживает внимания спальня первого этажа, «оторванная» от других. Ее можно предоставить человеку преклонных лет, гостю, а также горничной или кухарке.

Физиологический комфорт обитателей обеспечен совмещенными санузлами на обоих уровнях (8,19 и 15,79 м2). В решении бытовых проблем поможет топочная (5,07 м2). Здесь укроются от любознательных детей не только щитки, котлы, но также «стиралка», «морозилка».

Места встреч

Собраться вместе можно в просторной гостиной (31,11 м2) и кухне-столовой на первом этаже. Небольшие стенные выступы отделяют кухню (12,10 м2) от столовой (18,17 м2). Из кухонного «отсека» можно выйти во двор через заднюю дверь.

-3

Дом понравится большой семье, для которой здесь будет достаточно места. К тому же в проекте учтены все аспекты жизни человека – от санитарно-гигиенических до психологических.

Если понравился проект - ставь палец вверх и подписывайся на канал!

Дзен | HousePlans