Найти в Дзене

Пассивник в цене дачного. Проектирование. 0. Что будем строить.

Первоначально была идея дать проект небольшого, недорогого пассивника, но неизбежно, кому-то понадобятся коррективы. Соответственно идея изменилась, дать не просто готовый проект, а цикл статей по проектированию этого дома, что бы у людей была ясность, что, как, до каких пределов можно менять. "Бизнес-проект". Молодая семья, нужно жилье. Либо залезать в петлю ипотеку на 15-20 лет и жить под угрозами (а если завтра что с работой, а если платить меньше станут, а если...), либо наскребают полмиллиона (цифра примерная) и строят себе аналог двушки-трешки, которую практически не нужно топить. Конкретно, в проект заложена площадь 54 м2. Старт в апреле. Парень увольняется, бычит на стройке. Девчонка работает "на еду". На край, можно бросить съемную хату и заехать в сухое свое (уже под крышей, но с уровнем комфорта "барак обыкновенный") - к августу. К новому году - готовое, комфортное жилье, можно выходить на работу и смело посылать начальство, не боясь, что ЗП порежут и на ипотеку не хватит
Оглавление

Первоначально была идея дать проект небольшого, недорогого пассивника, но неизбежно, кому-то понадобятся коррективы. Соответственно идея изменилась, дать не просто готовый проект, а цикл статей по проектированию этого дома, что бы у людей была ясность, что, как, до каких пределов можно менять.

"Бизнес-проект".

Молодая семья, нужно жилье. Либо залезать в петлю ипотеку на 15-20 лет и жить под угрозами (а если завтра что с работой, а если платить меньше станут, а если...), либо наскребают полмиллиона (цифра примерная) и строят себе аналог двушки-трешки, которую практически не нужно топить. Конкретно, в проект заложена площадь 54 м2.

Старт в апреле. Парень увольняется, бычит на стройке. Девчонка работает "на еду".

На край, можно бросить съемную хату и заехать в сухое свое (уже под крышей, но с уровнем комфорта "барак обыкновенный") - к августу.

К новому году - готовое, комфортное жилье, можно выходить на работу и смело посылать начальство, не боясь, что ЗП порежут и на ипотеку не хватит.

Рождаются дети. Используем заложенную в проект, конструктивную возможность расширения дома. Пристройки двух спален по 12-20 м2. Делается за любой летний месяц-полтора (отпуск), еще пару месяцев на отделку, доводку. При этом, никак не затрагивает сложившуюся жизнь в основном доме.

Дети выросли, разъехались. Две спальни, превращаются в гостевые, которые, заложенный конструктив, позволяет зимой отключить от отопления.

Есть возможность показать, что примерно будет в результате. В рамках проекта, построен полигон (серия статей "Практика стройки", как раз про него).

Полигон.

Почему "полигон", потому что дом, особо был не нужен, есть дачный, со всей инженеркой, устраивает. Вместе с тем, в проекте был ряд вопросов, которые можно решить только практикой. Вот и родилось это:

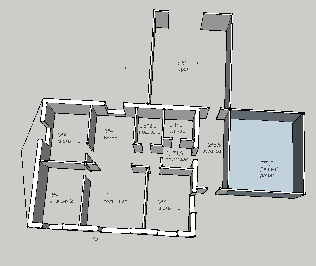
Планировка
Планировка

В первый этап, строится дом, без спален 2 и 3.

Если есть силы и средства, строится "веранда" прикрывающая вход в дом (будет теплее).

Если выход как у меня (на юг), то веранда продолжается крытой террасой на юг, до конца дома.

Дальше, при необходимости (дети подросли), пристраиваются спальни 2 и 3. Длина пристроя (ширина комнат) 3-5 метров, площадь 12-20 м2.

Планировка - не догма, перегородки в принципе можно двигать, как угодно, оставляя центральную симметрию и опорную (конька) стену на месте. Можно делать арки между южной и северной частью. Тем более, можно делать арки между западным и восточным помещениями.

Общий смысл данной планировки - уйти от не функциональных коридоров.

Подсобка в частном доме - нужна всяко, там котел, электрика, фильтры, гидроаккумулятор, бойлер... В принципе, хватает половины выделенной площади, во вторую, можно сделать дверь из ванной и использовать как сауну, можно просто кладовку, у меня - типа кабинета-мастерской. В торце, у северной стены, здоровенный стол, комп, паяльник, аппаратура, тисочки...

Кухню, можно раздельно, можно объединить с гостинной аркой. У меня объединена, девицы настояли и фиг теперь на кухне покуришь.

Размер спальни, на мой взгляд минимальный, при котором вообще стоит затеваться со стройкой. Как, впрочем, и размер самого дома. Близко к двушке-трешке.

При этом, понимаем, что для хлама, у нас здоровенный чердак, что будет еще какая-то сарайка, что велик и санки, будут в гараже... короче это очень не равноценно городским квадратам, это намного больше.

Как это выглядит внутри.

На мой взгляд, довольно обычно. Сделай ровные стены, посветлее, что-то ровное на полу, потолке - уже будет смотреться.

Показывать еще рановато, в доме строительный бардак, но просили.

Короче... - серия фоток

Вход, веранда. Прямо - дверь в гараж, налево в дом. Справа - старый дачный домик. Двери - времянки, на выброс, потом будет самопал, со слоем утепления 100 мм.
Вход, веранда. Прямо - дверь в гараж, налево в дом. Справа - старый дачный домик. Двери - времянки, на выброс, потом будет самопал, со слоем утепления 100 мм.
На пороге в дом. Прихожая. Прямо коридорчик и кухня, за ней "спальня 3". Направо - дверь в санузел. Стенки, просто покрашенный акриловой эмульсионкой ГК, колер - на глазок. В прихожей - бардак (как и во всей избушке), веду сантехнику.
На пороге в дом. Прихожая. Прямо коридорчик и кухня, за ней "спальня 3". Направо - дверь в санузел. Стенки, просто покрашенный акриловой эмульсионкой ГК, колер - на глазок. В прихожей - бардак (как и во всей избушке), веду сантехнику.
Ванная. В смысле тут будет. На стенки буду цеплять ПВХ-панельки, в наглую приклею на монтажную пену. Не противник плитки, если ее кто-нибудь сделает за меня, а самому - лениво. И отмазка есть, мол у меня деревенская избушка, сойдет и так :)
Ванная. В смысле тут будет. На стенки буду цеплять ПВХ-панельки, в наглую приклею на монтажную пену. Не противник плитки, если ее кто-нибудь сделает за меня, а самому - лениво. И отмазка есть, мол у меня деревенская избушка, сойдет и так :)
Спальня раз. На полу ДВП. Покрашено эмульсионкой, в магазине - мамой клялись, что сейчас эмали для пола именно такие. Краска матовая, слева не отблеск, прост свет падает. ДВП не из любви к материалу, мне его девать некуда, еще листов 50 осталось. Воткнул в спальни, остальное линолеум.
Спальня раз. На полу ДВП. Покрашено эмульсионкой, в магазине - мамой клялись, что сейчас эмали для пола именно такие. Краска матовая, слева не отблеск, прост свет падает. ДВП не из любви к материалу, мне его девать некуда, еще листов 50 осталось. Воткнул в спальни, остальное линолеум.
Единственный коридорчик в доме. Линолеум на полу будет клеится встык. Т.е. нахлест, режется сразу оба слоя, один из торцов мажется клеем, укладываются, прижимаются. Клей уже есть, руки не доходят.
Единственный коридорчик в доме. Линолеум на полу будет клеится встык. Т.е. нахлест, режется сразу оба слоя, один из торцов мажется клеем, укладываются, прижимаются. Клей уже есть, руки не доходят.
"Кабинет". У входа (не видно) слева котел и коллектор теплого пола, справа - щиток. В торце будет здоровенный стол, с опорой только на стенки.
"Кабинет". У входа (не видно) слева котел и коллектор теплого пола, справа - щиток. В торце будет здоровенный стол, с опорой только на стенки.
Вид из "кабинета".
Вид из "кабинета".
Выход из коридорчика в кухню. Дверь делать заленился, девчонкам наплел про архитектурные изыски. Типа арка, свет, разделение пространств, воздух... - короче убедил и отмазался :)
Выход из коридорчика в кухню. Дверь делать заленился, девчонкам наплел про архитектурные изыски. Типа арка, свет, разделение пространств, воздух... - короче убедил и отмазался :)
Вид из гостинной в кухню. На улице дождь, темно, обычно очень светлое помещение. Окошко 2*1,4.
Вид из гостинной в кухню. На улице дождь, темно, обычно очень светлое помещение. Окошко 2*1,4.
Из кухни в гостинную.
Из кухни в гостинную.
Спальня 3.
Спальня 3.
Спальня 2. На стенках доисторические обои из СССР, девчонки откуда-то притащили, там еще нужно краешек ножницами обрезать с одной стороны. У них похожие когда-то были, очень нравилось обводить картинки и раскрашивать разных "гусей-лебедей", "не садись на пенек" и колобков. Короче - детская под раскраску фломастерами :)
Спальня 2. На стенках доисторические обои из СССР, девчонки откуда-то притащили, там еще нужно краешек ножницами обрезать с одной стороны. У них похожие когда-то были, очень нравилось обводить картинки и раскрашивать разных "гусей-лебедей", "не садись на пенек" и колобков. Короче - детская под раскраску фломастерами :)
Кстати, дом получился очень точным. На полу валяется кусок линолеума шириной 4 метра, комната по проекту тоже 4 метра. Зазор у одной стены.
Кстати, дом получился очень точным. На полу валяется кусок линолеума шириной 4 метра, комната по проекту тоже 4 метра. Зазор у одной стены.
Зазор у другой стены.  Оно само так вышло :)
Зазор у другой стены. Оно само так вышло :)