Найти в Дзене
Арт Ремонт

Дизайн двушки в доме серии И-209А

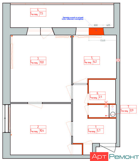
Расширяем пространство кухни за счет лоджии. Сегодня мы хотим рассказать вам об одном из наших выполненных дизайн-проектов. Главная его особенность - объединение кухни и балкона. Этот дизайн разрабатывался для двухкомнатной квартиры в блочном доме 80-х годов серии И-209А на Шмитовском проезде. Изначальный размер кухни в этой квартире 6.2 метра. Как и у подавляющего большинства москвичей, на этой кухне можно было дотянуться до любой столешницы, не вставая со стула. Да, при желании даже на таком клочке пространства можно собрать десять человек и устроить веселую гулянку, стоя, как оловянные солдатики. Но давайте будем честны, на такой кухне ОЧЕНЬ тесно. Поэтому наш дизайнер предложил единственное возможное решение - убрать оконную раму и снести часть нижней подоконной конструкции. В этом типе домов она не является несущей, поэтому такую перепланировку можно спокойно согласовать в БТИ. Балкон утеплили и разделили на две части. Половина лоджии, примыкающая к кухне позволила вынести на нее

Расширяем пространство кухни за счет лоджии.

Сегодня мы хотим рассказать вам об одном из наших выполненных дизайн-проектов. Главная его особенность - объединение кухни и балкона.

Этот дизайн разрабатывался для двухкомнатной квартиры в блочном доме 80-х годов серии И-209А на Шмитовском проезде. Изначальный размер кухни в этой квартире 6.2 метра. Как и у подавляющего большинства москвичей, на этой кухне можно было дотянуться до любой столешницы, не вставая со стула. Да, при желании даже на таком клочке пространства можно собрать десять человек и устроить веселую гулянку, стоя, как оловянные солдатики. Но давайте будем честны, на такой кухне ОЧЕНЬ тесно.

Поэтому наш дизайнер предложил единственное возможное решение - убрать оконную раму и снести часть нижней подоконной конструкции. В этом типе домов она не является несущей, поэтому такую перепланировку можно спокойно согласовать в БТИ.

На чертеже оранжевым выделен фрагмент, подлежащий демонтажу.
На чертеже оранжевым выделен фрагмент, подлежащий демонтажу.

Балкон утеплили и разделили на две части. Половина лоджии, примыкающая к кухне позволила вынести на нее большой холодильник, который ну никак не вмещался на шести квадратах. Кухня получилась светлой и более просторной.

-3

А на второй половине лоджии, примыкающей к хозяйской спальне сделали домашний офис:

-4