Добавить в корзинуПозвонить
Найти в Дзене

Планировочные решения для квартир

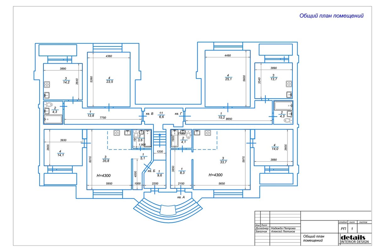
Интересный проект, над которым я работала - это сразу 4 квартиры на одном этаже, с разными планировочными решениями, для каждой квартиры свои разные планировки. Дано:
Нежилое помещение (бывший офис), которое перевели в жилое, площадью 230 метров. Сей объект разделен условно на 4 квартиры, с достаточно свободной планировкой. Квартиры А и Б имеют высоту потолка 4300 мм, квартиры В и Г со стандартной высотой.
Задача: Представить несколько вариантов планировки для каждой из квартир. Для квартир с высокими потолками - интересные решения для двухуровневой квартиры.
Все планировочные решения в альбоме проекта: https://vk.com/album-153501002_261275863

Интересный проект, над которым я работала - это сразу 4 квартиры на одном этаже, с разными планировочными решениями, для каждой квартиры свои разные планировки.

Дано:
Нежилое помещение (бывший офис), которое перевели в жилое, площадью 230 метров. Сей объект разделен условно на 4 квартиры, с достаточно свободной планировкой. Квартиры А и Б имеют высоту потолка 4300 мм, квартиры В и Г со стандартной высотой.
Задача: Представить несколько вариантов планировки для каждой из квартир. Для квартир с высокими потолками - интересные решения для двухуровневой квартиры.

Все планировочные решения в альбоме проекта: https://vk.com/album-153501002_261275863

-2
-3
-4
-5
-6
-7
-8
-9
-10
-11
-12
-13
-14