Добавить в корзинуПозвонить
Найти в Дзене

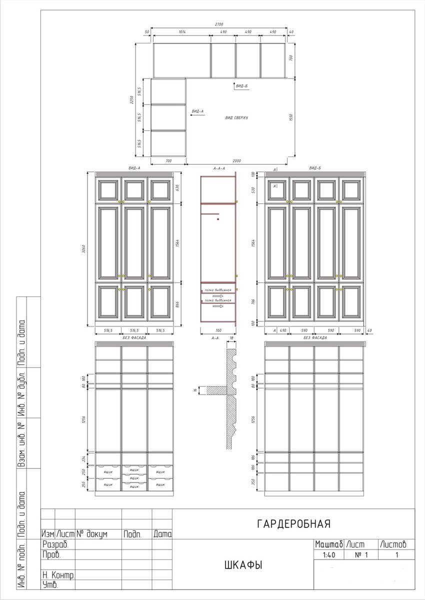
Шкафы для небольшой гардеробной в загородном доме в Солнечногорске

Параметры Две стены шестиметровой гардеробной комнаты полностью отвели под гардеробную систему. В столярной мастерской «Ньюлеон Вуд» изготовили вместительные шкафы из ЛДСП с эмалевым фасадом, которые идеально вписались в интерьер. Удобная и функциональная гардеробная Главное достоинство мебели, сделанной в столярной мастерской – точное соответствие всем требованиям заказчика. Замерщик выехал на место и разработал чертёж будущих шкафов с учётом расположения всех штанг, полочек и выдвижных ящиков. В такой гардеробной для каждой вещи найдётся своё место. После согласования чертежа и подписания договора заказчик получил гарантию на изготовление мебели. Выбор материалов Корпус шкафов сделали из ЛДСП – более бюджетной замены массиву дерева. Цвет подобрали светлый – Акация Лэйклэнд. Фасады выполнили из МДФ с филёнкой – вертикальным объёмным рисунком – и покрыли эмалью. Важную роль в качестве мебели играет фурнитура. Для этой гардеробной использовали надёжные и долговечные петли и направляющи
Оглавление

Параметры

Две стены шестиметровой гардеробной комнаты полностью отвели под гардеробную систему. В столярной мастерской «Ньюлеон Вуд» изготовили вместительные шкафы из ЛДСП с эмалевым фасадом, которые идеально вписались в интерьер.

Удобная и функциональная гардеробная

Главное достоинство мебели, сделанной в столярной мастерской – точное соответствие всем требованиям заказчика. Замерщик выехал на место и разработал чертёж будущих шкафов с учётом расположения всех штанг, полочек и выдвижных ящиков. В такой гардеробной для каждой вещи найдётся своё место. После согласования чертежа и подписания договора заказчик получил гарантию на изготовление мебели.

-2

Выбор материалов

Корпус шкафов сделали из ЛДСП – более бюджетной замены массиву дерева. Цвет подобрали светлый – Акация Лэйклэнд. Фасады выполнили из МДФ с филёнкой – вертикальным объёмным рисунком – и покрыли эмалью. Важную роль в качестве мебели играет фурнитура. Для этой гардеробной использовали надёжные и долговечные петли и направляющие с доводчиками BLUM.

-3

Было важно подобрать оттенок шкафов и фасада, которые бы вписались в интерьер загородного дома в Солнечногорске. Филёнка на фасаде придаёт ему классический вид. А светлый оттенок визуально расширяет небольшое помещение.

-4

Наполнение гардеробной тщательно продумано – предусмотрели множество полок, штанг и ящиков для повседневной одежды, а также антресоли для редко используемых и сезонных вещей. На изготовление и монтаж двух шкафов по индивидуальному проекту потребовалось всего 15 дней.

Изготовитель столярная мастерская «Ньюлеон Вуд». http://newleonwood.ru
Подрядчик нашего онлайн сервиса подбора изготовителей мебели на заказ «ПростоЗаказ» — 395 изготовителей. Делаете один заказ, получаете сразу десятки расчетов. Сервис бесплатный! www.prostozakaz.ru

Подписывайтесь на канал. Задавайте вопросы, наши подрядчики расскажут о всех тонкостях производства мебели на заказ.

Смотрите так же:

Сам себе дизайнер. Как сэкономить на дизайне и получить эксклюзивный предмет мебели

Футуристичные письменные столы

Декоративный камин в городской квартире