Добавить в корзинуПозвонить
Найти в Дзене
HousePlans - проекты домов

Проект сдержанного одноэтажного дома – просторная гостиная с выходом на террасу: 141,11 м2!

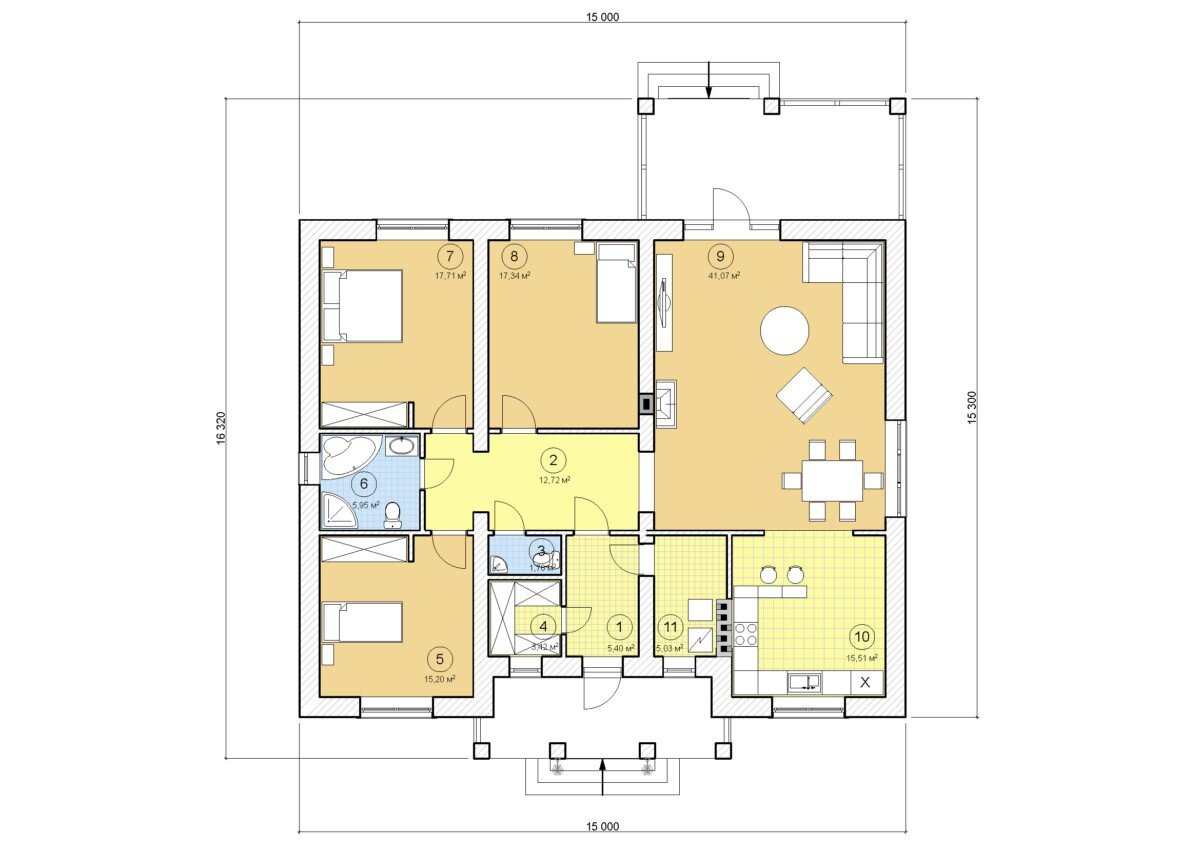
Классические пропорции, идеальная симметрия, удивительное чувство цвета – такие мысли вызывает этот дом. Академическую «правильность» нарушает кокетливый колпак на каминной трубе. Он придает дому сходство с теремком. Конструктив данного проекта (фундамент, стены, кровля и т.д.) будет заменён под Ваши пожелания и климатические условия региона застройки. Внесение этих изменений входит в базовую стоимость проекта: цена 12 000₽ Дом рассчитан на комфортное проживание семьи из 3-5 человек. Большой метраж и оригинальная планировка позволят радушно принять гостей. Естественное освещение В каждой комнате есть большое окно. В доме только 2 открытых прохода, связывающие холл, гостиную и кухню. В светлом холле легко ориентироваться, особенно гостю. Организация хранения вещей В доме предусмотрено несколько «камер хранения» вещей: 1. Прихожая (5,40 м2). 2. Гардеробная (3,42 м2). 3. Шкафы в спальнях. 4. Подсобное помещение (5,03 м2) или, по желанию хозяев, топочная – кладовая – прачечная. Приватна
Оглавление

Классические пропорции, идеальная симметрия, удивительное чувство цвета – такие мысли вызывает этот дом. Академическую «правильность» нарушает кокетливый колпак на каминной трубе. Он придает дому сходство с теремком.

Конструктив данного проекта (фундамент, стены, кровля и т.д.) будет заменён под Ваши пожелания и климатические условия региона застройки. Внесение этих изменений входит в базовую стоимость проекта: цена 12 000₽

Дом рассчитан на комфортное проживание семьи из 3-5 человек. Большой метраж и оригинальная планировка позволят радушно принять гостей.

Естественное освещение

В каждой комнате есть большое окно. В доме только 2 открытых прохода, связывающие холл, гостиную и кухню. В светлом холле легко ориентироваться, особенно гостю.

Организация хранения вещей

В доме предусмотрено несколько «камер хранения» вещей:

1. Прихожая (5,40 м2).

2. Гардеробная (3,42 м2).

3. Шкафы в спальнях.

4. Подсобное помещение (5,03 м2) или, по желанию хозяев, топочная – кладовая – прачечная.

Приватная зона

По площади спальни почти одинаковы - 17,71, 17,34 и 15,20 м2. Кроме традиционной спальной мебели, здесь поместится книжный шкаф, рабочий стол, бескаркасные кресла и т. д.

Статус личной территории означает сон, а также увлечение ее хозяина. Толстые стенные перегородки послужат хорошими звукоизоляторами и хранителями маленьких секретов.

Совмещенный санузел (5,95 м2) может работать в режиме утром – душ, вечером – ванна. Туалет с раковиной (1,78 м2) носит уже официальный характер и больше предназначен для «чужих».

Открытая территория

На кухне (15,51 м2) мебель компактно размещается вдоль стен. Дополнительная подсветка понадобится только вечером, потому что большое окно долго «освещает» помещение.

Чтобы стены не казались голыми, их можно украсить картиной или организовать вертикальное хранение инвентаря. Идеи по организации пространства в маленькой кухне могут пригодиться и здесь.

Из кухни удобно общаться с людьми в гостиной, особенно когда пришли гости и нужно помочь со сменой блюд. Здесь также можно поболтать с подругой, пока дети в соседней комнате смотрят мультики.

-2

В гостиную (41,07 м2) вынесен обеденный стол. Он сдвинут ближе ко входу на кухню, поэтому не режет глаз. Главный акцент в комнате сделан на дровяной камин. И пусть он будет гореть не часто, но каждый раз это будет сказкой.

Из гостиной можно выйти на террасу в задней части дома. Площадка вынесена за периметр, защищена крышей. Визуальная удаленность делает ее похожей на лужайку, открытую с трех сторон. Здесь здорово устраивать барбекю или просто лениться.

Проект представляет дом, который имеет замечательные свойства. Здесь легко ориентироваться, каждый член семьи имеет свою территорию. А благодаря замечательной системе хранения внутреннее пространство никогда не будет захламленным.

Если понравился проект - ставь палец вверх и подписывайся на канал!

Дзен | HousePlans