Добавить в корзинуПозвонить
Найти в Дзене
HousePlans - проекты домов

Популярный проект одноэтажного дома – все необходимое для комфортной жизни: 142,86 м2!

Проект простого и удобного одноэтажного дома для семьи из 4 человек. Компактный, комфортный коттедж, обладающий всеми возможностями для полноценного проживания. Конструктив данного проекта (фундамент, стены, кровля и т.д.) будет заменён под Ваши пожелания и климатические условия региона застройки. Внесение этих изменений входит в базовую стоимость проекта: цена 12 000₽ Размер постройки позволяет разместить ее на небольшом клочке земли, вплоть до обычного дачного участка. Внешний вид, наружная отделка Фасад имеет единственный архитектурный элемент — закрытое крыльцо с панорамным остеклением. Задняя часть дома имеет просторную террасу и навес по всей длине стены, удобные для проведения семейного отдыха, мероприятий, встреч с друзьями и родственниками. Остальная поверхность стен нарочито пустая, лишенная каких-либо элементов архитектуры или украшений. Это сделано с умыслом — витринное оформление парадного входа придает фасаду облик в стиле модерн, где не допускается использование декор
Оглавление

Проект простого и удобного одноэтажного дома для семьи из 4 человек. Компактный, комфортный коттедж, обладающий всеми возможностями для полноценного проживания.

Конструктив данного проекта (фундамент, стены, кровля и т.д.) будет заменён под Ваши пожелания и климатические условия региона застройки. Внесение этих изменений входит в базовую стоимость проекта: цена 12 000₽

Размер постройки позволяет разместить ее на небольшом клочке земли, вплоть до обычного дачного участка.

Внешний вид, наружная отделка

Фасад имеет единственный архитектурный элемент — закрытое крыльцо с панорамным остеклением. Задняя часть дома имеет просторную террасу и навес по всей длине стены, удобные для проведения семейного отдыха, мероприятий, встреч с друзьями и родственниками. Остальная поверхность стен нарочито пустая, лишенная каких-либо элементов архитектуры или украшений. Это сделано с умыслом — витринное оформление парадного входа придает фасаду облик в стиле модерн, где не допускается использование декоративных дополнений.

Лучшим решением для наружной отделки станет использование штучных элементов — лицевого кирпича или клинкерной плитки. Также подойдет сплошная штукатурка поверхностей с последующим нанесением фасадной краски. Основная идея оформления состоит в простоте, отсутствии украшений и многоцветных вариантов отделки.

Внутренняя планировка

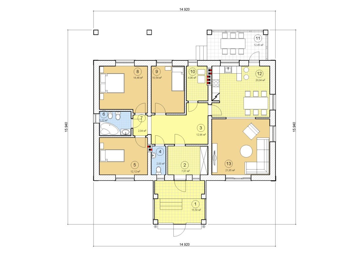
Парадный вход представляет собой остекленный тамбур, откуда можно попасть в прихожую. Она ведет в холл, откуда есть проход во все участки дома. Это соответствует современным представлениям о комфорте и рациональном планировании жилого пространства. Левое крыло дома отведено под приватную зону. Там размещены две спальни (родителей и старшего ребенка), разделенные совмещенным санузлом. Это обеспечивает удобство и звукоизолирует помещения. Еще одна детская спальня находится позади холла. Ее вход расположен рядом с дверями комнаты родителей. Это позволяет быстро подойти к младшему ребенку. Также в холле находится вход в котельную, которую можно использовать для хозяйственных целей. Напротив детской имеется вход в гостевой раздельный туалет.

-2

Правое крыло дома представляет общую зону. В ней находятся гостиная и кухня, совмещенная со столовой. Из кухни есть выход на террасу, размер которой достаточен для проведения праздников в хорошую погоду. Все комнаты обильно освещены, расположение окон тщательно продумано. Планировка помещений способствует эффективному и экономичному отоплению дома.

Если понравился проект - ставь палец вверх и подписывайся на канал!

Дзен | HousePlans