Добавить в корзинуПозвонить
Найти в Дзене
HousePlans - проекты домов

Проект стильного одноэтажного дома — 4 комнаты, кухня и терраса: 150,94 м2!

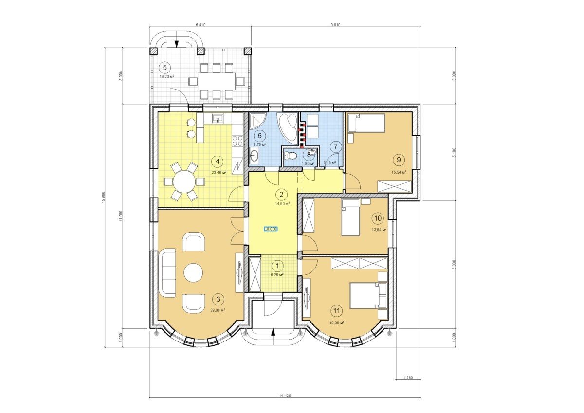
Загородный дом с элементами викторианского стиля. Остроконечные крыши, классическая кирпичная отделка. За счет вытянутых окон, округлых форм фасада, высоких потолков коттедж похож на средневековый замок. Конструктив данного проекта (фундамент, стены, кровля и т.д.) будет заменён под Ваши пожелания и климатические условия региона застройки. Внесение этих изменений входит в базовую стоимость проекта. Стоимость проекта: 14 000₽ Эркеры — главная декоративная часть дома. Песочно-коричневая гамма удачно смотрится на фоне природы, естественно вливаясь в окружающую среду. Особенности проекта Дом с продуманной планировкой. Проект рассчитан на семью из 4-6 человек. Есть небольшая терраса для летнего отдыха. Помимо обеденного стола здесь можно поставить декоративные цветы в горшках. В холодное время года их удобно расположить на подоконниках, на полу в жилых комнатах. Преимущество здания: наличие просторной гостиной, 3-х спален, раздельного санузла. Большой коридор по центру здания симметри
Оглавление

Загородный дом с элементами викторианского стиля. Остроконечные крыши, классическая кирпичная отделка. За счет вытянутых окон, округлых форм фасада, высоких потолков коттедж похож на средневековый замок.

Конструктив данного проекта (фундамент, стены, кровля и т.д.) будет заменён под Ваши пожелания и климатические условия региона застройки. Внесение этих изменений входит в базовую стоимость проекта. Стоимость проекта: 14 000₽

Эркеры — главная декоративная часть дома.

Песочно-коричневая гамма удачно смотрится на фоне природы, естественно вливаясь в окружающую среду.

Особенности проекта

Дом с продуманной планировкой. Проект рассчитан на семью из 4-6 человек. Есть небольшая терраса для летнего отдыха. Помимо обеденного стола здесь можно поставить декоративные цветы в горшках. В холодное время года их удобно расположить на подоконниках, на полу в жилых комнатах.

Преимущество здания: наличие просторной гостиной, 3-х спален, раздельного санузла. Большой коридор по центру здания симметрично делит помещения на приватные и общего назначения. В самой дальней части дома — большая ванная комната и туалет. Постирочная комната удобная. Здесь размещается стиральная машинка и сушилка.

Гостиная

Гостиная с эркерной частью. Светлая и просторная. Площадь — более 30 м2. Расположение мебели на вкус хозяев. Есть возможность обустройства небольшого фальш-камина или электрической версии. Вокруг него можно скомпоновать предметы интерьера: диван трехместный, 2 дизайнерских кресла, журнальный столик, пуфики и подставки с цветами.

Напольное покрытие в соответствии с общей классикой — мраморное или его имитация. Хорошо также сделать его деревянным — из цельного массива.

Кухня-столовая

Кухня объединена со столовой. Это потребует соблюдения принципа единого пространства: отделка потолков, стен должна быть выполнена в общей гамме или текстуре. Наиболее популярный вариант для этой комнаты — угловая кухня с островом или барной стойкой для завтрака.

Отлично будет смотреться мойка напротив окна. В этом случае нужно предусмотреть специальную систему открывания окон, чтобы не задевать смеситель. Это режим проветривания, предусматривающий установку поворотно-откидного механизма или других аналогичных версий с ограничителями.

Спальни

Хозяйская спальня находится в передней части здания с эркером. Это удобно для тех владельцев, кто любит просыпаться с первыми лучами солнца. Высокие потолки предоставляют возможность установки кровати на подиуме.

Интересный вариант занавесок в комнате — австрийские, классические с подхватами и ламбрекенами. В тон к ним можно подобрать покрывала и подушки.

Ковровые покрытия здесь могут быть с растительным орнаментом, деталями дворцового стиля. Или же — имитировать шкуры животных.

-2

Резюме

Загородный коттедж хорошо будет смотреться в поселке городского типа.

Он позволит чувствовать себя владельцами «барской усадьбы». Достоинство дома — просторные помещения, удобная планировка.

Если понравился проект - ставь палец вверх и подписывайся на канал!

Дзен | HousePlans