Добавить в корзинуПозвонить
Найти в Дзене
HousePlans - проекты домов

Доступный проект — одноэтажного дома с односкатной кровлей: 79,21 м2!

Простой доступный проект небольшого дома, пригодный для семьи из 3 человек. По уровню комфорта он близок к обычной квартире, но обладает всеми преимуществами частного коттеджа. Конструктив данного проекта (фундамент, стены, кровля и т.д.) будет заменён под Ваши пожелания и климатические условия региона застройки. Внесение этих изменений входит в базовую стоимость проекта. Стоимость проекта: 10 000₽ Размер постройки сравнительно мал, что удачно подходит для возведения на небольших участках. Односкатная крыша значительно упрощает ремонт, отсутствие сложной системы стропил снижает объемы строительных работ. Внешний вид, отделка Односкатная крыша делает облик дома близким к современным асимметричным зданиям. Формирование стиля тяготеет к модерновым вариантам, хотя для любителей более традиционных решений также имеются возможности. Терраса, одновременно выполняющая функции крыльца, занимает всю фронтальную плоскость, что напоминает традиционные строения юга США. Разнообразие стилистическ
Оглавление

Простой доступный проект небольшого дома, пригодный для семьи из 3 человек. По уровню комфорта он близок к обычной квартире, но обладает всеми преимуществами частного коттеджа.

Конструктив данного проекта (фундамент, стены, кровля и т.д.) будет заменён под Ваши пожелания и климатические условия региона застройки. Внесение этих изменений входит в базовую стоимость проекта. Стоимость проекта: 10 000₽

Размер постройки сравнительно мал, что удачно подходит для возведения на небольших участках. Односкатная крыша значительно упрощает ремонт, отсутствие сложной системы стропил снижает объемы строительных работ.

Внешний вид, отделка

Односкатная крыша делает облик дома близким к современным асимметричным зданиям. Формирование стиля тяготеет к модерновым вариантам, хотя для любителей более традиционных решений также имеются возможности. Терраса, одновременно выполняющая функции крыльца, занимает всю фронтальную плоскость, что напоминает традиционные строения юга США.

Разнообразие стилистических направлений позволяет выбирать любой способ отделки. Подойдут натуральные и синтетические материалы, облицовка клинкерной плиткой или сайдингом. Открытые боковые стены позволяют украсить их декоративными видами штукатурки, фасадными панелями. Возможностей много, главным условием становится соблюдение меры.

Внутренняя планировка

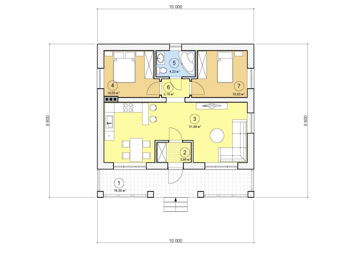
Дом обладает единственным входом, который ведет в небольшой тамбур-прихожую. Оттуда можно попасть в общую зону, совмещающую функции холла, гостиной, кухни и столовой. Такое решение делает помещение просторным, а верхний свет из окон на фронтальной стене добавляет ему ощущение пространства и воздуха. Образуется просторный многофункциональный зал, где хватает места для всех потребностей современной семьи. Гостиная становится похожа на традиционную студию. Это и дань моде, и наиболее рациональное распределение жилого пространства.

-2

Приватная зона занимает дальнюю (заднюю) часть дома. Она представлена супружеской спальней (комнатой родителей) и детской, разделенных небольшим тамбуром и совмещенным санузлом. Это позволяет увеличить шумоизоляцию, обеспечить достаточную приватность спальных помещений. Размеры спален достаточны для свободного размещения людей. Все комнаты хорошо освещены, окна есть в каждом из помещений. При необходимости можно быстро проветрить, а дневной свет позволяет немного сэкономить на освещении. Несмотря на относительно небольшой размер, планировка дома обеспечивает комфорт и уют для жителей.

Если понравился проект - ставь палец вверх и подписывайся на канал!

Дзен | HousePlans