Добавить в корзинуПозвонить
Найти в Дзене
Влас Стригуненко

Как просирались полимеры (про инновации)

Независимый взгляд на одну знаковую российскую инновацию, утопленную потому что было проще утопить, чем прокормить. Как вы оцениваете уровень российского автомобилестроения по шкале от 0 до 10, где 0 это очень отсталое, а 10 — примерно уровень Ирана? Я, как человек проработавший 9 лет в автомобилестроении оцениваю на 8. И тенденция грустная, но об этом в следующий раз, а сейчас о природных налогах на энергию. Налоговая небесной канцелярии Движущийся автомобиль можно представить как условный накопитель энергии в, опять же, условно изолированной системе автомобиль-дорога. Когда автомобиль разгоняется, то ДВС преобразует химическую энергию, содержащуюся в топливе в кинетическую энергию, накопленную в импульсе автомобиля. Когда автомобиль тормозит, он через тормозную систему эту самую кинетическую энергию преобразует в тепло, по сути выбрасывая её. Хорошей иллюстрацией этого эффекта можно считать указываемые производителем средний расход для городского цикла (не имеющего ничего общего к жи
Оглавление

Независимый взгляд на одну знаковую российскую инновацию, утопленную потому что было проще утопить, чем прокормить.

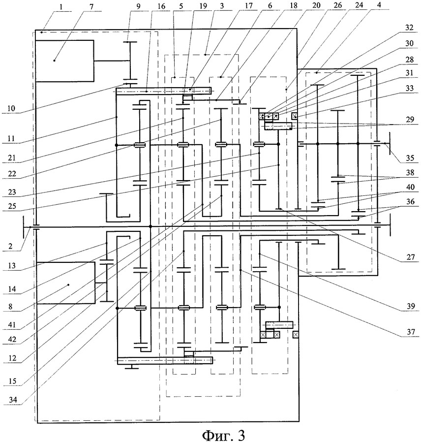
Кто по кинематической схеме сразу догадается о чем пойдет речь?
Кто по кинематической схеме сразу догадается о чем пойдет речь?

Как вы оцениваете уровень российского автомобилестроения по шкале от 0 до 10, где 0 это очень отсталое, а 10 — примерно уровень Ирана? Я, как человек проработавший 9 лет в автомобилестроении оцениваю на 8. И тенденция грустная, но об этом в следующий раз, а сейчас о природных налогах на энергию.

Налоговая небесной канцелярии

Движущийся автомобиль можно представить как условный накопитель энергии в, опять же, условно изолированной системе автомобиль-дорога. Когда автомобиль разгоняется, то ДВС преобразует химическую энергию, содержащуюся в топливе в кинетическую энергию, накопленную в импульсе автомобиля. Когда автомобиль тормозит, он через тормозную систему эту самую кинетическую энергию преобразует в тепло, по сути выбрасывая её. Хорошей иллюстрацией этого эффекта можно считать указываемые производителем средний расход для городского цикла (не имеющего ничего общего к жизни) и для цикла загородного движения. За городом автомобиль «кушает» меньше именно потому что циклограмма разгонов и торможений подразумевает сильно меньшее кол-во циклов накопления и выбрасывания энергии. Автомобиль в основном едет с постоянной скоростью. В городе же автомобиль часто разгоняется и тормозит, а значит постоянно выбрасывает кучу энергии.

Чтобы как-то исправить ситуацию человечество начало активно внедрять гибридизацию, пойдя при этом по пути электрификации автомобиля. Первой в этом деле преуспела Toyota со своим Приусом, вышедшим на рынок в бородатом ныне 1997 году.

Однако у автомобилей с электрической гибридной системой есть один большой минус. Как её не крути, но эффективность системы будет не выше 50-60% на круг, поскольку при разгоне от батареи и при торможении с рекуперацией энергия преобразуется минимум дважды. Из химической в электрическую и из электрической в механическую. А если рассмотреть весь цикл разгон-торможение, то четырежды. И каждое преобразование происходит с уплатой налога на энергию — потерей части энергии на преобразование. Эффективность преобразования (для сравнения) описывают коэффициентом полезного действия, сравнивая сколько энергии покинуло источник, а сколько в итоге преобразовалось в движение автомобиля.

Если рассмотреть путь движения энергии на примере Приуса, то получится так: аккумулятор — выпрямитель — инвертор — электромашина — трансмиссия — колесо, ну и в обратную сторону в обратной последовательности. На круг КПД не более 60% в супер идеальном режиме затяжного плавного разгона и такого же плавного торможения.

Добавьте сюда ещё и ограничение на мощность зарядки аккумулятора. Ведь ваш любимый Сяоми (топ за свои деньги) заряжается не моментально, не правда ли? А несколько часов. В случае с автомобилем всё то же самое. «Упаковать» обратно в аккумулятор удается лишь незначительную часть потраченной на разгон энергии.

Благодарю того читателя, который не заснул читая всё вышенаписанное, извиняюсь что так объемно, но поверьте, этот кусок надо было вставить в статью, иначе не будет понятно почему технология, которую утопили такая бомбовая и почему об этом стоит грустить.

В 1965 году, тогда советский, а ныне Российский ученый Нурбей Владимирович Гулиа, предложил концепт системы накопления энергии с т.н. супермаховиком. Это особым образом выполненный вращающийся маховик, находящийся в разряженной атмосфере с очень высокой скоростью, и способный разгоняя своё вращение накапливать энергию, и, напротив, замедляясь — её отдавать. Простая и понятная концепция. Мой читатель наверняка вспомнит зарю становления системы KERS в гонках F1, и эксперименты Вильямс и Порше в этом направлении.

Аналог от Flybrid. Они кстати так и не смогли победить вариатор. А мы смогли.
Аналог от Flybrid. Они кстати так и не смогли победить вариатор. А мы смогли.

Но! Для того чтобы супермаховик раскрыл свой недюжий потенциал, нужна трансмиссия, способная без преобразования энергии безразрывно трансформировать механический поток так, чтобы подвести его к колесам, вращающимся по мере разгона с угловой скоростью от 0 до 2500 об/мин, от маховика, напротив, вращающегося со скоростью от 30000 до 10000 об/мин, и наоборот при торможении.

У Нурбея Владимировича на изобретение такой трансмиссии, которую назвали Супервариатор, ушло всего-то каких-то 45 лет, пока, при помощи другого, невероятно талантливого (даже скорее гениального), ныне австрийского ученого, Виталия Владимировича Давыдова, в 2009-2010 годах была выдвинута концепция многодиапазонного электромеханического вариатора с планетарным механизмом со сложным внутренним преобразованием потока мощности.

В 2014 году компания Супервариатор (группа компаний Комбарко), в своей лаборатории продемонстрировала рабочий прототип сего устройства, показав на стендовых испытаниях средний КПД прототипа в основном диапазоне регулирования на уровне 94% , при этом вариатор полностью бесступенчатый в диапазоне регулирования i=0...9. Для сравнения, КПД ступенчатой коробки передач типового авто класса Б, типа Лада Веста редко выше 83-87%. Прототип повторял кинематику перспективного автомобильного привода для авто класса N1/M1 полной массой до 3500 кг. Кинематика прототипа позволяла в серийном изделии выполнить как микрогибридный привод, так и полноценный гибрид с маховичным накопителем. Позволяющим накапливать до 100% мощности, потребной для разгона автомобиля до максимально скорости. При этом цикл разряд-заряд должен был иметь КПД до 85% без ограничения по максимальной мощности заряда аккумулятора.

Супервариатор и Элон Маск

Короткий параграф. Один раз Элону предложили использовать технологию супервариатора для улучшения технических параметров автомобилей Тесла. И он отказался, потому что он по образованию химик, а не механик и хрен поймет как этот вариатор работает.

Особенности финансирования проектов в машиностроении

Инновации в машиностроении - жутко ресурсоемкая история. Когда вы делаете стартап в IT области вам нужен аджайл, смузи и десяток хипсторов, способных объяснить индийским кодерам чего надо сделать. Смета таких проектов состоит из: Смузи + ЗП Хипсторов + аренда офиса в центре + аренда Маков + еда для индийских кодеров. При этом вплоть до этапа коммерциализации (когда приходит время вкладываться в рекламу и продвижение) смета остается плюс минус в человеческих рамках.

Когда вы делаете венчурный проект в машиностроении, то вам нужна: лаборатория, КБ, штат техников, куча поставщиков, куча дорогостоящего оборудования и конечно же офис в центре чтобы бухгалтерам было удобно ездить на работу. Смета проекта в машиностроении выглядит так: Аренда офиса (можно без Маков) + на Доширак инженерам и ученым + аренда лаборатории + оборудование для лаборатории + ЗП техникам + изготовление прототипа изделия.

То есть уже с самой начальной фазы «проверки и доказательства концепции» нужна просто прорва шекелей (при этом в глазах фонда что хипсторы с приложением для айфона, что инженеры с автомобильным приводом это не более чем часть портфеля, а в портфеле нужно разделять риски, иначе никаких тебе бонусов по результатам финансового года, а значит всем ресурсы фонда поровну).

После подтверждения концепции по уму должна быть т.н. посевная фаза. Но в машиностроении подтверждение концепции == посевная фаза, если концепция работает значит работает и технология, и её можно упаковывать в продукт под требования конкретного заказчика. Короче классического венчурного смузи-стартапа с распиванием вискарика в Сколково не получается.

Супервариатор концепцию благополучно подтвердил. Мало того, нашел потенциального заказчика. Проект Тайфун завода КАМАЗ, при этом завод рассматривал его на столько пристально, что даже были опубликованы патенты с защитой конструкции перспективного серийного изделия.

Тайфун К. Это конечно государственная тайна, но похоже что автомобили до сих пор идут с коробками Элисон.
Тайфун К. Это конечно государственная тайна, но похоже что автомобили до сих пор идут с коробками Элисон.

Here comes the pain

По ситуации последних 10 лет длинных денег в стране нет. Занять у банков под более-менее человеческий процент не получится. Заводы обескровлены и заняты программой выживания и сокращений. Про инвестиции в инновации на предприятиях автомобилестроения речи не идет. Пусть и небольшой, но достаточный для минимального поддержания штанов поток денег от РВК прекратился в 2014 году (после известных событий). В компании Супервариатор людям прекратили выплачивать зарплаты и предложили найти себе другое занятие, шепнув на ухо «что вы слишком дорогие для нас ребята, и ваш вариатор тут никому не нужен».

Главный конструктор и главный идеолог электромеханической передачи уехал в Австрию работать на одну известную инжиниринговую компанию, разрабатывающую и доводящую коробки для половины автомобильных концернов мира.

Н.В.Гулиа был уволен с кафедры Детали машин после её ликвидации при оптимизации вузов страны в 2014-2016 годах и сейчас не у дел.

Ваш покорный слуга, не дописав диссертацию отправился в один большой глобальный автоконцерн запускать в производство автомобили румынской разработки, собранные по клише из середины 90-х.

Остальной коллектив разбрелся кто-куда. Электронщик в Германию, программист в нефтянку, главный механик и руки проект в Данию, остальные ребята преимущественно по иностранным компания на позиции менеджеров по чему-то.

Вишенка на тортике

Одной из портфельных компаний фонда была компания Кавикорм. Профиль компании — изготовление пищевых добавок из...навоза. Фонд в частности дал денег компании на разработку технологии производства питательных батончиков из «сырья». Мммм. Вкусняшка.

По неподтвержденным рассказам одной из инноваций, в которую фонд вложил деньги была упаковка для презерватива, которую можно открыть одной рукой, для одноруких путан и дальнобойщиков.

А вы говорите вариаторы...

Выводы

Импортозамещение, про которое гудят с каждой колокольни, в отсталых отраслях, к которым безусловно относится и автомобилестроение, не даст ничего кроме ещё большего отставания. Качество продукции определяется не уровнем локализации, а уровнем поставщиков и их возможностями. Именно поэтому продукт глобальной кооперации всегда будет лучше локального аналога, просто потому, что глобальный поставщик делает компонент или узел миллионными тиражами на весь мир.

Закрывание границ приведет к упрощению и удешевлению конструкции локальных автомобилей (что сейчас и происходит) просто потому что нет сильных локальных поставщиков, а иностранные не готовы вкладываться в заводы, рассчитанные на тиражи только для локального рынка. В итоге теряет потребитель. Сокращается предложение на рынке. С рынка уходят производители и поставщики. Падает конкуренция. А в след за ней падает и качество продукции. А вслед за падением качества мы увидим неоправданный рост цен (конкуренция то низкая).

В итоге через 5-10 лет на рынке будет только лада, хенде и фольксваген с 2-3 моделями каждый, внешне со свителками и бантиками, а по сути авто из начала 2000-х с красивыми кузовными панелями.

Лично я считаю этот путь ошибочным и пошлым.

Куда более правильный подход - это внедрение в мировую кооперацию за счет предложения превосходящих по потребительским свойствам технологий. Инновации - это верный путь. Но то как это исполнялось ранее - это позор.

Кто-нибудь из минпромторга, если ты читаешь это. Пожалуйста прекратите давить производителей. Лучше дайте нормальные субсидии новаторам от автомобилестроения и помогите им влезть в мировую кооперацию. Дайте Яндексу на автономные автомобили, дайте WayRay-ю на эти их HUD-ы. Развивайте поставщиков, давая им деньги и обеспечивая долю на мировом рынке. Иначе в полночь все локальные модели превратятся в жигули.

И давайте наконец-то перестанем просирать полимеры. Ну пожалуйста.