Добавить в корзинуПозвонить
Найти в Дзене

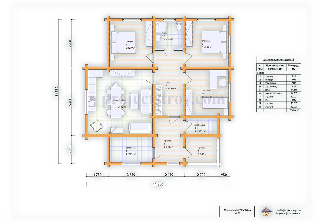
Дом из лафета одноэтажный 11.5 х 11.5 м

Загородный дом с тремя спальнями - отличный вариант одноэтажных домов И, конечно, проект можно преобразовать в бревно или брус Показатели для сметного расчета строительства A-28:
-общая площадь по экспликации - 105 кв. м;
-объем лафета 200х300 мм ~81 куб. м (отход~10%);
-пог. длина заготовок лафета ~1350 м;
-пог. длина фундамент ~100 м;
-стропила - 50х200 мм;
-балки пер. - 100х200 мм;
-площадь кровли и периметр - 176 кв. м и 160 пог. м;
-угол кровли ~20-24 гр.;
-высота 1-го этажа - от 2.4 м

Одноэтажный дачный дом из лафета 200х300 мм

Загородный дом с тремя спальнями - отличный вариант одноэтажных домов

И, конечно, проект можно преобразовать в бревно или брус

Показатели для сметного расчета строительства A-28:
-общая площадь по экспликации - 105 кв. м;
-объем лафета 200х300 мм ~81 куб. м (отход~10%);
-пог. длина заготовок лафета ~1350 м;
-пог. длина фундамент ~100 м;
-стропила - 50х200 мм;
-балки пер. - 100х200 мм;
-площадь кровли и периметр - 176 кв. м и 160 пог. м;
-угол кровли ~20-24 гр.;
-высота 1-го этажа - от 2.4 м
-2
-3